Station Road, Hook, Hampshire, RG27
By Bridges Estate Agents
£ 295,000
Reviews
3 out of 5 stars
Bridges Estate Agents says ..
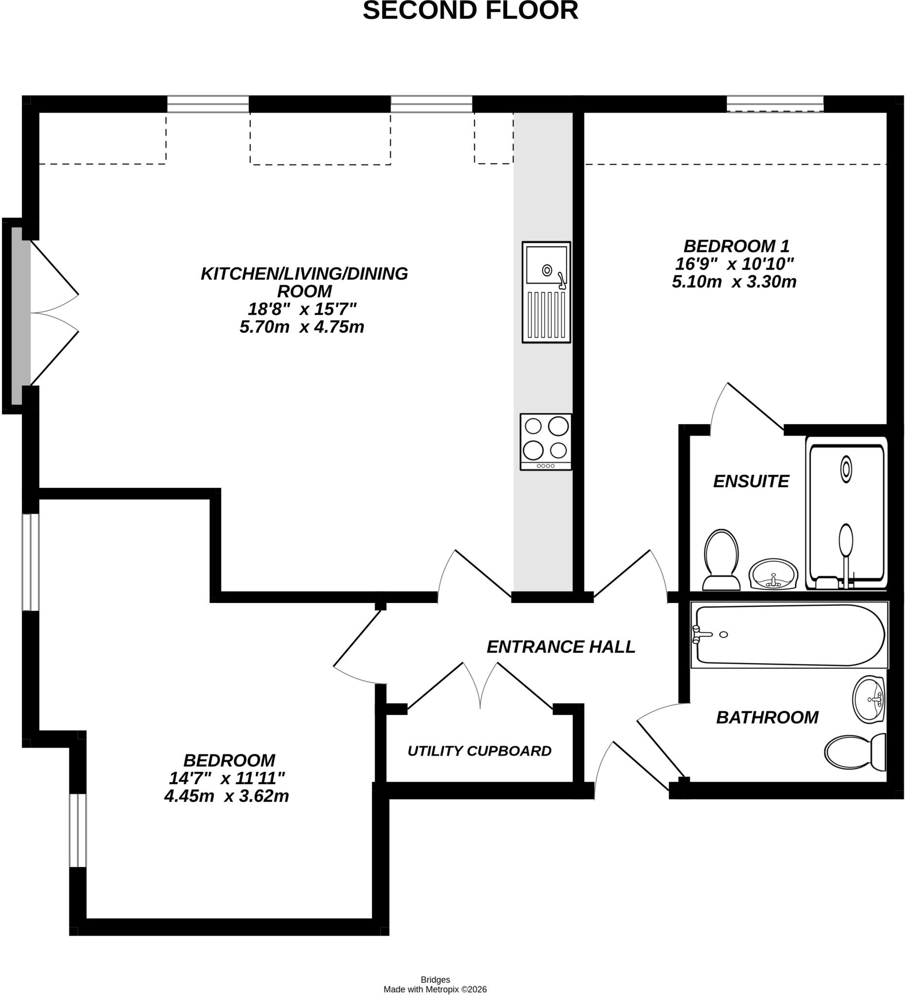
This contemporary second floor apartment offers an impressive sense of space, with a generous open plan living area flooded with natural light from dormer windows and enhanced by a Juliet balcony. The living space comfortably accommodates both seating and dining areas and is finished in a smart t...
Property Oracle says ..
This is a modern two-bedroom flat located on Station Road in Hook, Hampshire. The property is in good condition and benefits from its proximity to local amenities, including the train station and schools. The flat features two bathrooms and a well-maintained interior. While it has limited private land, the communal garden space offers some outdoor amenity. The asking price is in line with the average for the area, making it a potentially attractive purchase.
Therefore, we give this property 6 / 10. *Disclaimer: This is our option and does constitute a recommendation or financial advice. Do your own research. *
- Price
- 7
- Condition
- 8
- Location
- 7
- Land
- 3
- Bedrooms
- 2
- Bathrooms
- 2
- Sqft (est)
- 646.09
The heatmap indicates the level of crime in the area. The color of the heatmap indicates the crime severity and recency.
Metrics Year-on-Year
- Average area value
- 309,833.00 £Decreased by 41.90 %
- Est sale value
- 314,645.83 £Increased by 35.28 %
- Average area rental value
- 1,358.00 £/moDecreased by 12.33 %
- Est letting value
- 1,292.18 £/moIncreased by 100.00 %
- Est rental Yield
- 5.26 %Increased by 50.72 %
- Crime Rate
- 27.00 %Unchanged by 0.00 %
Agent Activity
Bridges Estate Agents created the listing.
Nearby Schools
| Name | Type | Ofsted | Distance |
|---|---|---|---|
| Hook Infant School | Community School | Outstanding | 0.73 KM |
| Hook Junior School | Community School | Outstanding | 0.73 KM |
| Robert May'S School | Academy Converter | Good | 2.87 KM |
| Whitewater Church Of England Primary School | Voluntary Controlled School | Requires improvement | 3.34 KM |
| Wisteria Children'S Centre | Children's Centre Linked Site | 3.61 KM |
Images
Nearby Streets
| Name | Average Price | Average Sqft | Distance |
|---|---|---|---|
| Beaulieu Place | £ 0 | 0 | 0.00 KM |
| Durley Place | £ 0 | 0 | 0.00 KM |
| St Johns Close | £ 0 | 0 | 0.00 KM |
| A287 | £ 0 | 0 | 0.00 KM |
| Warren Andrew Drive | £ 117,083 | 0 | 0.00 KM |
Nearby Transport
| Name | NLC | TLC | Distance |
|---|---|---|---|
| Hook | 5523 | HOK | 0.29 KM |
| Winchfield | 5528 | WNF | 6.07 KM |
Nearby Listings
| Address | Price | Type | Score | Distance |
|---|---|---|---|---|
| Station Road, Hook, Hampshire, RG27 | £ 305,000 | BUY | Unknown | 0.00 KM |
| Station Road, Hook, Hampshire, RG27 | £ 250,000 | BUY | 6 / 10 | 0.00 KM |
| Station Road, Hook, Hampshire, RG27 | £ 290,000 | BUY | 6 / 10 | 0.00 KM |
| Station Road, Hook, Hampshire, RG27 | £ 310,000 | BUY | 6 / 10 | 0.00 KM |
| Station Road, Hook, Hampshire, RG27 | £ 250,000 | BUY | Unknown | 0.00 KM |
Nearby Properties
| Address | Price | Distance |
|---|---|---|
| 9 Berry Court | £ 112,000 | 0.09 KM |
| 19 Berry Court | £ 100,000 | 0.09 KM |
| 14 Berry Court | £ 77,000 | 0.09 KM |
| 21 Berry Court | £ 105,000 | 0.09 KM |
| 13 Berry Court | £ 158,000 | 0.09 KM |