Reading, Berkshire, RG30
CH

Reading, Berkshire, RG30

By Chancellors

£ 525,000

Reviews

3 out of 5 stars

Chancellors says ..

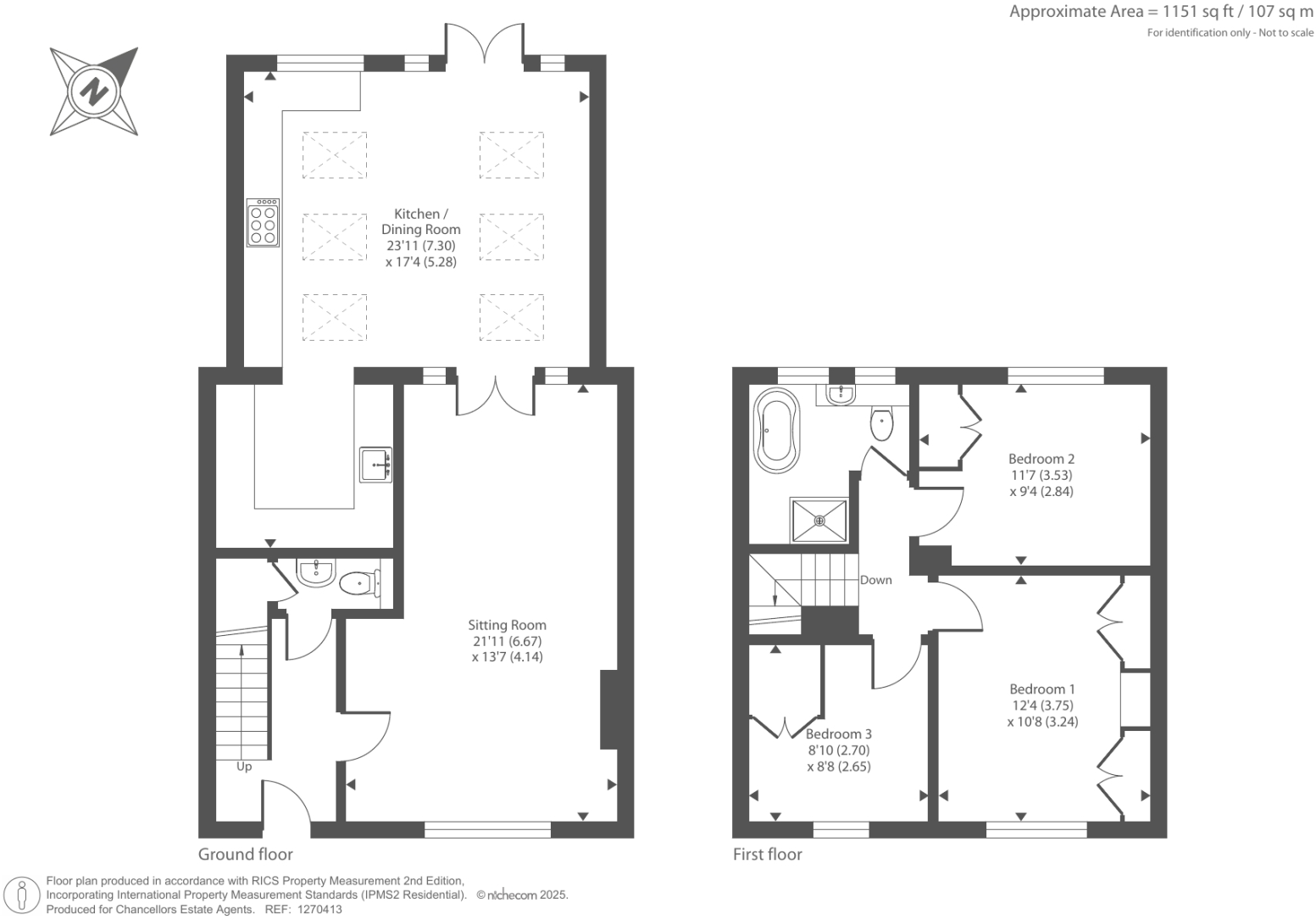
Set in this popular cul de sac location is this three bedroom home with open plan kitchen / breakfast / dining space opening onto rear garden with wood burning stove and central island. Sitting room, cloak room, utility space, bathroom. Parking and garage

Property Oracle says ..

This three-bedroom terraced house in Reading, Berkshire is listed at £525,000. The property boasts a modern extension, significantly increasing the kitchen and living space. The extension features skylights, creating a bright and airy atmosphere. The house also benefits from a well-maintained garden. The location is convenient, with nearby schools and transportation links. However, the lack of plot size data prevents a full assessment of land value. Compared to the average price per square foot in the area (£341), the listed price seems slightly higher, but the modern extension and desirable features could justify this.

Therefore, we give this property 7 / 10. *Disclaimer: This is our option and does constitute a recommendation or financial advice. Do your own research. *

Price
7
Condition
9
Location
8
Land
7
Bedrooms
3
Bathrooms
2
Sqft (est)
1,151.00

The heatmap indicates the level of crime in the area. The color of the heatmap indicates the crime severity and recency.

Metrics Year-on-Year

Average area value
382,304.00 £
Increased by 10.41 %
from 346,255.00 £
Est sale value
489,175.00 £
Increased by 23.91 %
from 394,793.00 £
Average area rental value
1,370.00 £/mo
Increased by 3.55 %
from 1,323.00 £/mo
Est letting value
1,151.00 £/mo
Unchanged by 0.00 %
from 1,151.00 £/mo
Est rental Yield
4.30 %
Decreased by 6.32 %
from 4.59 %
Crime Rate
4.00 %
Unchanged by 0.00 %
from 4.00 %

Agent Activity

  • Chancellors created the listing.

Nearby Schools

NameTypeOfstedDistance
The Wren SchoolFree SchoolsGood0.36 KM
Cranbury CollegeAcademy Alternative Provision Converter0.42 KM
Battle Primary AcademyAcademy Sponsor LedGood0.53 KM
Blessed Hugh Faringdon Catholic SchoolVoluntary Aided SchoolGood0.66 KM
Wilson Primary SchoolCommunity SchoolGood0.77 KM

Images

Kitchen / Dining Kitchen / Dining Reception Room Kitchen / Dining Kitchen Bedroom Bedroom Bedroom External Front Reception Room Reception Room Kitchen / Dining Dining Bedroom Bedroom Bathroom Hallway Hallway External Grounds External Grounds External Grounds External Grounds External Grounds

Nearby Streets

NameAverage PriceAverage SqftDistance
Shire's Head Close £ 000.00 KM
Suffolk Road £ 000.00 KM
Pineridge Gardens £ 245,00000.00 KM
Monck Court £ 000.00 KM
Connaught Road £ 000.00 KM

Nearby Transport

NameNLCTLCDistance
Reading West3160RDW1.35 KM
Reading3149RDG3.37 KM
Tilehurst3154TLH3.98 KM
Theale3153THE8.38 KM
Earley5694EAR9.23 KM

Nearby Listings

AddressPriceTypeScoreDistance
Reading, Berkshire, RG30 £ 525,000BUY7 / 100.00 KM
Hollins Walk, Reading, Berkshire, RG30 £ 400,000BUY6 / 100.08 KM
Hollins Walk, Reading, Berkshire, RG30 £ 425,000BUY7 / 100.08 KM
Ashdene Gardens, Reading, Berkshire £ 270,000BUY7 / 100.10 KM
Ashdene Gardens, Reading, Berkshire, RG30 £ 270,000BUY6 / 100.11 KM

Nearby Properties

AddressPriceDistance
4 Hollins Walk £ 425,0000.08 KM
18 Hollins Walk £ 325,0000.08 KM
2 Hollins Walk £ 235,0000.08 KM
5 Hollins Walk £ 374,0000.08 KM
16 Hollins Walk £ 339,9500.08 KM