Coopers says ..
Penthouse Duplex at Regatta Point – Riverside Luxury with Exceptional Views & Amenities Discover refined riverside living in this impressive penthouse duplex at the prestigious Regatta Point development. Offering sweeping river views from its spacious private balcony, this standout home...
Property Oracle says ..
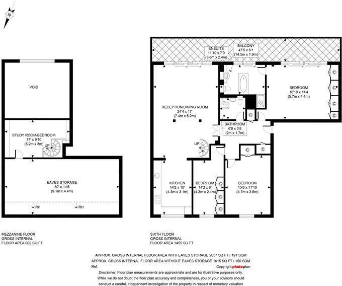
This is a spacious 3-bedroom flat on Kew Bridge Road, Brentford. The property boasts modern interiors, including a well-equipped kitchen and stylish bathrooms. Residents have access to communal facilities like a gym and sauna. The flat also features a balcony with pleasant views. While the property doesn’t have a private garden, it benefits from communal outdoor spaces. The location is convenient, with proximity to transportation links and local schools. However, the price appears high compared to the average price per square foot in the area.
Therefore, we give this property 7 / 10. *Disclaimer: This is our option and does constitute a recommendation or financial advice. Do your own research. *
- Price
- 5
- Condition
- 9
- Location
- 8
- Land
- 6
- Bedrooms
- 3
- Bathrooms
- 2
- Sqft (est)
- 2,661.95
The heatmap indicates the level of crime in the area. The color of the heatmap indicates the crime severity and recency.
Metrics Year-on-Year
- Average area value
- 457,259.00 £Decreased by 25.19 %
- Est sale value
- 2,134,883.90 £Increased by 19.17 %
- Average area rental value
- 1,825.00 £/moDecreased by 10.23 %
- Est letting value
- 7,985.85 £/moIncreased by 50.00 %
- Est rental Yield
- 4.79 %Increased by 20.05 %
- Crime Rate
- 4.00 %Unchanged by 0.00 %
Agent Activity
Coopers created the listing.
Nearby Schools
| Name | Type | Ofsted | Distance |
|---|---|---|---|
| Kew Green Preparatory School | Other Independent School | 0.27 KM | |
| Kew House | Other Independent School | 0.48 KM | |
| Green Dragon Primary School | Community School | Good | 0.67 KM |
| Brentford Children'S Centre | Children's Centre | 0.71 KM | |
| Lionel Primary School | Community School | Outstanding | 0.85 KM |
Images
Nearby Streets
| Name | Average Price | Average Sqft | Distance |
|---|---|---|---|
| Platinum Jubilee Arch | £ 629,950 | 0 | 0.00 KM |
| Bush Road | £ 0 | 0 | 0.00 KM |
| High Street | £ 447,500 | 0 | 0.00 KM |
| Lionel Road South | £ 0 | 0 | 0.00 KM |
| Kew Road | £ 0 | 0 | 0.00 KM |
Nearby Transport
| Name | NLC | TLC | Distance |
|---|---|---|---|
| Kew Bridge | 5593 | KWB | 0.41 KM |
| Kew Gardens | 5594 | KWG | 1.38 KM |
| Gunnersbury | 5588 | GUN | 1.74 KM |
| Brentford | 5552 | BFD | 2.11 KM |
| North Sheen | 5601 | NSH | 2.58 KM |
Nearby Listings
| Address | Price | Type | Score | Distance |
|---|---|---|---|---|
| Kew Bridge Road, Brentford | £ 1,000,000 | BUY | 7 / 10 | 0.00 KM |
| Kew Bridge Road, Brentford | £ 600,000 | BUY | 7 / 10 | 0.00 KM |
| Kew Bridge Road, Brentford, TW8 | £ 1,500,000 | BUY | Unknown | 0.00 KM |
| Kew Bridge Road, Brentford, TW8 | £ 425,000 | BUY | 7 / 10 | 0.00 KM |
| Kew Bridge Road, Brentford, TW8 | £ 375,000 | BUY | 7 / 10 | 0.01 KM |
Nearby Properties
| Address | Price | Distance |
|---|---|---|
| 36 Temeraire Place | £ 218,000 | 0.21 KM |
| 11 Temeraire Place | £ 250,000 | 0.21 KM |
| 25 Temeraire Place | £ 275,000 | 0.21 KM |
| 19 Temeraire Place | £ 318,000 | 0.21 KM |
| 17 Temeraire Place | £ 249,995 | 0.21 KM |