Chessington Avenue, Finchley, N3
By Chancellors
£ 2,500,000
Reviews
3 out of 5 stars
Chancellors says ..
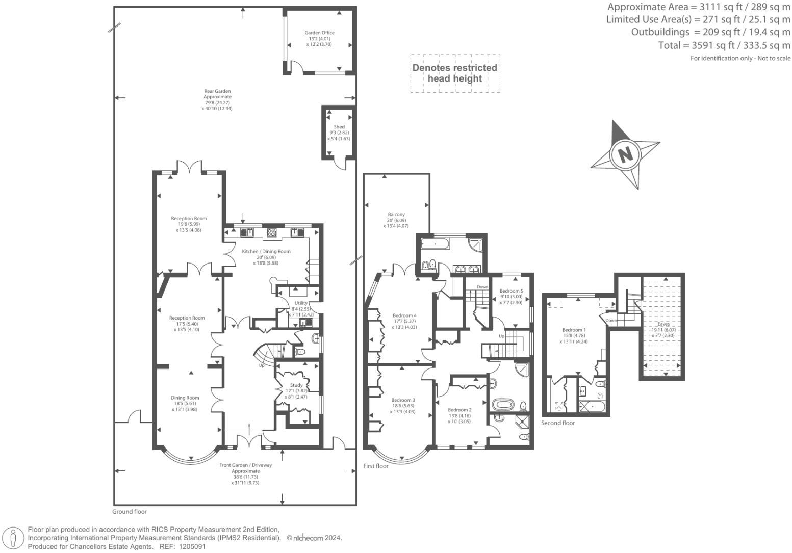
Detached five bedroom, four bathroom residence with four/five reception rooms including detached studio/office, garage and carriage drive for numerous cars. The property is situated in a prime location, just a road away from Kinloss Gardens Synagogue, bus routes and College Farm.
Property Oracle says ..
This six-bedroom, four-bathroom detached house in Finchley Church End, Barnet, offers substantial living space at approximately 3,591 square feet. The property, listed by Chancellors, is presented in good condition, with images showcasing well-maintained bathrooms, bedrooms with built-in wardrobes, and a spacious garden. The interior combines traditional and contemporary features. The living areas feature parquet flooring, multiple reception rooms, and a well-equipped kitchen, suggesting a comfortable family home. The house’s location in Finchley Church End offers a balance of suburban tranquility and proximity to urban amenities. Good local schools and transport links (though not immediately adjacent) enhance the property’s appeal. The absence of precise square footage details for comparable properties makes a definitive assessment of price per square foot challenging, but the overall asking price appears competitive within the context of similar properties in the area. The house’s layout and amenities are consistent with the expectations of a large family home in a sought-after area. Prospective buyers should be aware that there are several other similar properties in the vicinity. However, the images are sufficient enough to show that the property has been well maintained. The garden appears to be of a good size and has some good mature plants. The property seems reasonably priced for the area given the location and condition of the property. The property appears well-maintained, but potential buyers should conduct a thorough survey to assess the property’s condition and identify any necessary repairs.
Therefore, we give this property 7 / 10. *Disclaimer: This is our option and does constitute a recommendation or financial advice. Do your own research. *
- Price
- 7
- Condition
- 7
- Location
- 8
- Land
- 6
- Bedrooms
- 6
- Bathrooms
- 4
- Sqft (est)
- 3,591.00
The heatmap indicates the level of crime in the area. The color of the heatmap indicates the crime severity and recency.
Metrics Year-on-Year
- Average area value
- 1,216,667.00 £Increased by 18.81 %
- Est sale value
- 3,479,679.00 £Increased by 46.37 %
- Average area rental value
- 2,646.00 £/moIncreased by 2.16 %
- Est letting value
- 7,182.00 £/moIncreased by 100.00 %
- Est rental Yield
- 2.61 %Decreased by 13.86 %
- Crime Rate
- 3.00 %Unchanged by 0.00 %
Agent Activity
Chancellors created the listing.
Nearby Schools
| Name | Type | Ofsted | Distance |
|---|---|---|---|
| Chalgrove Primary School | Community School | Good | 0.42 KM |
| Garden Suburb Infant School | Community School | Good | 0.91 KM |
| Garden Suburb Junior School | Community School | Good | 0.91 KM |
| Finchley And Acton Yochien School | Other Independent School | Good | 0.94 KM |
| Lubavitch Senior Boys School | Other Independent School | Inadequate | 1.07 KM |
Images
Nearby Streets
| Name | Average Price | Average Sqft | Distance |
|---|---|---|---|
| Monkville Avenue | £ 0 | 0 | 0.00 KM |
| Alberon Gardens | £ 750,000 | 0 | 0.00 KM |
| Hillcrest Gardens | £ 0 | 0 | 0.00 KM |
| Anatoolpad | £ 0 | 0 | 0.00 KM |
| Hendon Park Row | £ 0 | 0 | 0.00 KM |
Nearby Transport
| Name | NLC | TLC | Distance |
|---|---|---|---|
| Cricklewood | 1519 | CRI | 3.78 KM |
| Hendon | 1522 | HEN | 4.13 KM |
| West Hampstead Thameslink | 1525 | WHP | 4.89 KM |
| West Hampstead | 1421 | WHD | 5.02 KM |
| Finchley Road And Frognal | 1445 | FNY | 5.04 KM |
Nearby Listings
| Address | Price | Type | Score | Distance |
|---|---|---|---|---|
| Charter Way, London | £ 260,000 | BUY | 6 / 10 | 0.17 KM |
| Charter Way, London | £ 399,950 | BUY | 6 / 10 | 0.17 KM |
| Fairholme Gardens, London, N3 | £ 3,500,000 | BUY | Unknown | 0.22 KM |
| Chalgrove Gardens, Finchley, N3 | £ 700,000 | BUY | 6 / 10 | 0.23 KM |
| Fairholme Gardens, London | £ 3,500,000 | BUY | 8 / 10 | 0.24 KM |
Nearby Properties
| Address | Price | Distance |
|---|---|---|
| 5 Chessington Avenue | £ 1,737,500 | 0.05 KM |
| 11 Chessington Avenue | £ 1,400,000 | 0.05 KM |
| 1 Chessington Avenue | £ 999,000 | 0.05 KM |
| 9 Chessington Avenue | £ 2,200,000 | 0.05 KM |
| 38 Chessington Avenue | £ 1,850,000 | 0.09 KM |