Oscar James says ..
With character and charm this very good size, two double bedroom bay fronted home is perfectly positioned for both the Kettering town centre and the railway station which is just a short walkaway. Offered to market with NO ONWARD CHAIN this property is presented beautifully by the curre...
Property Oracle says ..
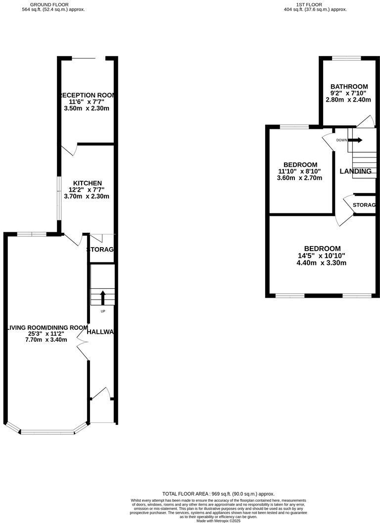
This is a two-bedroom terraced house on Roundhill Road in Kettering. The property is listed with Oscar James. It features a garden and is located near schools and transportation. The interior is generally well-maintained, though some areas could use updating. The asking price of £210,000 seems reasonable compared to the average price per square foot in the area.
Therefore, we give this property 7 / 10. *Disclaimer: This is our option and does constitute a recommendation or financial advice. Do your own research. *
- Price
- 8
- Condition
- 7
- Location
- 7
- Land
- 6
- Bedrooms
- 2
- Bathrooms
- 1
- Sqft (est)
- 969.00
The heatmap indicates the level of crime in the area. The color of the heatmap indicates the crime severity and recency.
Metrics Year-on-Year
- Average area value
- 427,000.00 £Increased by 34.23 %
- Est sale value
- 281,979.00 £Increased by 20.75 %
- Average area rental value
- 1,474.00 £/moIncreased by 65.99 %
- Est letting value
- 969.00 £/mo
- Est rental Yield
- 4.14 %Increased by 23.58 %
- Crime Rate
- 5.00 %Unchanged by 0.00 %
Agent Activity
Oscar James created the listing.
Nearby Schools
| Name | Type | Ofsted | Distance |
|---|---|---|---|
| Hawthorn Community Primary School | Academy Converter | 0.26 KM | |
| St Peter'S School | Other Independent School | 0.61 KM | |
| Greenfields Primary School And Nursery | Academy Sponsor Led | Outstanding | 0.66 KM |
| Southfield School For Girls | Academy Converter | Good | 0.76 KM |
| Highfield Road Children'S Centre | Children's Centre | 0.77 KM |
Images
Nearby Streets
| Name | Average Price | Average Sqft | Distance |
|---|---|---|---|
| Spring Rise | £ 195,000 | 0 | 0.00 KM |
| Boddington Road | £ 0 | 0 | 0.00 KM |
| Lonsdale Road | £ 0 | 0 | 0.00 KM |
| Goadby's Yard | £ 0 | 0 | 0.00 KM |
| Saunders Close | £ 0 | 0 | 0.00 KM |
Nearby Transport
| Name | NLC | TLC | Distance |
|---|---|---|---|
| Kettering | 1857 | KET | 1.02 KM |
Nearby Listings
| Address | Price | Type | Score | Distance |
|---|---|---|---|---|
| Roundhill Road, Kettering | £ 210,000 | BUY | 7 / 10 | 0.00 KM |
| Roundhill Road, Kettering, Northamptonshire, NN15 | £ 270,000 | BUY | 7 / 10 | 0.05 KM |
| NN15 Roundhill Road, Kettering | £ 300,000 | BUY | Unknown | 0.05 KM |
| NN15 Roundhill Road, Kettering | £ 220,000 | BUY | Unknown | 0.05 KM |
| Roundhill Road, Kettering, Northamptonshire, NN15 | £ 350,000 | BUY | 7 / 10 | 0.05 KM |
Nearby Properties
| Address | Price | Distance |
|---|---|---|
| 3 St Michaels Gardens | £ 112,000 | 0.04 KM |
| 1 St Michaels Gardens | £ 122,000 | 0.04 KM |
| 5 St Michaels Gardens | £ 115,000 | 0.04 KM |
| 4 St Michaels Gardens | £ 107,000 | 0.04 KM |
| 2 St Michaels Gardens | £ 176,000 | 0.04 KM |