School Lane, Great Barton, Bury St Edmunds, Suffolk, IP31
JA

School Lane, Great Barton, Bury St Edmunds, Suffolk, IP31

By Jackson-Stops

£ 325,000

Reviews

3 out of 5 stars

Jackson-Stops says ..

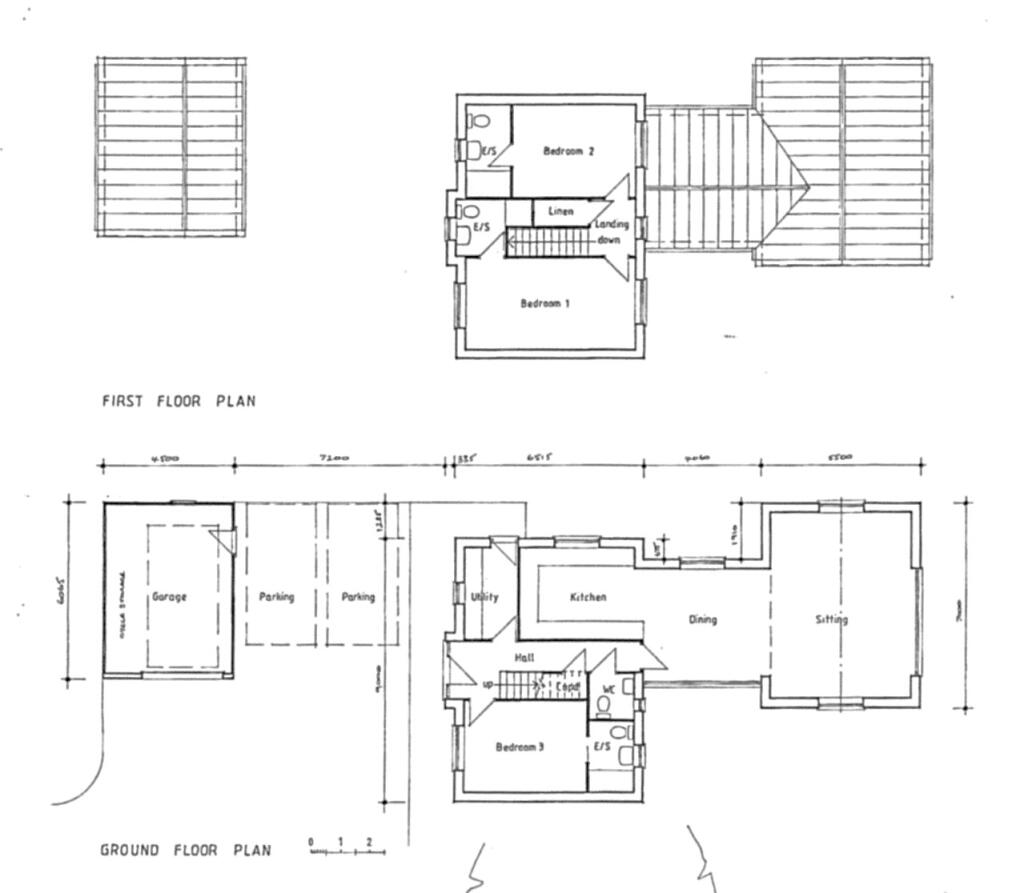
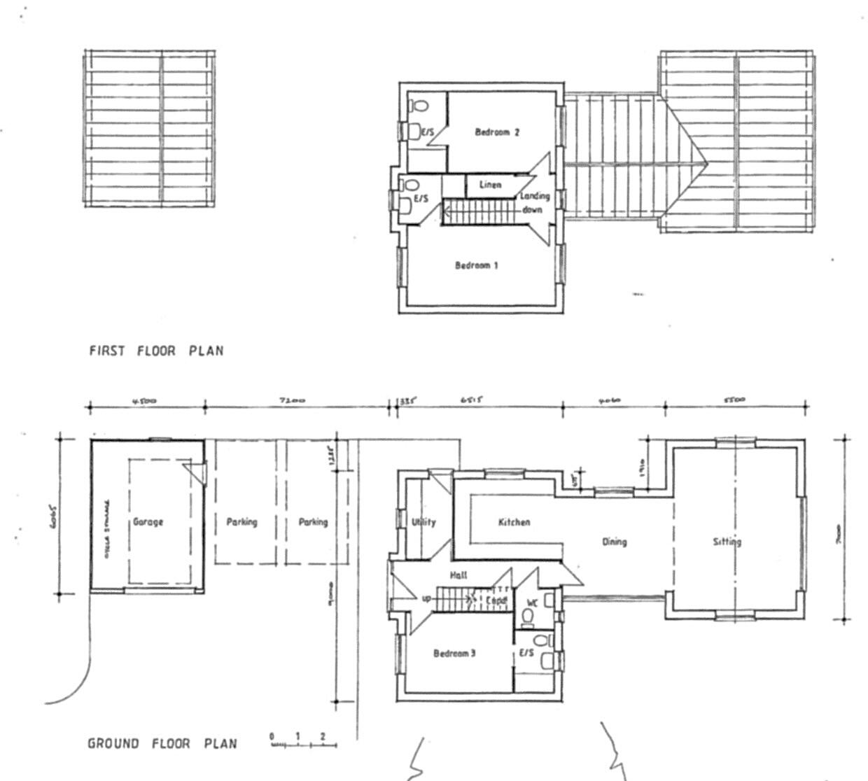
An exciting opportunity to acquire a circa 0.48 of an acre garden plot, with full planning consent to build a stylish home. INTRODUCTION The building plot sits in an idyllic position to the end of a private drive, which is shared with two neighbours, off The Park, in the centre of...

Property Oracle says ..

This property in Great Barton presents a compelling opportunity. While the provided floor plans and images do not show the interior condition, the substantial plot size (0.193 hectares) and relatively affordable price point compared to similar properties on Garden Close make it attractive. The proximity to a primary school is a plus for families. However, potential buyers should be aware that the property is further from the amenities of Bury St Edmunds and requires further investigation into its internal condition.

Therefore, we give this property 7 / 10. *Disclaimer: This is our option and does constitute a recommendation or financial advice. Do your own research. *

Price
6
Condition
0
Location
7
Land
8
Bedrooms
0
Bathrooms
0
Sqft (est)
545.13

The heatmap indicates the level of crime in the area. The color of the heatmap indicates the crime severity and recency.

Metrics Year-on-Year

Average area value
223,188.00 £
Decreased by 13.36 %
from 257,594.00 £
Est sale value
171,170.82 £
Decreased by 2.48 %
from 175,531.86 £
Average area rental value
1,283.00 £/mo
Increased by 2.15 %
from 1,256.00 £/mo
Est letting value
545.13 £/mo
Unchanged by 0.00 %
from 545.13 £/mo
Est rental Yield
6.90 %
Increased by 17.95 %
from 5.85 %
Crime Rate
1.00 %
Unchanged by 0.00 %
from 1.00 %

Agent Activity

  • Jackson-Stops created the listing.

Nearby Schools

NameTypeOfstedDistance
Great Barton Church Of England Primary AcademyAcademy Converter0.38 KM
Abbots Green Primary AcademyAcademy Sponsor Led3.13 KM
First Base Bury St EdmundsAcademy Alternative Provision Converter3.13 KM
Sybil Andrews AcademyAcademy Sponsor LedRequires improvement3.13 KM
Sebert Wood Community Primary SchoolCommunity SchoolOutstanding4.44 KM

Images

Plot Plot Plot Plot Entrance Woodland Plot Gates Drive Access Drive Access Picture No. 12 Picture No. 02 Picture No. 10 Picture No. 03 Picture No. 04 Picture No. 05 Picture No. 06 Picture No. 07 Picture No. 08 Picture No. 09 Picture No. 11 Picture No. 12 Picture No. 13 Picture No. 14 Picture No. 15 Picture No. 16 Picture No. 17 Picture No. 18 Picture No. 19 Picture No. 20

Nearby Streets

NameAverage PriceAverage SqftDistance
Garden Close £ 695,00000.00 KM
Edes Paddock £ 000.00 KM
Church Road £ 000.00 KM
Bury Road £ 000.00 KM
Greenway £ 000.00 KM

Nearby Transport

NameNLCTLCDistance
Thurston7356TRS5.07 KM
Bury St Edmunds7008BSE6.31 KM

Nearby Listings

AddressPriceTypeScoreDistance
School Lane, Great Barton, Bury St Edmunds, Suffolk, IP31 £ 325,000BUY7 / 100.00 KM
Garden Close, The Park, Great Barton £ 695,000BUYUnknown0.08 KM
The Park, Great Barton £ 450,000BUY5 / 100.14 KM
Downing Drive, Great Barton £ 450,000BUYUnknown0.19 KM
Great Barton, Suffolk £ 1,500,000BUYUnknown0.23 KM

Nearby Properties

AddressPriceDistance
3 Garden Close £ 387,0000.08 KM
5 Garden Close £ 212,0000.08 KM
11 Garden Close £ 460,0000.08 KM
12 Garden Close £ 510,0000.08 KM
4 Garden Close £ 390,0000.08 KM