St George's Place, Canterbury, CT1
By Thomas & Partners
£ 375,000
Reviews
4 out of 5 stars
Thomas & Partners says ..
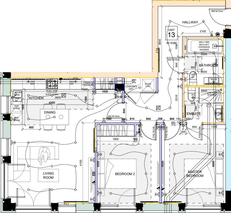
UNIT 13 - NEW LUXURY APARTMENTS IN THE CITY OF CANTERBURY! Set within the prestigious Cathedral City of Canterbury, this stunning new build, first floor apartment is nestled within a brand-new block of 34 luxury residences which are arranged over four floors. Enjoying high-specification and cont...
Property Oracle says ..
This property is a new build apartment located in Canterbury, Kent. The location is excellent, with easy access to Canterbury East and West train stations, providing convenient links to London and other major cities. Several highly-rated schools are also within a short distance, making it ideal for families. The apartment itself appears to be in excellent condition, with modern fixtures and fittings. The images show a contemporary design and high-quality finishes. While the plot size and square footage are not provided, the list price of £375,000 seems reasonable considering the average price of similar properties in the area and the high standard of the build. The lack of information regarding the size of the property prevents a more precise assessment of value.
Therefore, we give this property 8 / 10. *Disclaimer: This is our option and does constitute a recommendation or financial advice. Do your own research. *
- Price
- 8
- Condition
- 10
- Location
- 10
- Land
- 5
- Bedrooms
- 2
- Bathrooms
- 1
The heatmap indicates the level of crime in the area. The color of the heatmap indicates the crime severity and recency.
Metrics Year-on-Year
- Average area value
- 402,678.00 £Increased by 11.07 %
- Average area rental value
- 1,017.00 £/moDecreased by 9.28 %
- Est rental Yield
- 3.03 %Decreased by 18.33 %
- Crime Rate
- 44.00 %Unchanged by 0.00 %
Agent Activity
Thomas & Partners created the listing.
Nearby Schools
| Name | Type | Ofsted | Distance |
|---|---|---|---|
| The King'S School Canterbury | Other Independent School | 0.48 KM | |
| St Thomas' Catholic Primary School, Canterbury | Voluntary Aided School | Outstanding | 0.57 KM |
| Canterbury Christ Church University | Higher Education Institutions | 0.61 KM | |
| Barton Court Grammar School | Academy Converter | Good | 0.72 KM |
| St Johns Church Of England Primary School | Voluntary Controlled School | Good | 0.82 KM |
Images
Nearby Streets
| Name | Average Price | Average Sqft | Distance |
|---|---|---|---|
| Magistrates Court Parking | £ 0 | 0 | 0.00 KM |
| Canterbury Lane | £ 310,000 | 0 | 0.00 KM |
| St George's Lane | £ 165,000 | 0 | 0.00 KM |
| Priory Gardens | £ 0 | 0 | 0.00 KM |
| City Wall | £ 0 | 0 | 0.00 KM |
Nearby Transport
| Name | NLC | TLC | Distance |
|---|---|---|---|
| Canterbury East | 5164 | CBE | 1.00 KM |
| Canterbury West | 5007 | CBW | 1.34 KM |
| Sturry | 5029 | STU | 4.96 KM |
| Bekesbourne | 5198 | BKS | 6.00 KM |
| Chartham | 5008 | CRT | 7.68 KM |
Nearby Listings
| Address | Price | Type | Score | Distance |
|---|---|---|---|---|
| St George's Place, Canterbury, CT1 | £ 375,000 | BUY | 8 / 10 | 0.00 KM |
| St George's Place, Canterbury, CT1 | £ 270,000 | BUY | 6 / 10 | 0.00 KM |
| St George's Place, Canterbury, CT1 | £ 395,000 | BUY | 5 / 10 | 0.00 KM |
| St George's Place, Canterbury, CT1 | £ 10,500,000 | BUY | 4 / 10 | 0.00 KM |
| St George's Place, Canterbury, CT1 | £ 255,000 | BUY | 6 / 10 | 0.00 KM |
Nearby Properties
| Address | Price | Distance |
|---|---|---|
| 58 Dover Street | £ 265,000 | 0.10 KM |
| 17a Dover Street | £ 90,000 | 0.11 KM |
| 10 St Pauls Terrace | £ 312,500 | 0.11 KM |
| 5 St Pauls Terrace | £ 145,000 | 0.11 KM |
| 8 St Pauls Terrace | £ 294,750 | 0.11 KM |