Rawsthorne Avenue, Manchester
By Jacob Knight
£ 699,950
Reviews
1 out of 5 stars
Jacob Knight says ..
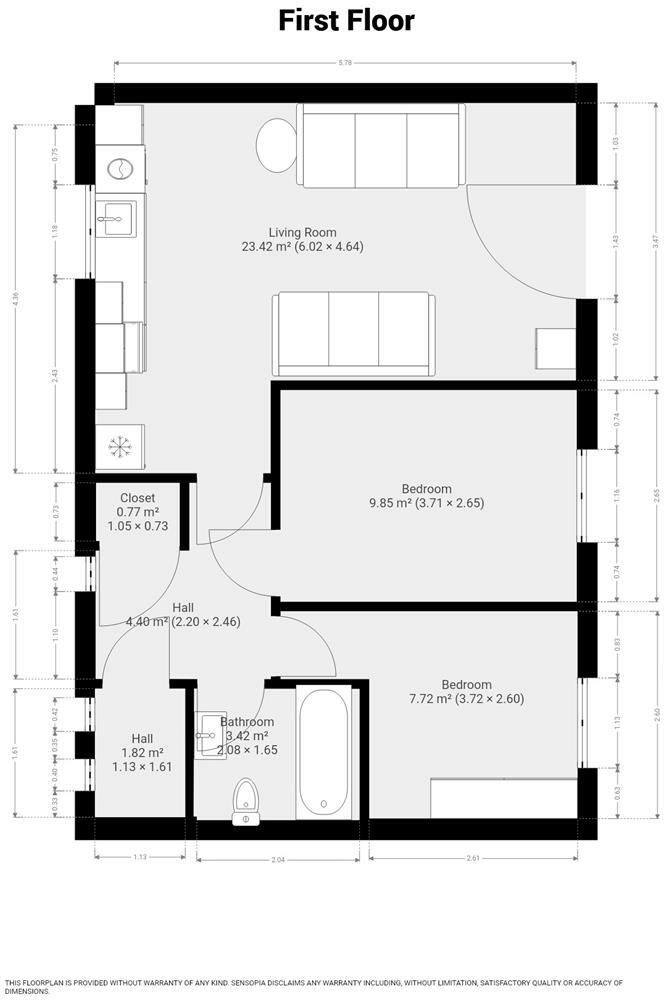
Fantastic Investment Opportunity – Standalone Block of 6 Flats in Gorton Situated on the popular Rawsthorne Avenue in Gorton, this standalone block of six spacious two-bedroom flats is a rare and exciting investment opportunity. The building comprises two flats on each of its three floor...
Property Oracle says ..
This property is a two-bedroom apartment located in Longsight, Manchester, listed at £699,950. The apartment is situated within a brick-built apartment block. While the building’s exterior appears reasonably maintained, the interior photographs reveal a need for some level of refurbishment and a thorough cleaning. Carpets are worn, and there is visible dirt and debris in several rooms. The bathroom shows some aging and wear. The apartment lacks a private garden. The location offers proximity to local schools and transport links, with several train stations within a short distance. However, Longsight is not generally considered a premium location within Manchester, and house prices in the surrounding area are comparatively lower than in more central or affluent neighborhoods. The asking price appears high relative to the property’s condition, size, and lack of land. Potential buyers should carefully consider these factors before making an offer, and independent valuation is advised. The property might appeal to investors seeking rental income, but even in this case, the pricing needs to be strongly reviewed considering the current market trends and nearby comparable properties.
Therefore, we give this property 3 / 10. *Disclaimer: This is our option and does constitute a recommendation or financial advice. Do your own research. *
- Price
- 3
- Condition
- 4
- Location
- 6
- Land
- 1
- Bedrooms
- 2
- Bathrooms
- 1
- Sqft (est)
- 539.92
The heatmap indicates the level of crime in the area. The color of the heatmap indicates the crime severity and recency.
Metrics Year-on-Year
- Average area value
- 480,222.00 £Decreased by 47.72 %
- Est sale value
- 306,674.56 £Decreased by 10.13 %
- Average area rental value
- 1,868.00 £/moIncreased by 9.11 %
- Est letting value
- 1,079.84 £/moIncreased by 100.00 %
- Est rental Yield
- 4.67 %Increased by 108.48 %
- Crime Rate
- 40.00 %Unchanged by 0.00 %
Agent Activity
Jacob Knight created the listing.
Nearby Schools
| Name | Type | Ofsted | Distance |
|---|---|---|---|
| Rushbrook Primary Academy | Academy Sponsor Led | Requires improvement | 0.25 KM |
| Cedar Mount Academy | Academy Sponsor Led | Requires improvement | 0.30 KM |
| Melland High School | Academy Special Converter | Outstanding | 0.30 KM |
| Old Hall Drive Academy | Academy Converter | Good | 0.74 KM |
| Sacred Heart Rc Primary School | Voluntary Aided School | Outstanding | 0.74 KM |
Images
Nearby Streets
| Name | Average Price | Average Sqft | Distance |
|---|---|---|---|
| Mullion Close | £ 360,000 | 0 | 0.00 KM |
| Wembley Road | £ 270,000 | 0 | 0.00 KM |
| Poplar Grove | £ 0 | 0 | 0.00 KM |
| Goldsmith Road | £ 220,000 | 0 | 0.00 KM |
| Monkton Avenue | £ 0 | 0 | 0.00 KM |
Nearby Transport
| Name | NLC | TLC | Distance |
|---|---|---|---|
| Ryder Brow | 2977 | RRB | 0.60 KM |
| Belle Vue | 2785 | BLV | 1.52 KM |
| Reddish North | 2979 | RDN | 1.81 KM |
| Gorton | 2962 | GTO | 2.11 KM |
| Reddish South | 2857 | RDS | 2.28 KM |
Nearby Listings
| Address | Price | Type | Score | Distance |
|---|---|---|---|---|
| Rawsthorne Avenue, Manchester | £ 699,950 | BUY | 3 / 10 | 0.00 KM |
| Rawsthorne Ave Manchester, Manchester | £ 195,000 | BUY | 7 / 10 | 0.00 KM |
| Rawsthorne Avenue, Manchester, Greater Manchester, M18 | £ 215,000 | BUY | 5 / 10 | 0.06 KM |
| Rawsthorne Avenue, Manchester, Greater Manchester | £ 210,000 | BUY | 5 / 10 | 0.08 KM |
| Rawsthorne Avenue, Manchester | £ 115,000 | BUY | 4 / 10 | 0.11 KM |
Nearby Properties
| Address | Price | Distance |
|---|---|---|
| 20 Rawsthorne Avenue | £ 118,000 | 0.05 KM |
| 38 Rawsthorne Avenue | £ 85,000 | 0.05 KM |
| 58 Rawsthorne Avenue | £ 115,000 | 0.05 KM |
| 48 Rawsthorne Avenue | £ 65,000 | 0.05 KM |
| 46 Rawsthorne Avenue | £ 171,850 | 0.05 KM |