Carisbrooke Road, St. Leonards-On-Sea
By MADE
£ 110,000
Reviews
2 out of 5 stars
MADE says ..
A bright and spacious studio apartment with a SEPARATE KITCHEN located in a sought after central St. Leonards setting. It's enviably placed within immediate walking distance of local shops, antique stores, galleries, restaurants and the mainline railway station which benefits from connections to ...
Property Oracle says ..
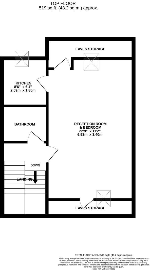
This flat is located on Carisbrooke Road in St. Leonards-on-Sea, East Sussex. The property is a studio flat with 518.82 sqft of living space and is listed at £110,000. This is significantly lower than the average property price in the area (£272,984) and also lower than the average price per sqft (£351). However, comparable properties in the area range from £43,000 to £275,000, indicating a wide range of prices. The flat appears to be in reasonable condition, though the images do not allow for a complete assessment. The property does not have a garden. The location benefits from proximity to St Leonards Warrior Square train station (0.40 KM) and several schools within a 1.24 KM radius, including Christ Church Cofe Primary And Nursery Academy and St Mary Star Of The Sea Catholic Primary School, both rated as “Good” by Ofsted. The lack of a garden and the relatively small size of the property must be considered against the price.
Therefore, we give this property 5 / 10. *Disclaimer: This is our option and does constitute a recommendation or financial advice. Do your own research. *
- Price
- 6
- Condition
- 7
- Location
- 8
- Land
- 1
- Bedrooms
- 0
- Bathrooms
- 1
- Sqft (est)
- 518.82
The heatmap indicates the level of crime in the area. The color of the heatmap indicates the crime severity and recency.
Metrics Year-on-Year
- Average area value
- 225,325.00 £Decreased by 9.99 %
- Est sale value
- 204,933.90 £Increased by 32.55 %
- Average area rental value
- 1,094.00 £/moIncreased by 7.25 %
- Est letting value
- 518.82 £/moUnchanged by 0.00 %
- Est rental Yield
- 5.83 %Increased by 19.22 %
- Crime Rate
- 25.00 %Unchanged by 0.00 %
Agent Activity
MADE marked this listing as sold.
MADE created the listing.
Nearby Schools
| Name | Type | Ofsted | Distance |
|---|---|---|---|
| St Leonards Children'S Centre | Children's Centre | 0.25 KM | |
| Lansdowne Children'S Centre | Secure Units | 0.31 KM | |
| Christ Church Cofe Primary And Nursery Academy | Academy Converter | Good | 0.85 KM |
| St Mary Star Of The Sea Catholic Primary School | Voluntary Aided School | Good | 0.98 KM |
| St Paul'S Church Of England Academy | Academy Converter | Good | 1.24 KM |
Images
Nearby Streets
| Name | Average Price | Average Sqft | Distance |
|---|---|---|---|
| The Uplands | £ 400,000 | 0 | 0.00 KM |
| Archery Villas | £ 0 | 0 | 0.00 KM |
| Station Approach | £ 430,000 | 0 | 0.00 KM |
| Upper Maze Hill | £ 0 | 0 | 0.00 KM |
| Saint John's Road | £ 0 | 0 | 0.00 KM |
Nearby Transport
| Name | NLC | TLC | Distance |
|---|---|---|---|
| St Leonards Warrior Square | 5239 | SLQ | 0.40 KM |
| West St Leonards | 5242 | WLD | 1.89 KM |
| Hastings | 5219 | HGS | 2.22 KM |
| Ore | 5021 | ORE | 4.08 KM |
| Crowhurst | 5233 | CWU | 7.24 KM |
Nearby Listings
| Address | Price | Type | Score | Distance |
|---|---|---|---|---|
| Carisbrooke Road, St. Leonards-On-Sea | £ 110,000 | BUY | 5 / 10 | 0.00 KM |
| Carisbrooke Road, St. Leonards-On-Sea | £ 170,000 | BUY | 9 / 10 | 0.01 KM |
| Carisbrooke Road, St. Leonards-On-Sea | £ 180,000 | BUY | 5 / 10 | 0.01 KM |
| Carisbrooke Road, St Leonards-On-Sea | £ 50,000 | BUY | Unknown | 0.02 KM |
| Carisbrooke Road, St. Leonards-On-Sea | £ 129,950 | BUY | Unknown | 0.03 KM |
Nearby Properties
| Address | Price | Distance |
|---|---|---|
| 43 Carisbrooke Road | £ 695,000 | 0.01 KM |
| 54 Carisbrooke Road | £ 264,000 | 0.01 KM |
| 45 Carisbrooke Road | £ 75,000 | 0.01 KM |
| 53 Carisbrooke Road | £ 115,000 | 0.01 KM |
| 47 Carisbrooke Road | £ 43,000 | 0.01 KM |