William Reynolds House, Street
By holland & odam
£ 118,500
Reviews
2 out of 5 stars
holland & odam says ..
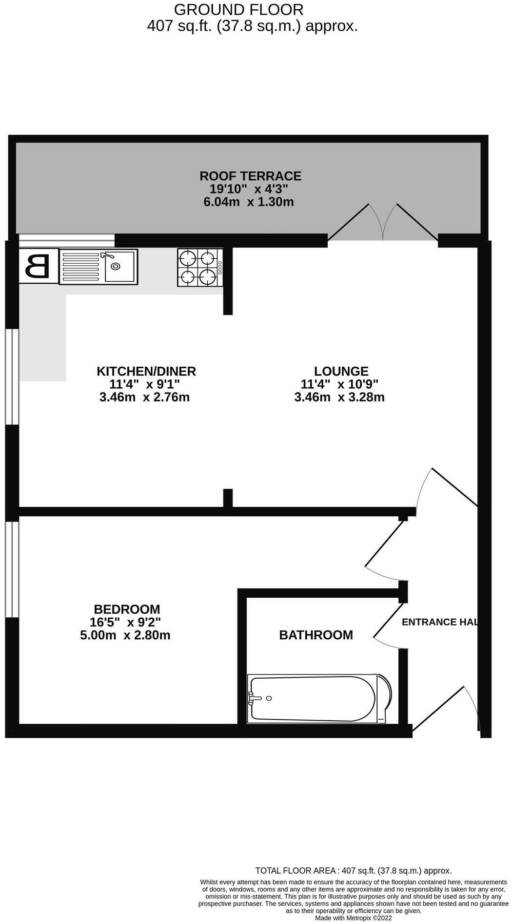
A superb apartment enjoying the benefit of an outside roof terrace and allocated off road parking. Tastefully decorated and well presented the apartment forms part of William Reynolds House, a historic former mill building and is available with no onward chain. Ideal for first time buyers and inv...
Property Oracle says ..
This one-bedroom apartment in Street, Somerset, is situated within a converted mill building. The listing highlights the property’s tasteful decor and well-presented condition. The photos show a modern interior with a good-sized bedroom and a combined kitchen and living area with access to a small outdoor patio area. A significant advantage is the proximity to several schools which could increase demand among families and students. However, a notable disadvantage is the lack of substantial outdoor space and the absence of detailed information about the building’s amenities, including parking and any potential service charges. The price point seems consistent with the market for comparable apartments in the area, although limited data prevents a definitive conclusion on its value relative to its size. Overall, this property presents an attractive option for first-time buyers or investors seeking a conveniently located one-bedroom flat in a desirable area. Prospective buyers should thoroughly investigate the associated costs such as service charges and parking options before making an offer.
Therefore, we give this property 5 / 10. *Disclaimer: This is our option and does constitute a recommendation or financial advice. Do your own research. *
- Price
- 7
- Condition
- 7
- Location
- 7
- Land
- 2
- Bedrooms
- 1
- Bathrooms
- 1
- Sqft (est)
- 406.88
The heatmap indicates the level of crime in the area. The color of the heatmap indicates the crime severity and recency.
Metrics Year-on-Year
- Average area value
- 220,000.00 £Decreased by 5.99 %
- Est sale value
- 133,456.64 £Increased by 23.77 %
- Average area rental value
- 890.00 £/moDecreased by 4.91 %
- Est letting value
- 406.88 £/moUnchanged by 0.00 %
- Est rental Yield
- 4.85 %Increased by 1.04 %
- Crime Rate
- 3.00 %Unchanged by 0.00 %
Agent Activity
holland & odam marked this listing as sold.
holland & odam created the listing.
Nearby Schools
| Name | Type | Ofsted | Distance |
|---|---|---|---|
| Crispin School Academy | Academy Converter | Good | 0.16 KM |
| Strode College | Further Education | Outstanding | 0.20 KM |
| Elmhurst Junior School | Community School | Requires improvement | 0.62 KM |
| Millfield School | Other Independent School | 1.02 KM | |
| Hindhayes Infant School | Community School | Good | 1.04 KM |
Images
Nearby Streets
| Name | Average Price | Average Sqft | Distance |
|---|---|---|---|
| Church Road | £ 0 | 0 | 0.00 KM |
| Little Orchard | £ 0 | 0 | 0.00 KM |
| Kingston Close | £ 0 | 0 | 0.00 KM |
| Hawthorn Road | £ 0 | 0 | 0.00 KM |
| Stoke Road | £ 0 | 0 | 0.00 KM |
Nearby Listings
| Address | Price | Type | Score | Distance |
|---|---|---|---|---|
| William Reynolds House, Street | £ 118,500 | BUY | 5 / 10 | 0.00 KM |
| The Boardwalk, Street | £ 495,000 | BUY | 7 / 10 | 0.02 KM |
| Springbok Close, Street | £ 99,950 | BUY | 5 / 10 | 0.04 KM |
| The Mead, Street | £ 305,000 | BUY | 6 / 10 | 0.26 KM |
| Strode Road, Street, BA16 | £ 170,000 | BUY | 5 / 10 | 0.35 KM |
Nearby Properties
| Address | Price | Distance |
|---|---|---|
| 2 Springbok Close | £ 140,000 | 0.03 KM |
| 1 Springbok Close | £ 230,000 | 0.03 KM |
| 5 Springbok Close | £ 248,850 | 0.03 KM |
| 4 Springbok Close | £ 190,000 | 0.03 KM |
| 10 Bowling Green | £ 138,000 | 0.07 KM |