109 Celandine Close, South Ockendon, Essex RM15 6JB
AU

109 Celandine Close, South Ockendon, Essex RM15 6JB

By Auction House

£ 110,000

Reviews

2 out of 5 stars

Auction House says ..

FOR SALE BY ONLINE AUCTION ON TUESDAY 27TH JANUARY 2026 TO REGISTER FOR LEGAL PACKS AND BIDDING INSTRUCTIONS PLEASE VISIT OUR WEBSITE

Property Oracle says ..

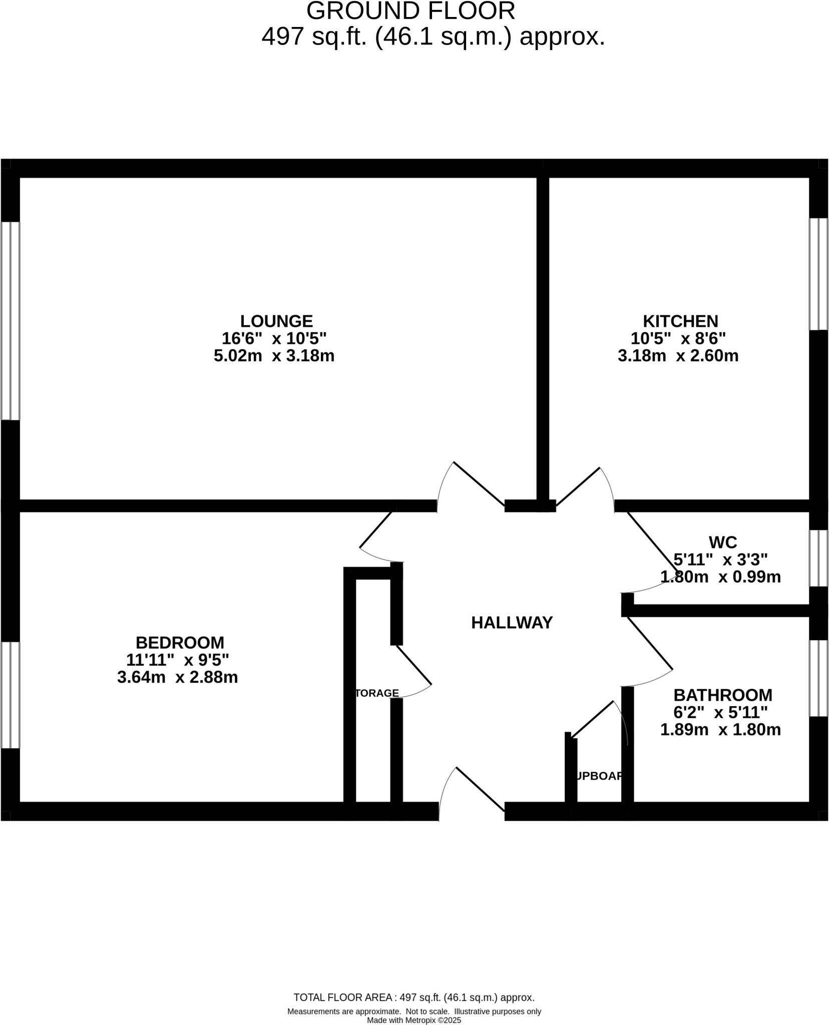
The property is a one-bedroom flat in South Ockendon, offered at a price of £110,000. While the location offers reasonable access to amenities and transport, the condition of the property suggests it requires significant renovation. The lack of private land is a drawback. However, the price appears competitive, presenting an opportunity for buyers willing to invest in refurbishment. The property is listed by Auction House.

Therefore, we give this property 5 / 10. *Disclaimer: This is our option and does constitute a recommendation or financial advice. Do your own research. *

Price
9
Condition
4
Location
6
Land
1
Bedrooms
1
Bathrooms
1
Sqft (est)
430.87

The heatmap indicates the level of crime in the area. The color of the heatmap indicates the crime severity and recency.

Metrics Year-on-Year

Average area value
234,983.00 £
Decreased by 47.41 %
from 446,796.00 £
Est sale value
68,939.20 £
Decreased by 57.89 %
from 163,730.60 £
Average area rental value
1,345.00 £/mo
Decreased by 7.62 %
from 1,456.00 £/mo
Est letting value
0.00 £/mo
Decreased by 100.00 %
from 430.87 £/mo
Est rental Yield
6.87 %
Increased by 75.70 %
from 3.91 %
Crime Rate
25.00 %
Unchanged by 0.00 %
from 25.00 %

Agent Activity

  • Auction House created the listing.

Nearby Schools

NameTypeOfstedDistance
Benyon Primary SchoolAcademy Sponsor LedGood0.59 KM
Bonnygate Primary SchoolAcademy Converter0.92 KM
Ockendon Children'S Centre P1-2Children's Centre1.19 KM
Shaw Primary AcademyAcademy ConverterGood1.35 KM
Harris Academy OckendonAcademy Converter1.83 KM

Images

WhatsApp Image 2025-12-19 At 15.53.15  8  T202512191633.jpeg WhatsApp Image 2025-12-19 At 15.53.15  4  T202512191633.jpeg WhatsApp Image 2025-12-19 At 15.53.15  1  T202512191633.jpeg WhatsApp Image 2025-12-19 At 15.53.15 T202512191633.jpeg WhatsApp Image 2025-12-19 At 15.53.15  2  T202512191633.jpeg WhatsApp Image 2025-12-19 At 15.53.15  5  T202512191633.jpeg WhatsApp Image 2025-12-19 At 15.53.14 T202512191633.jpeg WhatsApp Image 2025-12-19 At 15.53.15  3  T202512191633.jpeg WhatsApp Image 2025-12-19 At 15.53.15  6  T202512191633.jpeg WhatsApp Image 2025-12-19 At 15.53.15  7  T202512191633.jpeg

Nearby Streets

NameAverage PriceAverage SqftDistance
Orchard Close £ 000.00 KM
Church Crescent £ 000.00 KM
Falcon Avenue £ 260,00000.00 KM
Nelson Road £ 360,00000.00 KM
Birch Road £ 000.00 KM

Nearby Transport

NameNLCTLCDistance
Ockendon7451OCK0.47 KM
Chafford Hundred7447CFH3.77 KM
Grays7443GRY5.70 KM
Upminster7464UPM6.49 KM
Purfleet7453PFL7.55 KM

Nearby Listings

AddressPriceTypeScoreDistance
109 Celandine Close, South Ockendon, Essex RM15 6JB £ 110,000BUY5 / 100.00 KM
Viola Close, South Ockendon £ 280,000BUY6 / 100.09 KM
South Road, South Ockendon, Essex, RM15 £ 375,000BUY6 / 100.11 KM
South Road, SOUTH OCKENDON £ 375,000BUY6 / 100.11 KM
South Road, South Ockendon, RM15 £ 375,000BUY6 / 100.12 KM

Nearby Properties

AddressPriceDistance
9 Quince Tree Close £ 335,0000.06 KM
5 Quince Tree Close £ 133,5000.06 KM
14 Quince Tree Close £ 92,9950.06 KM
19 Quince Tree Close £ 242,0000.07 KM
21 Quince Tree Close £ 248,5000.07 KM