Hunters says ..
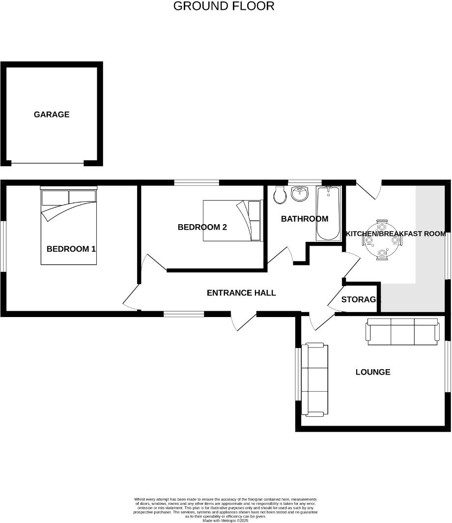
A well appointed, no onward chain - Two bedroom, semi-detached bungalow in Willesborough. Found within the popular area of Willesborough, offering great road/railway links - Also close by to a parade of local shops, and primary school too. Not only is this property sold with no chain com...
Property Oracle says ..
Therefore, we give this property 7 / 10. *Disclaimer: This is our option and does constitute a recommendation or financial advice. Do your own research. *
- Price
- 7
- Condition
- 6
- Location
- 8
- Land
- 7
- Bedrooms
- 2
- Bathrooms
- 1
The heatmap indicates the level of crime in the area. The color of the heatmap indicates the crime severity and recency.
Metrics Year-on-Year
- Average area value
- 257,097.00 £Decreased by 8.25 %
- Average area rental value
- 956.00 £/moIncreased by 1.92 %
- Est rental Yield
- 4.46 %Increased by 10.95 %
- Crime Rate
- 2.00 %Unchanged by 0.00 %
from 280,201.00 £
from 938.00 £/mo
from 4.02 %
from 2.00 %
Agent Activity
Hunters created the listing.
Nearby Schools
| Name | Type | Ofsted | Distance |
|---|---|---|---|
| The North School | Academy Converter | 0.28 KM | |
| Cornfields School | Other Independent Special School | Good | 0.60 KM |
| Ashford School | Other Independent School | 0.78 KM | |
| The Norton Knatchbull School | Academy Converter | Good | 0.82 KM |
| Waterside Children'S Centre | Children's Centre | 1.09 KM |
Images
Nearby Streets
| Name | Average Price | Average Sqft | Distance |
|---|---|---|---|
| Mill Court | £ 0 | 0 | 0.00 KM |
| Tannery Lane | £ 0 | 0 | 0.00 KM |
| Newtown Road | £ 0 | 0 | 0.00 KM |
| Newtown Road | £ 0 | 0 | 0.00 KM |
| Kimberley Way | £ 0 | 0 | 0.00 KM |
Nearby Transport
| Name | NLC | TLC | Distance |
|---|---|---|---|
| Ashford International | 5004 | AFK | 0.81 KM |
| Wye | 5031 | WYE | 6.78 KM |
| Ham Street | 5037 | HMT | 9.07 KM |
Nearby Listings
| Address | Price | Type | Score | Distance |
|---|---|---|---|---|
| Birling Road, Willesborough | £ 280,000 | BUY | 7 / 10 | 0.00 KM |
| Birling Road, Ashford, Kent | £ 185,000 | BUY | 6 / 10 | 0.07 KM |
| Birling Road, Ashford | £ 300,000 | BUY | 7 / 10 | 0.08 KM |
| Mabledon Avenue, Ashford | £ 325,000 | BUY | 6 / 10 | 0.10 KM |
| Mabledon Avenue, Ashford, TN24 8 | £ 375,000 | BUY | 7 / 10 | 0.13 KM |
Nearby Properties
| Address | Price | Distance |
|---|---|---|
| 77 Birling Road | £ 170,000 | 0.07 KM |
| 92 Birling Road | £ 148,000 | 0.07 KM |
| 71 Birling Road | £ 230,500 | 0.07 KM |
| 108 Birling Road | £ 21,000 | 0.07 KM |
| 75 Birling Road | £ 310,000 | 0.07 KM |