Station Yard, Needham Market, Ipswich
By Hamilton Smith
£ 100,000
Reviews
2 out of 5 stars
Hamilton Smith says ..
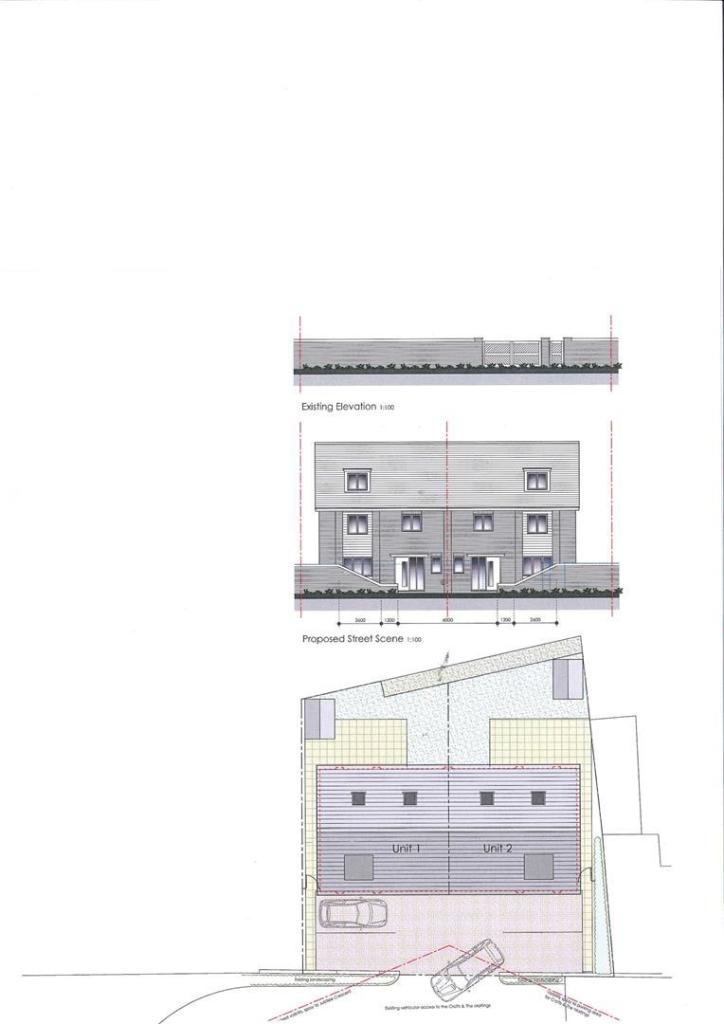
Hamilton Smith are pleased to offer this building plot which has planning permission granted for a four bedroom semi detached town house with parking. For further planning information please see Mid Suffolk District Councils Planning Department quoting Reference 1850/17. Please note that as the p...
Property Oracle says ..
This listing is for a building plot in Needham Market, Suffolk, with planning permission already granted for a four-bedroom semi-detached house including parking. The location in Needham Market offers convenient access to the train station, connecting commuters to Ipswich and other areas. Nearby schools (such as Bosmere Community Primary School) cater to families. The convenience of the train station and the proximity to local amenities improve the desirability of the location.
The absence of a built property renders any appraisal of current condition irrelevant. The building plans illustrate a modern and functional home design. The plot size, while seemingly reasonable to accommodate the planned construction, requires precise figures to fully assess its value.
The price of £100,000 appears competitive when compared to other land listings in the region. However, potential buyers must independently confirm the plot size is as advertised and account for construction costs, legal fees, and other associated expenses involved in the building project. This will enable a complete cost-benefit analysis. A detailed breakdown of the build cost and the overall final cost of the property, including land and construction, is necessary for a comprehensive financial assessment. Comparing this cost to similar completed properties in the area would provide a more robust price analysis. Due to the lack of information about the exact plot size and the house’s final size, the exact value and price competitiveness are hard to assess with certainty.
Therefore, we give this property 5 / 10. *Disclaimer: This is our option and does constitute a recommendation or financial advice. Do your own research. *
- Price
- 7
- Condition
- 1
- Location
- 7
- Land
- 6
- Bedrooms
- 0
- Bathrooms
- 0
The heatmap indicates the level of crime in the area. The color of the heatmap indicates the crime severity and recency.
Metrics Year-on-Year
- Average area value
- 392,083.00 £Increased by 15.46 %
- Average area rental value
- 1,056.00 £/moDecreased by 19.94 %
- Est rental Yield
- 3.23 %Decreased by 30.69 %
- Crime Rate
- 45.00 %Unchanged by 0.00 %
Agent Activity
Hamilton Smith marked this listing as sold.
Hamilton Smith created the listing.
Nearby Schools
| Name | Type | Ofsted | Distance |
|---|---|---|---|
| Bosmere Community Primary School | Academy Converter | 0.87 KM | |
| Robins Children'S Centre | Children's Centre | 0.95 KM | |
| Creeting St Mary Church Of England Voluntary Aided Primary School | Voluntary Aided School | Good | 2.13 KM |
| Freeman Community Primary School | Academy Converter | 5.92 KM | |
| Stowupland High School | Academy Converter | Requires improvement | 6.02 KM |
Images
Nearby Streets
| Name | Average Price | Average Sqft | Distance |
|---|---|---|---|
| Uvedale Gardens | £ 286,250 | 0 | 0.00 KM |
| Bridge Street | £ 300,000 | 0 | 0.00 KM |
| The Drift | £ 362,500 | 0 | 0.00 KM |
| Horsepond Place | £ 0 | 0 | 0.00 KM |
| Chalk Lane | £ 0 | 0 | 0.00 KM |
Nearby Transport
| Name | NLC | TLC | Distance |
|---|---|---|---|
| Needham Market | 7354 | NMT | 0.09 KM |
| Stowmarket | 7355 | SMK | 7.31 KM |
Nearby Listings
| Address | Price | Type | Score | Distance |
|---|---|---|---|---|
| Station Yard, Needham Market, Ipswich | £ 100,000 | BUY | 5 / 10 | 0.00 KM |
| Station Yard, Needham Market, Ipswich | £ 100,000 | BUY | Unknown | 0.02 KM |
| Coddenham Road, Needham Market, Ipswich | £ 135,000 | BUY | 7 / 10 | 0.07 KM |
| Coddenham Road, Needham Market, Ipswich | £ 180,000 | BUY | 6 / 10 | 0.07 KM |
| High Street, Needham Market, Ipswich | £ 180,000 | BUY | 6 / 10 | 0.13 KM |
Nearby Properties
| Address | Price | Distance |
|---|---|---|
| 71 Jubilee Crescent | £ 140,000 | 0.04 KM |
| 55 Jubilee Crescent | £ 135,000 | 0.04 KM |
| 5 Jubilee Crescent | £ 238,000 | 0.04 KM |
| 103 Jubilee Crescent | £ 159,995 | 0.04 KM |
| 77 Jubilee Crescent | £ 132,500 | 0.04 KM |