The Goat Barn, Crowden Hill Farm, Ulgham, Morpeth, Northumberland
By Finest Properties
£ 575,000
Reviews
3 out of 5 stars
Finest Properties says ..
A stunning barn conversion perfectly situated for a rural retreat or permanent family home
Property Oracle says ..
The Goat Barn is a charming detached property situated in the tranquil village of Ulgham, Northumberland. The property benefits from a convenient location with good access to local schools and transport links. The nearby train stations at Widdrington, Pegswood, and Morpeth provide convenient access to other areas. Several well-regarded primary schools are within a reasonable distance, making it an attractive option for families.
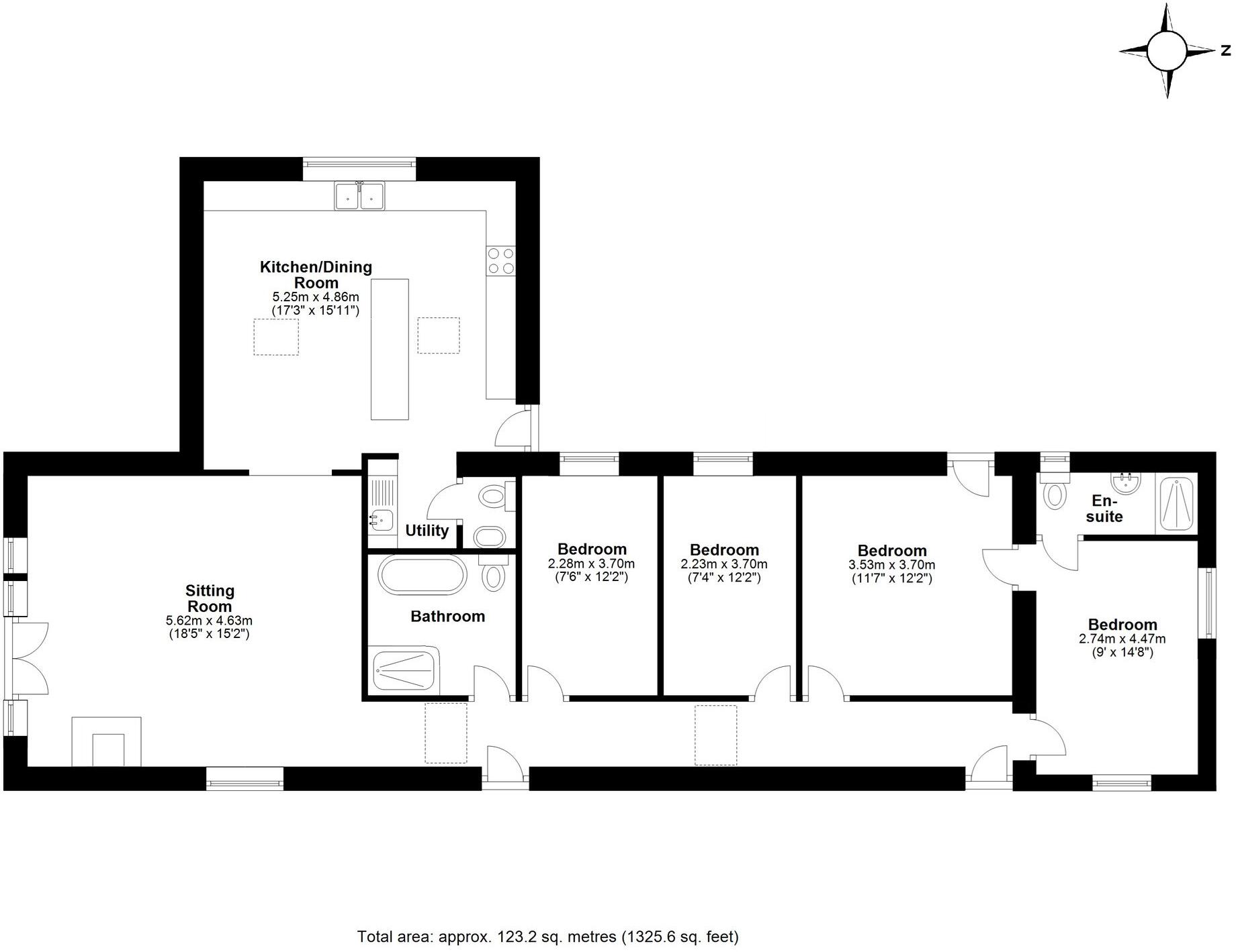
The property itself is presented in excellent condition. The conversion of the barn has been carried out to a high standard. The interior is modern and well-maintained, with a stylish kitchen and bathrooms. The exposed beams and stonework add character and charm to the property.
The property also benefits from a generous plot size. The land includes a sizeable garden area, perfect for outdoor living and entertaining. The images also show additional outbuildings and land, which adds to the overall appeal of the property.
Considering the property’s excellent condition, desirable location, and ample land, the list price of £575,000 appears to be in line with the average property price in the area. While slightly above the average price per square foot, this is likely justified by the property’s unique features and the overall quality of the conversion. The nearby properties for sale also support this assessment. The nearby sales of comparable properties show that this property is competitively priced.
Therefore, we give this property 7 / 10. *Disclaimer: This is our option and does constitute a recommendation or financial advice. Do your own research. *
- Price
- 7
- Condition
- 9
- Location
- 7
- Land
- 8
- Bedrooms
- 4
- Bathrooms
- 2
- Sqft (est)
- 1,050.80
- Lot (est)
- 1,325.60
The heatmap indicates the level of crime in the area. The color of the heatmap indicates the crime severity and recency.
Metrics Year-on-Year
- Average area value
- 625,000.00 £Increased by 9.15 %
- Est sale value
- 695,629.60 £Increased by 24.67 %
- Average area rental value
- 1,525.00 £/moIncreased by 1.26 %
- Est letting value
- 1,050.80 £/moUnchanged by 0.00 %
- Est rental Yield
- 2.93 %Decreased by 7.28 %
- Crime Rate
- 0.00 %
Agent Activity
Finest Properties created the listing.
Nearby Schools
| Name | Type | Ofsted | Distance |
|---|---|---|---|
| Grange View Church Of England Voluntary Controlled First School | Voluntary Controlled School | Good | 2.67 KM |
| Pegswood Primary School | Community School | Good | 4.16 KM |
| Linton Primary School | Community School | Good | 4.16 KM |
| Bothal Primary School | Foundation School | Good | 5.65 KM |
| Buzz Learning Independent Specialist School | Other Independent Special School | Good | 5.77 KM |
Images
Nearby Streets
| Name | Average Price | Average Sqft | Distance |
|---|---|---|---|
| Old Moor Shaft | £ 0 | 0 | 0.00 KM |
| Manor Court | £ 431,650 | 0 | 0.00 KM |
| Woodlands | £ 0 | 0 | 0.00 KM |
| The Croft | £ 497,500 | 0 | 0.00 KM |
| Station Cottages | £ 0 | 0 | 0.00 KM |
Nearby Transport
| Name | NLC | TLC | Distance |
|---|---|---|---|
| Widdrington | 7695 | WDD | 3.08 KM |
| Pegswood | 7685 | PEG | 4.61 KM |
| Morpeth | 7680 | MPT | 8.70 KM |
Nearby Listings
| Address | Price | Type | Score | Distance |
|---|---|---|---|---|
| The Goat Barn, Crowden Hill Farm, Ulgham, Morpeth, Northumberland | £ 575,000 | BUY | 7 / 10 | 0.00 KM |
| The Farmhouse, Crowden Hill Farm, Ulgham, Morpeth, Northumberland | £ 750,000 | BUY | 7 / 10 | 0.05 KM |
| Southcroft Farm, Ulgham, NE61 | £ 630,000 | BUY | 6 / 10 | 0.05 KM |
| Southcroft Farm, Ulgham, NE61 | £ 650,000 | BUY | 7 / 10 | 0.05 KM |
| Ulgham Lane, Longhirst, Morpeth, Northumberland, NE61 | £ 695,000 | BUY | 8 / 10 | 0.99 KM |
Nearby Properties
| Address | Price | Distance |
|---|---|---|
| 8 Manor Court | £ 200,000 | 1.40 KM |
| 6 Manor Court | £ 240,000 | 1.40 KM |
| 4 Manor Court | £ 102,000 | 1.40 KM |
| 9 Manor Court | £ 250,000 | 1.40 KM |
| 6 Manor Farm | £ 610,000 | 1.43 KM |