Wolfe Crescent, Canada Water, SE16
By Alex & Matteo
£ 950,000
Reviews
3 out of 5 stars
Alex & Matteo says ..
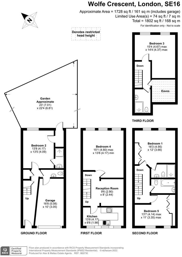
Guide Price £950,000 to £1,000,000. A generous four bedroom house in a quiet cul-de-sac, moments from Canada Water Station and the greenery of Stave Hill ecological park. On the ground floor are a double bedroom ensuite with plenty of storage space, a spacious garden ideal for al fresco dining an...
Property Oracle says ..
The property is located in a desirable area of London, close to Canada Water station which provides easy access to the Jubilee and Overground lines. The property itself appears to be in good condition, although some minor cosmetic updates may enhance its appeal. The presence of a small garden is a positive feature, although its size is limited. Considering the property’s location, condition, and size, the list price of £950,000 appears slightly high compared to the average price per square foot in the area. However, the proximity to transport links and the overall desirability of the location could justify the higher price.
Therefore, we give this property 6 / 10. *Disclaimer: This is our option and does constitute a recommendation or financial advice. Do your own research. *
- Price
- 6
- Condition
- 7
- Location
- 9
- Land
- 4
- Bedrooms
- 4
- Bathrooms
- 4
- Sqft (est)
- 1,802.00
The heatmap indicates the level of crime in the area. The color of the heatmap indicates the crime severity and recency.
Metrics Year-on-Year
- Average area value
- 622,222.00 £Increased by 5.44 %
- Est sale value
- 1,787,584.00 £Increased by 48.95 %
- Average area rental value
- 2,241.00 £/moIncreased by 5.31 %
- Est letting value
- 5,406.00 £/moIncreased by 50.00 %
- Est rental Yield
- 4.32 %Decreased by 0.23 %
- Crime Rate
- 5.00 %Unchanged by 0.00 %
Agent Activity
Alex & Matteo created the listing.
Nearby Schools
| Name | Type | Ofsted | Distance |
|---|---|---|---|
| Alfred Salter Primary School | Community School | Good | 0.17 KM |
| St John'S Roman Catholic Primary School | Voluntary Aided School | Good | 0.39 KM |
| Bacon'S College | Academy Sponsor Led | 0.39 KM | |
| Albion Primary School | Community School | Outstanding | 0.73 KM |
| Peter Hills With St Mary'S And St Paul'S Cofe Primary School | Voluntary Aided School | Good | 0.73 KM |
Images
Nearby Streets
| Name | Average Price | Average Sqft | Distance |
|---|---|---|---|
| Canada Street | £ 0 | 0 | 0.00 KM |
| Quebec Way | £ 575,000 | 0 | 0.00 KM |
| Russia Walk | £ 0 | 0 | 0.00 KM |
| Smith Close | £ 0 | 0 | 0.00 KM |
| Deal Porter Square | £ 493,000 | 0 | 0.00 KM |
Nearby Transport
| Name | NLC | TLC | Distance |
|---|---|---|---|
| Canada Water | 1659 | ZCW | 0.57 KM |
| New Cross | 5150 | NWX | 0.57 KM |
| Rotherhithe | 1039 | ROE | 0.78 KM |
| Surrey Quays | 1083 | SQE | 0.82 KM |
| Wapping | 1085 | WPE | 1.29 KM |
Nearby Listings
| Address | Price | Type | Score | Distance |
|---|---|---|---|---|
| Wolfe Crescent, Canada Water, SE16 | £ 950,000 | BUY | 6 / 10 | 0.00 KM |
| Middleton Drive, London, SE16 | £ 375,000 | BUY | 5 / 10 | 0.03 KM |
| Gorham House, Canada Water, SE16 | £ 750,000 | BUY | Unknown | 0.03 KM |
| Gorham House, Canada Water, SE16 | £ 750,000 | BUY | Unknown | 0.03 KM |
| Wolfe Crescent, Canada Water | £ 375,000 | BUY | 6 / 10 | 0.06 KM |
Nearby Properties
| Address | Price | Distance |
|---|---|---|
| 26 Middleton Drive | £ 135,000 | 0.06 KM |
| 20 Middleton Drive | £ 310,000 | 0.06 KM |
| 28 Middleton Drive | £ 120,000 | 0.06 KM |
| 10 Middleton Drive | £ 421,000 | 0.06 KM |
| 24 Middleton Drive | £ 49,000 | 0.06 KM |