St Stephen`s Court, Canterbury
By Page & Co Property Services Ltd
£ 175,000
Reviews
3 out of 5 stars
Page & Co Property Services Ltd says ..
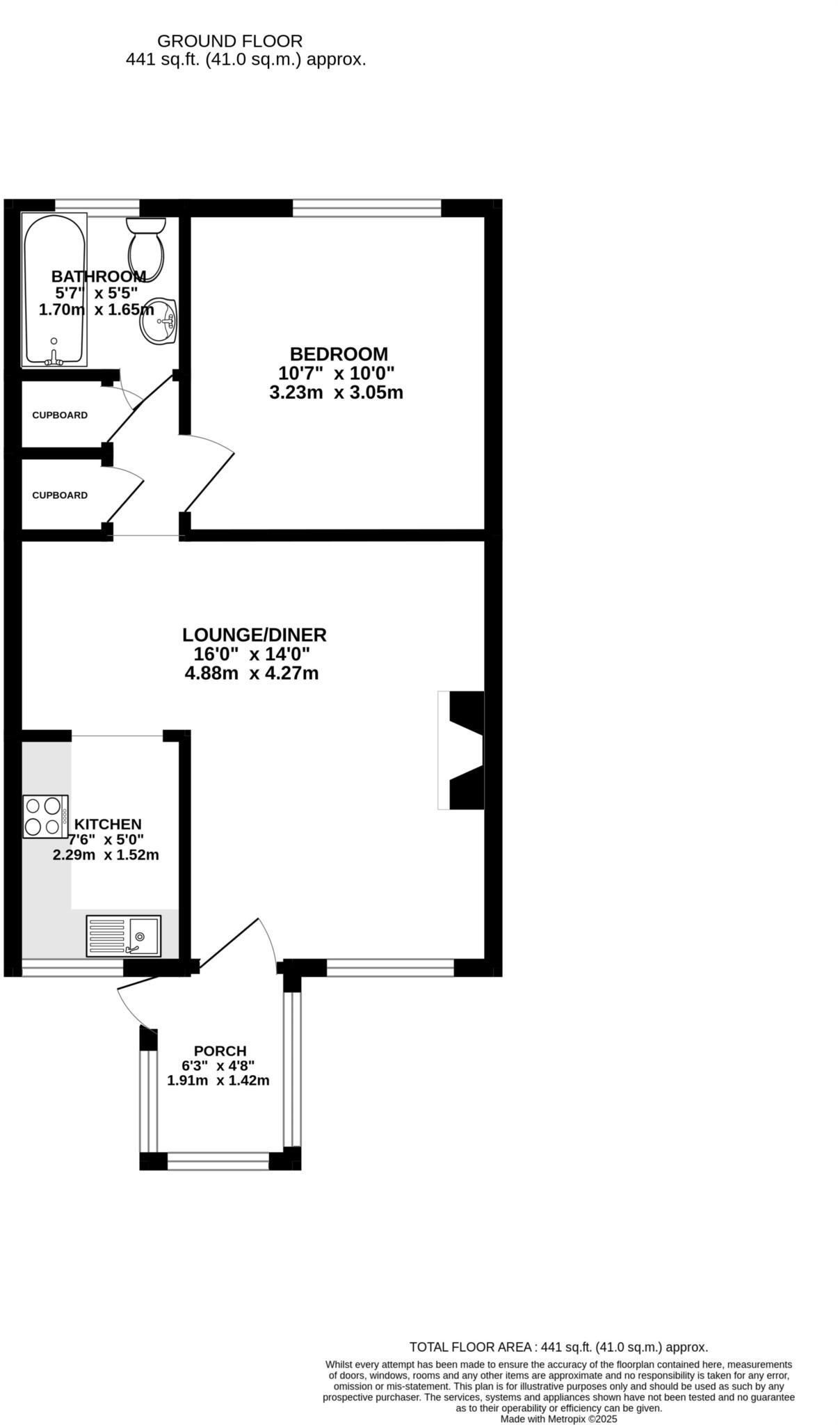
Fantastic ground floor apartment with its own entrance, situated close to the City Cente, an 8-minute walk to the West Station. Share of freehold, no ground rent and 983 years` left on lease. Communal gardens, great little first home or investment.
Property Oracle says ..
This property is a one bedroom flat located in St Stephen’s Court, Canterbury, Kent. The flat is in good condition and has been recently modernised, with a modern kitchen and bathroom. There is a small garden to the rear of the property. The location is convenient, with good access to local amenities and transport links. Canterbury West train station is approximately 0.64 km away, providing easy access to London and other major cities. There are also several schools nearby, including St Stephen’s Junior School, which is rated as ‘Good’ by Ofsted. The property is listed at £175,000, which is significantly below the average price for properties in the area (£366,034). Considering its condition, location and size, the asking price appears to represent good value for money.
Therefore, we give this property 7 / 10. *Disclaimer: This is our option and does constitute a recommendation or financial advice. Do your own research. *
- Price
- 9
- Condition
- 8
- Location
- 9
- Land
- 4
- Bedrooms
- 1
- Bathrooms
- 1
- Sqft (est)
- 405.81
- Lot (est)
- 441.00
The heatmap indicates the level of crime in the area. The color of the heatmap indicates the crime severity and recency.
Metrics Year-on-Year
- Average area value
- 253,083.00 £Decreased by 33.52 %
- Est sale value
- 240,239.52 £Increased by 97.33 %
- Average area rental value
- 1,048.00 £/moIncreased by 8.04 %
- Est letting value
- 811.62 £/mo
- Est rental Yield
- 4.97 %Increased by 62.42 %
- Crime Rate
- 1.00 %Unchanged by 0.00 %
Agent Activity
Page & Co Property Services Ltd created the listing.
Nearby Schools
| Name | Type | Ofsted | Distance |
|---|---|---|---|
| St Stephen'S Infant School | Academy Converter | 0.39 KM | |
| St Stephen'S Junior School | Academy Converter | Good | 0.47 KM |
| Riverside Children'S Centre (Canterbury) | Children's Centre | 0.55 KM | |
| St Johns Church Of England Primary School | Voluntary Controlled School | Good | 0.60 KM |
| Bemix | Special Post 16 Institution | Requires improvement | 0.81 KM |
Images
Nearby Streets
| Name | Average Price | Average Sqft | Distance |
|---|---|---|---|
| Malthouse Road | £ 0 | 0 | 0.00 KM |
| The Spires | £ 0 | 0 | 0.00 KM |
| Ayrshire Court | £ 0 | 0 | 0.00 KM |
| Barton Mill Court | £ 0 | 0 | 0.00 KM |
| The Causeway | £ 97,375 | 0 | 0.00 KM |
Nearby Transport
| Name | NLC | TLC | Distance |
|---|---|---|---|
| Canterbury West | 5007 | CBW | 0.64 KM |
| Canterbury East | 5164 | CBE | 1.59 KM |
| Sturry | 5029 | STU | 4.94 KM |
| Bekesbourne | 5198 | BKS | 6.99 KM |
| Chartham | 5008 | CRT | 7.62 KM |
Nearby Listings
| Address | Price | Type | Score | Distance |
|---|---|---|---|---|
| St Stephen`s Court, Canterbury | £ 175,000 | BUY | 7 / 10 | 0.00 KM |
| St Stephens Court, Canterbury | £ 400,000 | BUY | 7 / 10 | 0.01 KM |
| St. Stephens Court, Canterbury, Kent, CT2 | £ 325,000 | BUY | 7 / 10 | 0.03 KM |
| St Stephen`s Road, Canterbury | £ 450,000 | BUY | 6 / 10 | 0.14 KM |
| St Stephens Road, Canterbury, Kent | £ 2,650,000 | BUY | 8 / 10 | 0.16 KM |
Nearby Properties
| Address | Price | Distance |
|---|---|---|
| 99 St Stephens Road | £ 775,000 | 0.08 KM |
| 12 St Stephens Court | £ 215,000 | 0.09 KM |
| 32 St Stephens Court | £ 185,000 | 0.09 KM |
| 34 St Stephens Court | £ 173,000 | 0.09 KM |
| 39 St Stephens Court | £ 182,500 | 0.09 KM |