Chiswick Village, London, W4
By Stirling Ackroyd
£ 350,000
Reviews
3 out of 5 stars
Stirling Ackroyd says ..
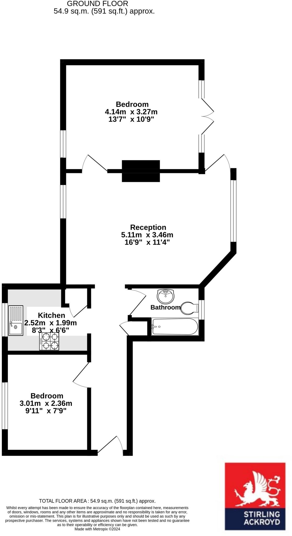
An unmodernised two-bedroom apartment for sale positioned on the ground floor of this popular private purpose-built development known as Chiswick Village. The accommodation comprises a spacious reception room with an area for dining, two bedrooms, fitted kitchen and family bathroom. ...
Property Oracle says ..
Chiswick Village is a desirable location in London, known for its proximity to the River Thames and excellent transport links. The property is an apartment within a well-maintained building, featuring a communal garden. The apartment itself is of average size for the area. While the provided images show the exterior to be in good condition, there is no information on the interior condition. The list price of £350,000 is significantly lower than the average price for the area (£874,959), and also lower than many nearby properties. However, the lack of information on the interior condition and the smaller size of the apartment compared to the area average could justify this lower price. More information is needed to provide a complete analysis of the property’s value.
Therefore, we give this property 7 / 10. *Disclaimer: This is our option and does constitute a recommendation or financial advice. Do your own research. *
- Price
- 7
- Condition
- 8
- Location
- 9
- Land
- 7
- Bedrooms
- 2
- Bathrooms
- 1
- Sqft (est)
- 487.71
- Lot (est)
- 590.94
The heatmap indicates the level of crime in the area. The color of the heatmap indicates the crime severity and recency.
Metrics Year-on-Year
- Average area value
- 865,385.00 £Decreased by 28.10 %
- Est sale value
- 413,578.08 £Decreased by 1.51 %
- Average area rental value
- 2,682.00 £/moIncreased by 8.23 %
- Est letting value
- 975.42 £/moIncreased by 100.00 %
- Est rental Yield
- 3.72 %Increased by 50.61 %
- Crime Rate
- 2.00 %Unchanged by 0.00 %
Agent Activity
Stirling Ackroyd created the listing.
Nearby Schools
| Name | Type | Ofsted | Distance |
|---|---|---|---|
| Strand-On-The-Green Junior School | Community School | Good | 0.26 KM |
| Strand-On-The-Green Infant And Nursery School | Community School | Outstanding | 0.26 KM |
| The Falcons Pre Preparatory School For Boys | Other Independent School | 0.55 KM | |
| Grove Park Primary School | Community School | Outstanding | 0.81 KM |
| The Eden Sda School | Other Independent School | Good | 0.98 KM |
Images
Nearby Streets
| Name | Average Price | Average Sqft | Distance |
|---|---|---|---|
| Brooks Lane | £ 0 | 0 | 0.00 KM |
| Sutton Lane South | £ 0 | 0 | 0.00 KM |
| Kew Bridge Court | £ 0 | 0 | 0.00 KM |
| M4 | £ 0 | 0 | 0.00 KM |
| Nightingale Close | £ 865,000 | 0 | 0.00 KM |
Nearby Transport
| Name | NLC | TLC | Distance |
|---|---|---|---|
| Gunnersbury | 5588 | GUN | 0.59 KM |
| Kew Bridge | 5593 | KWB | 1.03 KM |
| Chiswick | 5583 | CHK | 1.32 KM |
| Kew Gardens | 5594 | KWG | 1.36 KM |
| South Acton | 1452 | SAT | 1.65 KM |
Nearby Listings
| Address | Price | Type | Score | Distance |
|---|---|---|---|---|
| Chiswick Village, London, W4 | £ 350,000 | BUY | 7 / 10 | 0.00 KM |
| Chiswick Village, LONDON, W4 | £ 475,000 | BUY | Unknown | 0.00 KM |
| Chiswick Village, Chiswick | £ 550,000 | BUY | Unknown | 0.04 KM |
| Chiswick Village, Chiswick | £ 550,000 | BUY | 7 / 10 | 0.04 KM |
| Chiswick Village, Chiswick | £ 415,000 | BUY | 6 / 10 | 0.04 KM |
Nearby Properties
| Address | Price | Distance |
|---|---|---|
| 132 Chiswick Village | £ 235,000 | 0.04 KM |
| 141 Chiswick Village | £ 460,000 | 0.04 KM |
| 127 Chiswick Village | £ 365,000 | 0.04 KM |
| 136 Chiswick Village | £ 370,000 | 0.04 KM |
| 119 Chiswick Village | £ 217,000 | 0.04 KM |