Queens Crescent, Chapelhall, ML6 8SS
By Morison & Smith
£ 73,500
Reviews
3 out of 5 stars
Morison & Smith says ..
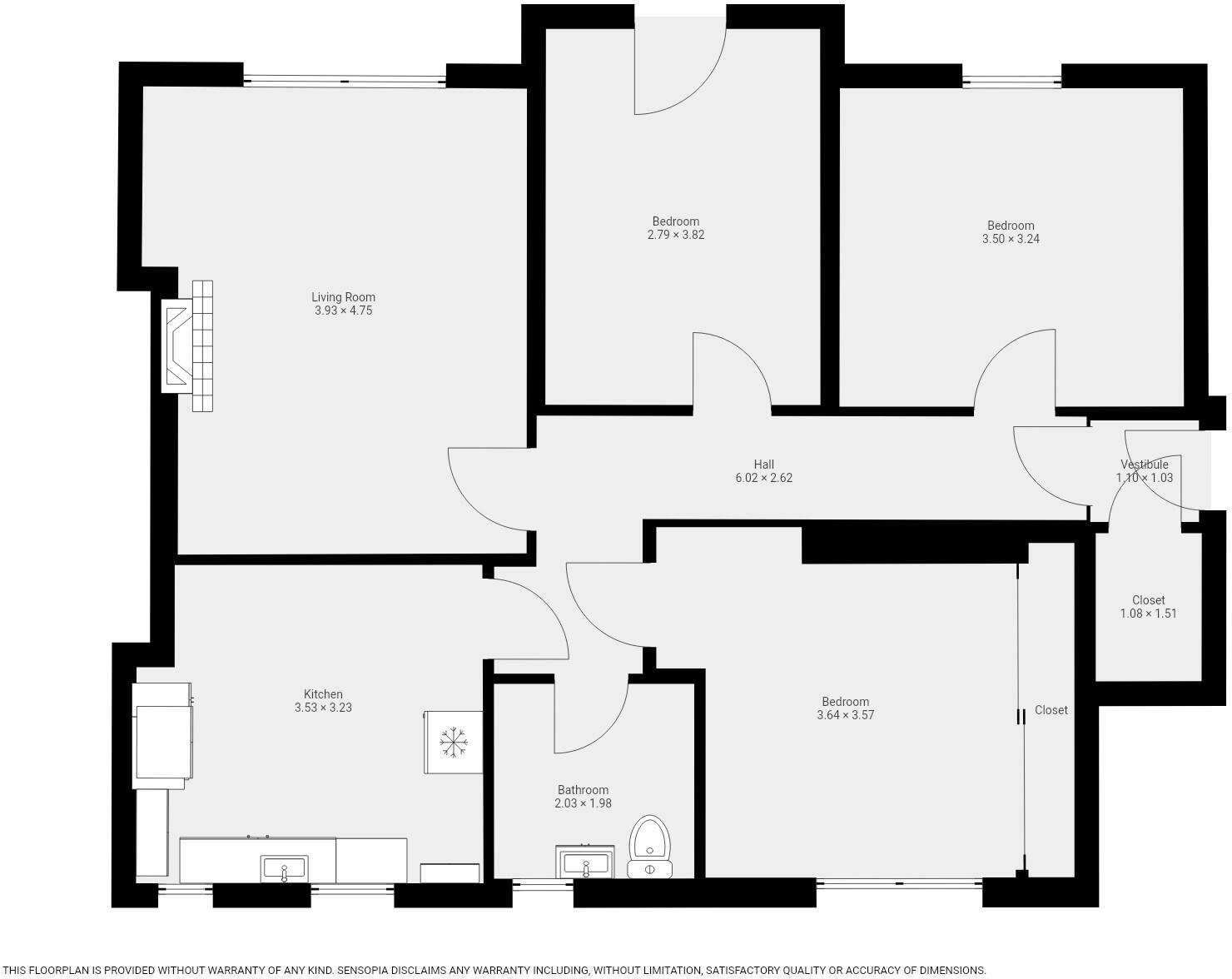
Three bedroom ground floor flat located within the village of Chapelhall comprising of; entrance vestibule, hallway, three double bedrooms, living room, kitchen, shower room and front & rear gardens. Further benefits include; gas central heating and double glazing throughout. EPC - C
Property Oracle says ..
Therefore, we give this property 6 / 10. *Disclaimer: This is our option and does constitute a recommendation or financial advice. Do your own research. *
- Price
- 9
- Condition
- 5
- Location
- 6
- Land
- 7
- Bedrooms
- 3
- Bathrooms
- 1
- Sqft (est)
- 943.00
The heatmap indicates the level of crime in the area. The color of the heatmap indicates the crime severity and recency.
Metrics Year-on-Year
- Average area value
- 925,000.00 £Increased by 139.51 %
- Est sale value
- 413,034.00 £Increased by 50.52 %
- Average area rental value
- 825.00 £/moDecreased by 10.71 %
- Est letting value
- 0.00 £/mo
- Est rental Yield
- 1.07 %Decreased by 62.72 %
- Crime Rate
- 0.00 %
from 386,204.00 £
from 274,413.00 £
from 924.00 £/mo
from 0.00 £/mo
from 2.87 %
from 0.00 %
Agent Activity
Morison & Smith created the listing.
Images
Nearby Streets
| Name | Average Price | Average Sqft | Distance |
|---|---|---|---|
| Queen's Crescent | £ 78,000 | 0 | 0.00 KM |
| George Street | £ 0 | 0 | 0.00 KM |
| Aitkenhead Road | £ 0 | 0 | 0.00 KM |
| Melrose Avenue | £ 0 | 0 | 0.00 KM |
| Cawdor Crescent | £ 67,500 | 0 | 0.00 KM |
Nearby Transport
| Name | NLC | TLC | Distance |
|---|---|---|---|
| Drumgelloch | 9757 | DRU | 2.39 KM |
| Airdrie | 9759 | ADR | 4.16 KM |
| Carfin | 9877 | CRF | 4.33 KM |
| Holytown | 9738 | HLY | 4.52 KM |
| Cleland | 9718 | CEA | 6.34 KM |
Nearby Listings
| Address | Price | Type | Score | Distance |
|---|---|---|---|---|
| Queens Crescent, Chapelhall, ML6 8SS | £ 73,500 | BUY | 6 / 10 | 0.00 KM |
| Queens Crescent, Chapelhall | £ 69,995 | BUY | 6 / 10 | 0.02 KM |
| Main Street, Chapelhall, Airdrie | £ 120,000 | BUY | 6 / 10 | 0.16 KM |
| Porters Lane, Chapelhall, Airdrie, ML6 | £ 124,999 | BUY | 6 / 10 | 0.26 KM |
| Main Street, Airdrie, ML6 | £ 225,000 | BUY | 7 / 10 | 0.34 KM |