Fine & Country says ..
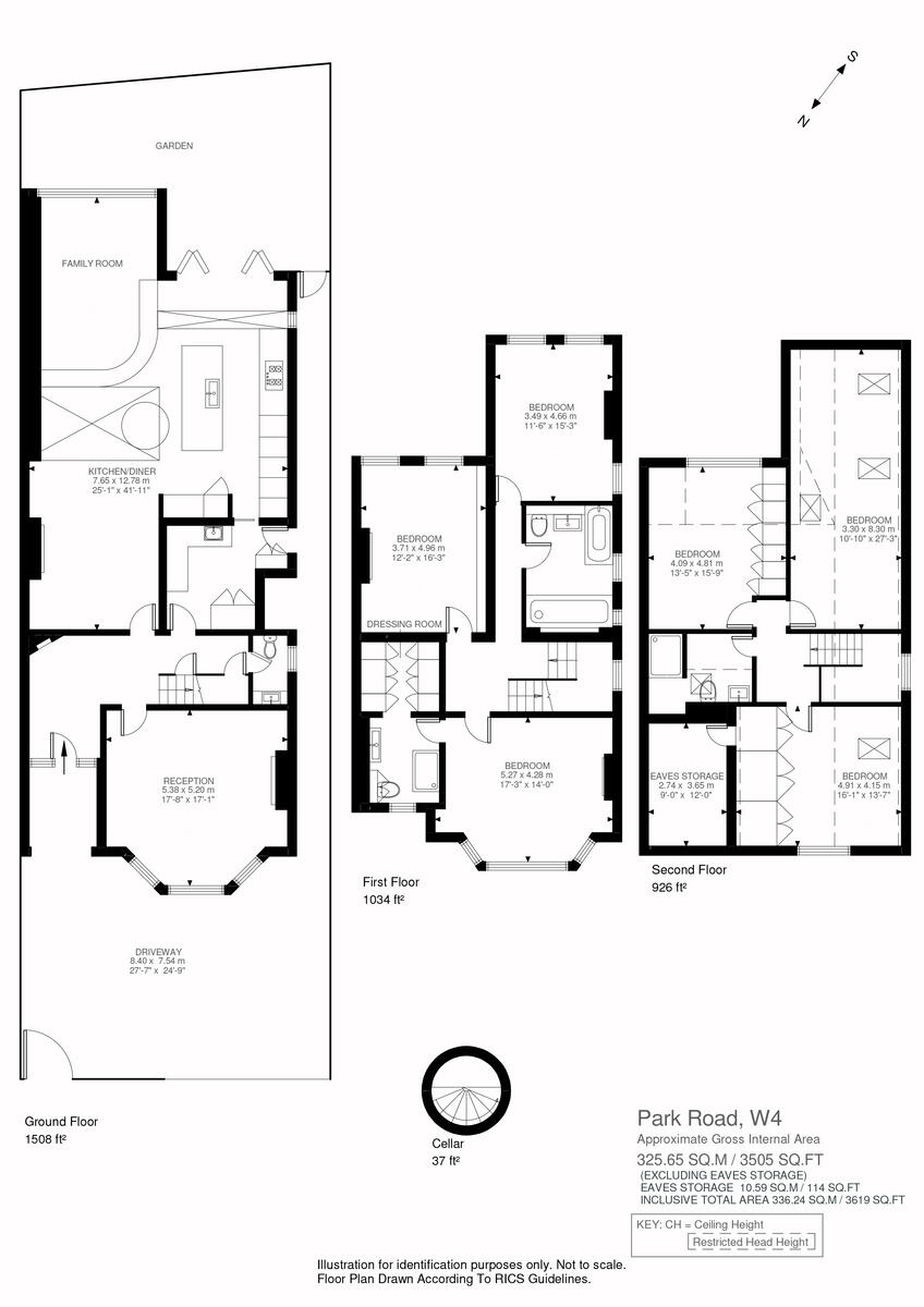
A beautiful six-bedroom, three-bathroom family home on Park Road, with period features throughout. Boasting a 140ft westerly-facing garden and off-street parking for two cars, this stylish home offers timeless charm and exceptional space in Chiswick
Property Oracle says ..
This property is a 6 bedroom, 3 bathroom semi-detached house located on Park Road in Chiswick Riverside, London. The location is excellent, with easy access to public transportation, including Chiswick train station (0.79km) and Gunnersbury underground station (1.49km). There are also several highly-rated schools within a short distance, such as Belmont Primary School (0.79km) which has an outstanding Ofsted rating. The property itself is in excellent condition, having undergone a significant extension and modernisation. It boasts a large, well-maintained garden, adding considerable value. While the list price of £3,500,000 is high, it is justifiable considering the property’s size (1,996 sq ft), condition, location, and the relatively high average price per sq ft in the area (£842). Comparable properties in the area are significantly more expensive, suggesting this property is reasonably priced despite the premium.
Therefore, we give this property 9 / 10. *Disclaimer: This is our option and does constitute a recommendation or financial advice. Do your own research. *
- Price
- 8
- Condition
- 10
- Location
- 10
- Land
- 9
- Bedrooms
- 6
- Bathrooms
- 3
- Sqft (est)
- 1,996.03
- Lot (est)
- 1,508.00
The heatmap indicates the level of crime in the area. The color of the heatmap indicates the crime severity and recency.
Metrics Year-on-Year
- Average area value
- 865,385.00 £Decreased by 28.10 %
- Est sale value
- 1,692,633.44 £Decreased by 1.51 %
- Average area rental value
- 2,682.00 £/moIncreased by 8.23 %
- Est letting value
- 3,992.06 £/moIncreased by 100.00 %
- Est rental Yield
- 3.72 %Increased by 50.61 %
- Crime Rate
- 0.00 %
Agent Activity
Fine & Country created the listing.
Nearby Schools
| Name | Type | Ofsted | Distance |
|---|---|---|---|
| Chiswick School | Academy Converter | Good | 0.60 KM |
| St Mary'S Catholic Primary School ,Chiswick | Voluntary Aided School | Good | 0.63 KM |
| Chiswick Children'S Centre | Children's Centre Linked Site | 0.69 KM | |
| Heathfield House School | Other Independent School | 0.76 KM | |
| Belmont Primary School | Community School | Outstanding | 0.79 KM |
Images
Nearby Streets
| Name | Average Price | Average Sqft | Distance |
|---|---|---|---|
| Garth Court | £ 410,000 | 0 | 0.00 KM |
| Barrowgate Road | £ 2,106,667 | 0 | 0.00 KM |
| The Axis | £ 0 | 0 | 0.00 KM |
| Linden Passage | £ 1,063,317 | 0 | 0.00 KM |
| Clifton Gardens | £ 0 | 0 | 0.00 KM |
Nearby Transport
| Name | NLC | TLC | Distance |
|---|---|---|---|
| Chiswick | 5583 | CHK | 0.79 KM |
| Gunnersbury | 5588 | GUN | 1.49 KM |
| South Acton | 1452 | SAT | 1.69 KM |
| Barnes Bridge | 5580 | BNI | 1.96 KM |
| Mortlake | 5600 | MTL | 2.08 KM |
Nearby Listings
| Address | Price | Type | Score | Distance |
|---|---|---|---|---|
| Park Road, London, W4 | £ 3,500,000 | BUY | 9 / 10 | 0.00 KM |
| Park Road, London, W4 | £ 3,600,000 | BUY | Unknown | 0.03 KM |
| Park Road, London, Chiswick, W4 | £ 525,000 | BUY | 6 / 10 | 0.04 KM |
| Park Road, Chiswick, London, W4 | £ 575,000 | BUY | 7 / 10 | 0.04 KM |
| Park Road, Chiswick | £ 1,900,000 | BUY | 7 / 10 | 0.12 KM |
Nearby Properties
| Address | Price | Distance |
|---|---|---|
| 34 Park Road | £ 1,500,000 | 0.04 KM |
| 22 Park Road | £ 600,000 | 0.04 KM |
| 52 Park Road | £ 1,800,000 | 0.04 KM |
| 60 Park Road | £ 1,350,000 | 0.04 KM |
| 50 Park Road | £ 1,303,000 | 0.04 KM |