Ellisons says ..
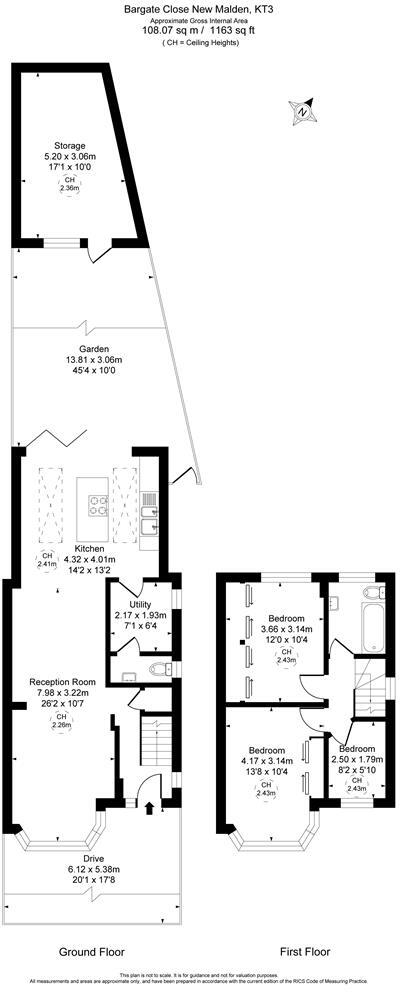
This spacious and well presented THREE BEDROOM, rear extended 1930's "Mock Tudor" semi-detached house has off street parking, 45'4 ft garden with home office and modern kitchen with separate utility room and downstairs w.c. Located in popular, tree-lined residential area within easy access to Mot...
Property Oracle says ..
The property is a semi-detached house located in New Malden, Greater London. It features a modern kitchen and bathroom, with the rest of the house in reasonable condition. The property includes a garden and shed. Nearby transportation includes Worcester Park and Motspur Park stations, and several schools are in close proximity.
Therefore, we give this property 7 / 10. *Disclaimer: This is our option and does constitute a recommendation or financial advice. Do your own research. *
- Price
- 6
- Condition
- 7
- Location
- 8
- Land
- 7
- Bedrooms
- 3
- Bathrooms
- 2
- Sqft (est)
- 1,802.01
The heatmap indicates the level of crime in the area. The color of the heatmap indicates the crime severity and recency.
Metrics Year-on-Year
- Average area value
- 425,000.00 £Decreased by 8.87 %
- Est sale value
- 654,129.63 £Decreased by 7.16 %
- Average area rental value
- 2,435.00 £/moIncreased by 27.89 %
- Est letting value
- 3,604.02 £/moIncreased by 100.00 %
- Est rental Yield
- 6.88 %Increased by 40.41 %
- Crime Rate
- 2.00 %Unchanged by 0.00 %
Agent Activity
Ellisons created the listing.
Nearby Schools
| Name | Type | Ofsted | Distance |
|---|---|---|---|
| Coombe Boys' School | Academy Converter | Good | 0.85 KM |
| Green Lane Primary And Nursery School | Academy Converter | 0.89 KM | |
| Blossom House School | Other Independent Special School | Outstanding | 0.91 KM |
| Tennis Avenue School | Other Independent School | 0.99 KM | |
| New Malden Children'S Centre | Children's Centre | 1.30 KM |
Images
Nearby Streets
| Name | Average Price | Average Sqft | Distance |
|---|---|---|---|
| Bargate Close | £ 0 | 0 | 0.00 KM |
| The Grange | £ 775,000 | 0 | 0.00 KM |
| Station Road | £ 762,500 | 0 | 0.00 KM |
| Caldbeck Avenue | £ 335,000 | 0 | 0.00 KM |
| Arthur Road | £ 843,750 | 0 | 0.00 KM |
Nearby Transport
| Name | NLC | TLC | Distance |
|---|---|---|---|
| Worcester Park | 5579 | WCP | 0.81 KM |
| Motspur Park | 5645 | MOT | 0.90 KM |
| Malden Manor | 5599 | MAL | 1.96 KM |
| New Malden | 5567 | NEM | 2.19 KM |
| Raynes Park | 5569 | RAY | 2.77 KM |
Nearby Listings
| Address | Price | Type | Score | Distance |
|---|---|---|---|---|
| Bargate Close, New Malden | £ 700,000 | BUY | 7 / 10 | 0.00 KM |
| Bargate Close, New Malden, KT3 | £ 725,000 | BUY | Unknown | 0.02 KM |
| Bargate Close, New Malden | £ 700,000 | BUY | 7 / 10 | 0.04 KM |
| Bargate Close, New Malden | £ 825,000 | BUY | 7 / 10 | 0.06 KM |
| Bargate Close, New Malden | £ 775,000 | BUY | 7 / 10 | 0.07 KM |
Nearby Properties
| Address | Price | Distance |
|---|---|---|
| 28 Bargate Close | £ 320,000 | 0.04 KM |
| 26 Bargate Close | £ 320,000 | 0.04 KM |
| 10 Bargate Close | £ 400,000 | 0.04 KM |
| 38 Bargate Close | £ 750,000 | 0.04 KM |
| 36 Bargate Close | £ 625,000 | 0.04 KM |