St. Margarets Road, London
SI

St. Margarets Road, London

By Sinton Andrews

£ 675,000

Reviews

2 out of 5 stars

Sinton Andrews says ..

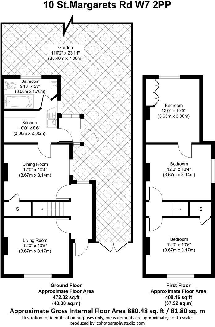
A rare opportunity to acquire this original 3 bedroom, Victorian semi-detached house with a wonderful sized garden and valuable off street parking, offering huge potential for extension and attractively offered chain free.

Property Oracle says ..

This 3-bedroom semi-detached house on St. Margarets Road in Ealing, London, presents a mixed bag of opportunities and challenges. Located within reasonable distance of Hanwell station and well-regarded schools, it benefits from a convenient location. However, the property is in need of significant modernisation. The interior finishes appear dated and worn, particularly in the kitchen and bathroom. The garden, although present, requires considerable attention and currently lacks appeal. The listing price of £675,000 aligns with comparable properties in the area, but buyers should factor in substantial renovation costs. Potential buyers should assess whether the cost of renovating the property outweighs the benefits of the location and the potential for adding value through extension. The property is ideal for someone with experience and budget for renovation projects. Buyers should obtain detailed surveys before proceeding to assess any structural issues and obtain planning permission for any potential extensions.

Therefore, we give this property 5 / 10. *Disclaimer: This is our option and does constitute a recommendation or financial advice. Do your own research. *

Price
7
Condition
4
Location
7
Land
5
Bedrooms
3
Bathrooms
1
Sqft (est)
880.48

The heatmap indicates the level of crime in the area. The color of the heatmap indicates the crime severity and recency.

Metrics Year-on-Year

Average area value
526,250.00 £
Increased by 3.90 %
from 506,498.00 £
Est sale value
703,503.52 £
Increased by 15.30 %
from 610,172.64 £
Average area rental value
1,876.00 £/mo
Increased by 3.25 %
from 1,817.00 £/mo
Est letting value
1,760.96 £/mo
Unchanged by 0.00 %
from 1,760.96 £/mo
Est rental Yield
4.28 %
Decreased by 0.47 %
from 4.30 %
Crime Rate
6.00 %
Unchanged by 0.00 %
from 6.00 %

Agent Activity

  • Sinton Andrews marked this listing as sold.

  • Sinton Andrews created the listing.

Nearby Schools

NameTypeOfstedDistance
St Mark'S Primary SchoolCommunity SchoolGood0.36 KM
Ealing Hospital Children'S CentreChildren's Centre Linked Site0.50 KM
St Ann'S SchoolCommunity Special SchoolOutstanding0.82 KM
St Joseph'S Catholic Primary SchoolVoluntary Aided SchoolGood0.87 KM
Windmill Park Children'S CentreChildren's Centre Linked Site1.22 KM

Images

10 St Margarets Road.jpg 10 St Margarets Recp 2.jpg 10 St Margarets Recp.jpg 10 St Margarets kitch.jpg 10 St Margares Bed 2.jpg 10 St Margarets gard.jpg 10 St Margarets bath.jpg 10 St Margarets Bed 1.jpg 10 St Margarets Bed 3.jpg 10 St Margarets side.jpg 10 St Margarets outbuilding.jpg 10 St Margarets side 2.jpg

Nearby Streets

NameAverage PriceAverage SqftDistance
Oak Cottages £ 000.00 KM
Grand Union Canal towpath £ 875,00000.00 KM
The Heath £ 000.00 KM
Murray Court £ 388,00000.00 KM
Factory Yard £ 000.00 KM

Nearby Transport

NameNLCTLCDistance
Hanwell3191HAN0.94 KM
Drayton Green3099DRG1.94 KM
Castle Bar Park3098CBP2.40 KM
West Ealing3188WEA2.69 KM
Syon Lane5609SYL3.20 KM

Nearby Listings

AddressPriceTypeScoreDistance
Mallard Close, Hanwell £ 675,000BUY7 / 100.05 KM
St Margarets Road, Hanwell, London, W7 2PL £ 650,000BUYUnknown0.11 KM
St Marks Road, Hanwell £ 799,950BUY6 / 100.15 KM
Flat A, 73 Green Lane, Hanwell, London, W7 2PA £ 230,000BUY5 / 100.15 KM
Flat A, 73 Green Lane, Hanwell, London, W7 2PA £ 200,000BUY5 / 100.15 KM

Nearby Properties

AddressPriceDistance
24 St Margarets Road £ 565,0000.03 KM
8 St Margarets Road £ 765,0000.03 KM
30 St Margarets Road £ 625,0000.03 KM
16 St Margarets Road £ 757,5000.03 KM
6a St Margarets Road £ 295,0000.03 KM