Frome Avenue, Oadby, Leicester
By Phillips George Estate Agents
£ 250,000
Reviews
3 out of 5 stars
Phillips George Estate Agents says ..
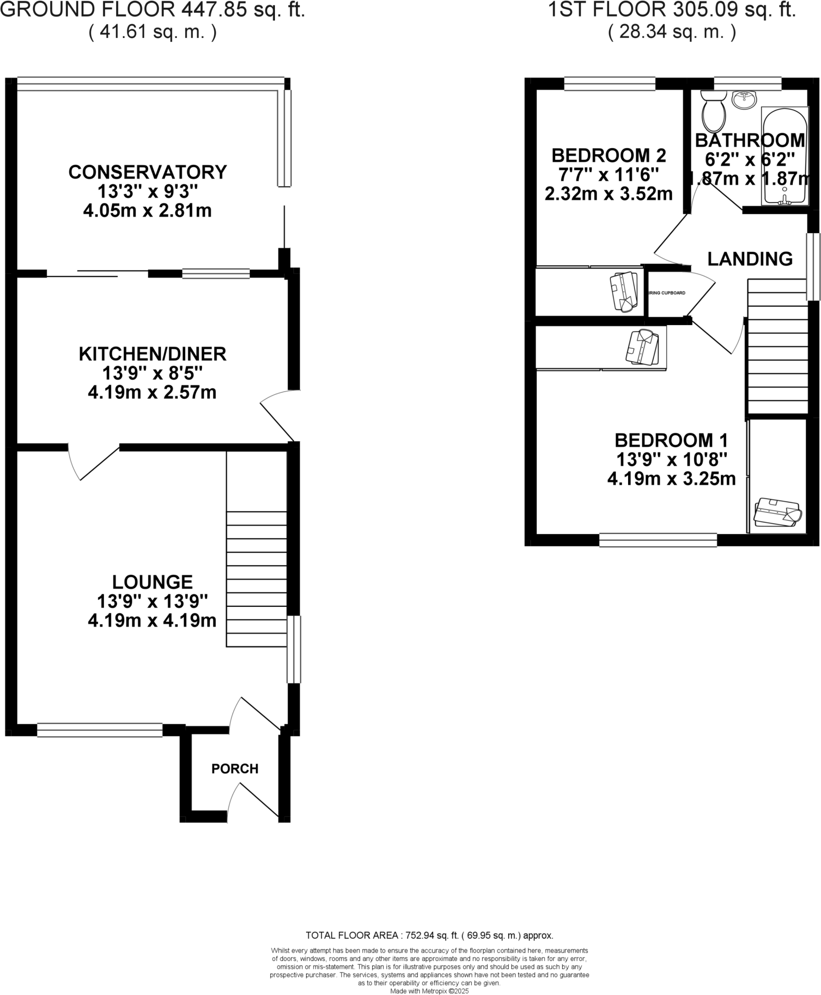
**NO CHAIN** A superb opportunity to acquire a two bedroom semi-detached property situated within a popular residential area on a generous corner plot with lots and lots of scope making this home n ideal first time buy or investment being conveniently placed within walking distance of local ameni...
Property Oracle says ..
Therefore, we give this property 6 / 10. *Disclaimer: This is our option and does constitute a recommendation or financial advice. Do your own research. *
- Price
- 7
- Condition
- 5
- Location
- 7
- Land
- 7
- Bedrooms
- 2
- Bathrooms
- 1
- Sqft (est)
- 709.10
The heatmap indicates the level of crime in the area. The color of the heatmap indicates the crime severity and recency.
Metrics Year-on-Year
- Average area value
- 366,250.00 £Decreased by 10.05 %
- Est sale value
- 431,132.80 £Increased by 87.65 %
- Average area rental value
- 1,450.00 £/moIncreased by 21.04 %
- Est letting value
- 1,418.20 £/mo
- Est rental Yield
- 4.75 %Increased by 34.56 %
- Crime Rate
- 18.00 %Unchanged by 0.00 %
from 407,182.00 £
from 229,748.40 £
from 1,198.00 £/mo
from 0.00 £/mo
from 3.53 %
from 18.00 %
Agent Activity
Phillips George Estate Agents created the listing.
Nearby Schools
| Name | Type | Ofsted | Distance |
|---|---|---|---|
| Manor High School | Academy Converter | Good | 0.14 KM |
| Brookside Primary School | Academy Converter | 0.19 KM | |
| Woodland Grange Primary School | Academy Converter | 1.24 KM | |
| Launde Primary School | Academy Converter | 1.87 KM | |
| Beauchamp College | Academy Converter | 2.02 KM |
Images
Nearby Streets
| Name | Average Price | Average Sqft | Distance |
|---|---|---|---|
| Tamar Road | £ 500,000 | 0 | 0.00 KM |
| Wyndham Close | £ 0 | 0 | 0.00 KM |
| Ann's Way | £ 0 | 0 | 0.00 KM |
| Belvoir Close | £ 0 | 0 | 0.00 KM |
| Home Farm | £ 925,000 | 0 | 0.00 KM |
Nearby Transport
| Name | NLC | TLC | Distance |
|---|---|---|---|
| Leicester | 1947 | LEI | 7.80 KM |
| South Wigston | 1949 | SWS | 8.38 KM |
Nearby Listings
| Address | Price | Type | Score | Distance |
|---|---|---|---|---|
| Frome Avenue, Oadby, Leicester | £ 250,000 | BUY | 6 / 10 | 0.00 KM |
| Frome Avenue, Oadby, Leicester | £ 375,000 | BUY | 8 / 10 | 0.03 KM |
| Severn Road, Oadby, Leicester | £ 600,000 | BUY | 6 / 10 | 0.12 KM |
| Severn Road, Oadby, Leicestershire | £ 635,000 | BUY | Unknown | 0.18 KM |
| Waveney Rise, Oadby, Leicester | £ 415,000 | BUY | 7 / 10 | 0.23 KM |
Nearby Properties
| Address | Price | Distance |
|---|---|---|
| 13 Frome Avenue | £ 151,500 | 0.04 KM |
| 4 Frome Avenue | £ 200,000 | 0.04 KM |
| 24 Frome Avenue | £ 67,000 | 0.04 KM |
| 12 Frome Avenue | £ 71,000 | 0.04 KM |
| 34 Frome Avenue | £ 214,500 | 0.04 KM |