Braintree Road, Wethersfield, Braintree, CM7
By Michaels Property Consultants Ltd
£ 725,000
Reviews
4 out of 5 stars
Michaels Property Consultants Ltd says ..
Michaels Property Consultants are delighted to present ‘Mill Retreat’ — an exquisite Grade II listed residence, enviably positioned between the highly sought-after villages of Shalford and Wethersfield, and within effortless reach of the bustling market town of Braintree.
Property Oracle says ..
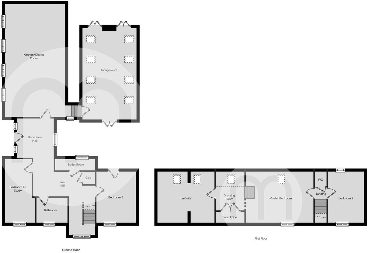
Braintree Road, Wethersfield, Braintree, CM7 is a charming property located in a desirable area. The property benefits from being close to highly-rated primary schools such as Shalford Primary School and Wethersfield Cofe Vc Primary School, both rated ‘Good’ by Ofsted. The proximity to Braintree (9.42 KM) provides convenient access to transport links. The images reveal a substantial property with extensive grounds including a large lawn and outbuildings. The property appears to have been recently renovated to a high standard, boasting a modern kitchen and bathrooms. The interior is bright and well-presented. The list price of £725,000 is slightly below the average price for the area (£744,025), suggesting it could represent good value, although the lack of square footage data prevents a definitive price per square foot comparison. The presence of a large garden and outbuildings adds to the overall appeal and value of the property.
Therefore, we give this property 8 / 10. *Disclaimer: This is our option and does constitute a recommendation or financial advice. Do your own research. *
- Price
- 8
- Condition
- 9
- Location
- 8
- Land
- 9
- Bedrooms
- 4
- Bathrooms
- 2
- Sqft (est)
- 1,325.00
The heatmap indicates the level of crime in the area. The color of the heatmap indicates the crime severity and recency.
Metrics Year-on-Year
- Average area value
- 503,333.00 £Decreased by 23.15 %
- Est sale value
- 600,225.00 £Increased by 61.21 %
- Average area rental value
- 2,825.00 £/moIncreased by 41.25 %
- Est letting value
- 2,650.00 £/mo
- Est rental Yield
- 6.74 %Increased by 84.15 %
- Crime Rate
- 0.00 %
Agent Activity
Michaels Property Consultants Ltd created the listing.
Nearby Schools
| Name | Type | Ofsted | Distance |
|---|---|---|---|
| Shalford Primary School | Academy Sponsor Led | Good | 1.79 KM |
| Wethersfield Cofe Vc Primary School | Voluntary Controlled School | Good | 2.24 KM |
| Finchingfield St John The Baptist Cofe Primary Academy | Academy Converter | 5.99 KM | |
| Great Bardfield Primary School | Community School | Good | 6.90 KM |
| Rayne Primary And Nursery School | Academy Sponsor Led | 6.94 KM |
Images
Nearby Streets
| Name | Average Price | Average Sqft | Distance |
|---|---|---|---|
| Hulls Lane | £ 0 | 0 | 0.00 KM |
| Redfants Farm Road | £ 0 | 0 | 0.00 KM |
| Hudson's Hill | £ 0 | 0 | 0.00 KM |
Nearby Transport
| Name | NLC | TLC | Distance |
|---|---|---|---|
| Braintree | 6801 | BTR | 9.42 KM |
Nearby Listings
| Address | Price | Type | Score | Distance |
|---|---|---|---|---|
| Braintree Road, Wethersfield, Braintree, CM7 | £ 725,000 | BUY | 8 / 10 | 0.00 KM |
| Wethersfield Road, Shalford, Braintree, Essex, CM7 | £ 1,395,000 | BUY | 7 / 10 | 0.24 KM |
| Wethersfield Road, Shalford, CM7 | £ 1,395,000 | BUY | 7 / 10 | 0.36 KM |
| Cliffield, Shalford, Braintree, CM7 | £ 350,000 | BUY | 7 / 10 | 0.53 KM |
| Barryfields, Shalford, Braintree | £ 375,000 | BUY | 6 / 10 | 0.54 KM |
Nearby Properties
| Address | Price | Distance |
|---|---|---|
| The Mill House | £ 1,000,000 | 0.01 KM |
| Mill Retreat | £ 580,000 | 0.01 KM |
| Mansard | £ 452,500 | 0.06 KM |
| Martins | £ 440,000 | 0.06 KM |
| Boydells Farmhouse | £ 743,000 | 0.06 KM |