Gascoigne Halman says ..
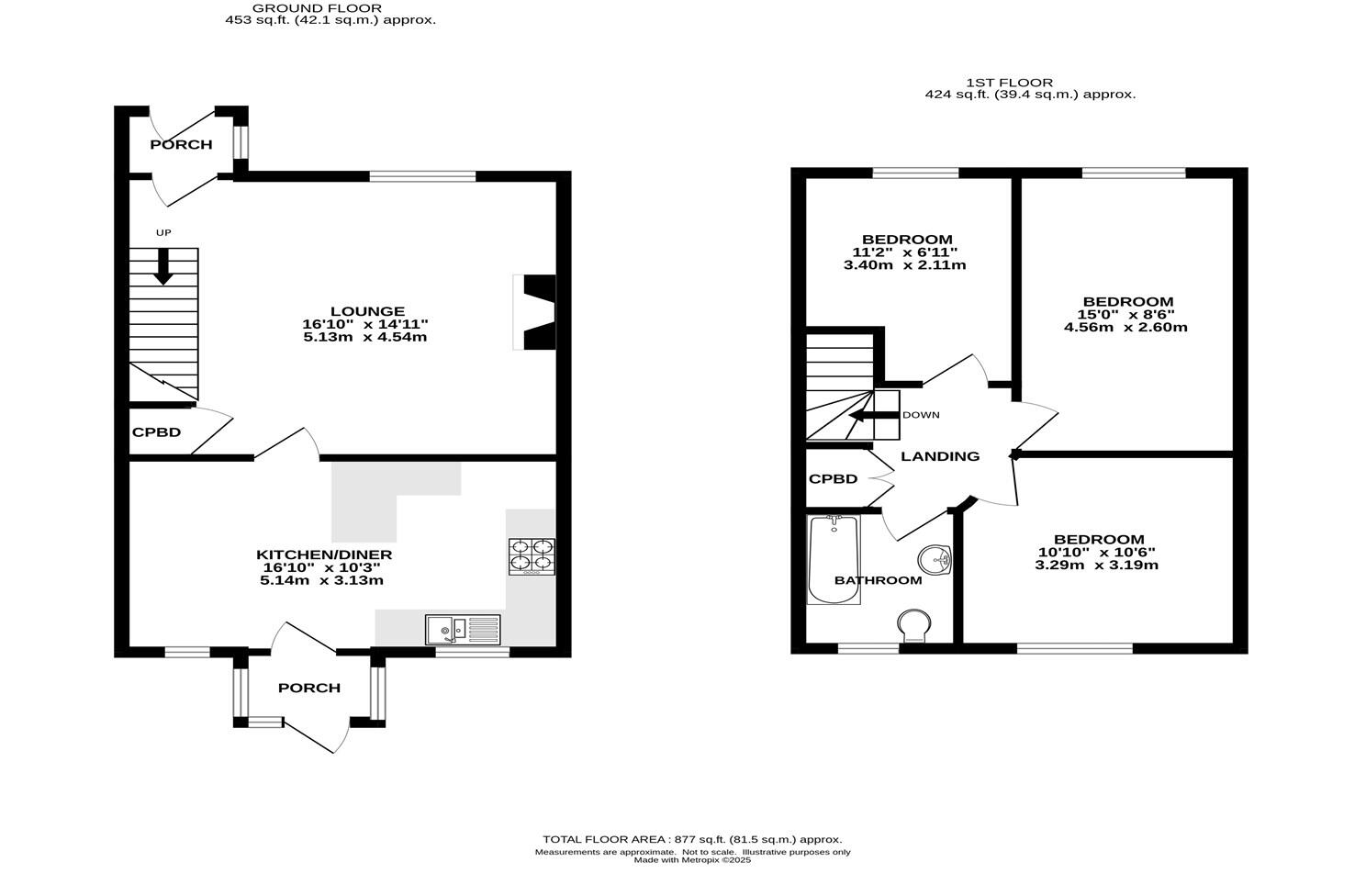
A beautifully presented and deceptively spacious stone built terrace cottage in a private location off Burlow Road. The property has undergone an excellent, recent, program of refurbishment blending attractive period features with modern fitting including contemporary fitted kitchen and bathroom....
Property Oracle says ..
Therefore, we give this property 6 / 10. *Disclaimer: This is our option and does constitute a recommendation or financial advice. Do your own research. *
- Price
- 7
- Condition
- 8
- Location
- 7
- Land
- 5
- Bedrooms
- 3
- Bathrooms
- 1
- Sqft (est)
- 734.10
The heatmap indicates the level of crime in the area. The color of the heatmap indicates the crime severity and recency.
Metrics Year-on-Year
- Average area value
- 334,167.00 £Increased by 24.23 %
- Est sale value
- 188,663.70 £Decreased by 19.44 %
- Average area rental value
- 1,252.00 £/moIncreased by 4.33 %
- Est letting value
- 0.00 £/moDecreased by 100.00 %
- Est rental Yield
- 4.50 %Decreased by 15.89 %
- Crime Rate
- 7.00 %Unchanged by 0.00 %
from 269,000.00 £
from 234,177.90 £
from 1,200.00 £/mo
from 734.10 £/mo
from 5.35 %
from 7.00 %
Agent Activity
Gascoigne Halman created the listing.
Nearby Schools
| Name | Type | Ofsted | Distance |
|---|---|---|---|
| Harpur Hill Primary School | Community School | Good | 1.27 KM |
| Buxton Junior School | Community School | Good | 2.16 KM |
| Fairfield Children'S Centre | Children's Centre | 2.58 KM | |
| Buxton Infant School | Community School | Outstanding | 2.66 KM |
| Buxton Community School | Voluntary Controlled School | Good | 2.74 KM |
Images
Nearby Streets
| Name | Average Price | Average Sqft | Distance |
|---|---|---|---|
| Solomans Court | £ 189,983 | 0 | 0.00 KM |
| Harris Road | £ 259,475 | 0 | 0.00 KM |
| Church View | £ 0 | 0 | 0.00 KM |
| Silkstone Crescent | £ 399,950 | 0 | 0.00 KM |
| Grin Low Close | £ 220,000 | 0 | 0.00 KM |
Nearby Transport
| Name | NLC | TLC | Distance |
|---|---|---|---|
| Buxton | 2946 | BUX | 3.13 KM |
| Dove Holes | 2766 | DVH | 7.39 KM |
| Chapel-En-Le-Frith | 2762 | CEF | 8.82 KM |
Nearby Listings
| Address | Price | Type | Score | Distance |
|---|---|---|---|---|
| Burlow Road, Buxton | £ 220,000 | BUY | 6 / 10 | 0.00 KM |
| Burlow Road, Buxton, Derbyshire, SK17 | £ 199,950 | BUY | 6 / 10 | 0.03 KM |
| Burlow Road, Buxton | £ 245,000 | BUY | 7 / 10 | 0.09 KM |
| Starling Road, Harpur Hill, Buxton | £ 299,950 | BUY | 7 / 10 | 0.12 KM |
| Solomons Court, Harpur Hill, Buxton | £ 277,000 | BUY | 6 / 10 | 0.14 KM |
Nearby Properties
| Address | Price | Distance |
|---|---|---|
| 80 Burlow Road | £ 137,500 | 0.02 KM |
| 58 Burlow Road | £ 49,000 | 0.02 KM |
| 72 Burlow Road | £ 129,000 | 0.02 KM |
| 82 Burlow Road | £ 150,000 | 0.02 KM |
| 86 Burlow Road | £ 134,000 | 0.02 KM |