A fine townhouse with large garden, garage and parking in central Bruton
By Lodestone Property
£ 645,000
Reviews
3 out of 5 stars
Lodestone Property says ..
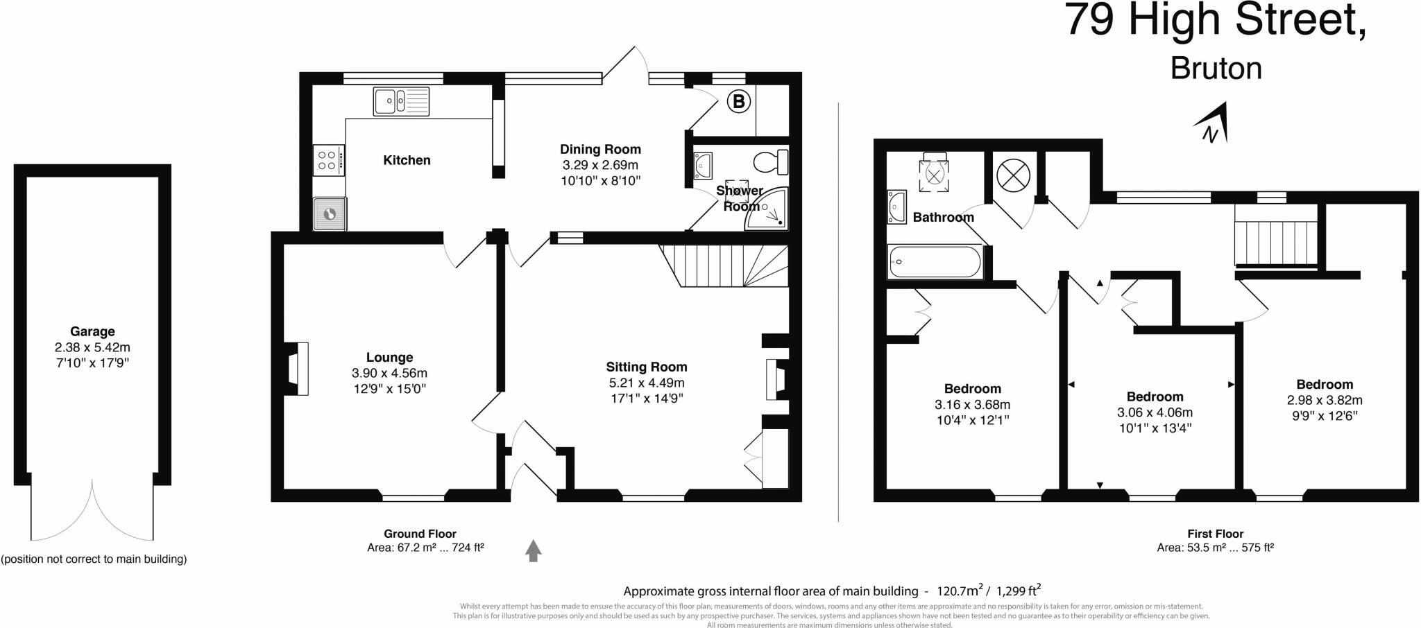
Well House, 79 High Street, is a much loved double fronted period town house, carefully improved in recent years, located in the centre town of Bruton. The welcoming front door opens into an inner hallway leading to two well proportioned receptions that would form a sitting and dining room, ...
Property Oracle says ..
This three-bedroom, two-bathroom townhouse situated on High Street in Bruton, Somerset offers a blend of period charm and modern convenience. The property’s central location within Bruton provides easy access to local shops, amenities, and transport links, including Bruton train station which is approximately 1.17 km away. While the provided photos show a generally well-maintained interior and exterior, a precise assessment of the property’s condition would require an in-person inspection. The garden, although not extensively detailed, adds to the appeal of this property, featuring tiered landscaping with a pergola and patio area. The list price of £645,000 appears to be consistent with prices of similar properties in the area, although the absence of definitive square footage and plot size data for this property, and comparable ones, makes a precise price-per-square-foot analysis difficult. The nearby schools show varied Ofsted ratings, suggesting potential buyers should research their specific needs and preferences. Overall, this property represents a desirable option for those seeking a centrally located home in a sought-after Somerset town, but buyers should conduct thorough due diligence regarding its precise dimensions and condition.
Therefore, we give this property 7 / 10. *Disclaimer: This is our option and does constitute a recommendation or financial advice. Do your own research. *
- Price
- 7
- Condition
- 7
- Location
- 9
- Land
- 6
- Bedrooms
- 3
- Bathrooms
- 2
- Sqft (est)
- 1,299.20
The heatmap indicates the level of crime in the area. The color of the heatmap indicates the crime severity and recency.
Metrics Year-on-Year
- Average area value
- 535,000.00 £Increased by 16.93 %
- Est sale value
- 475,507.20 £Increased by 82.09 %
- Average area rental value
- 905.00 £/moDecreased by 41.61 %
- Est letting value
- 0.00 £/mo
- Est rental Yield
- 2.03 %Decreased by 50.12 %
- Crime Rate
- 12.00 %Unchanged by 0.00 %
Agent Activity
Lodestone Property created the listing.
Nearby Schools
| Name | Type | Ofsted | Distance |
|---|---|---|---|
| Bruton Primary School | Foundation School | Good | 0.27 KM |
| King'S Bruton | Other Independent School | 0.29 KM | |
| Sexey'S School | Academy Converter | Serious Weaknesses | 0.87 KM |
| Bruton School For Girls | Other Independent School | 1.80 KM | |
| Castle Cary Building | Children's Centre Linked Site | 6.11 KM |
Images
Nearby Streets
| Name | Average Price | Average Sqft | Distance |
|---|---|---|---|
| Mill Lane | £ 0 | 0 | 0.00 KM |
| West End | £ 0 | 0 | 0.00 KM |
| Berkeley Gerdens | £ 400,000 | 0 | 0.00 KM |
| On The Brook | £ 3,500,000 | 0 | 0.00 KM |
| Burrowfield Road | £ 0 | 0 | 0.00 KM |
Nearby Transport
| Name | NLC | TLC | Distance |
|---|---|---|---|
| Bruton | 5702 | BRU | 1.17 KM |
| Castle Cary | 5703 | CLC | 7.31 KM |
Nearby Listings
| Address | Price | Type | Score | Distance |
|---|---|---|---|---|
| A fine townhouse with large garden, garage and parking in central Bruton | £ 645,000 | BUY | 7 / 10 | 0.00 KM |
| High St, Bruton, Somerset, BA10 | £ 575,000 | BUY | 7 / 10 | 0.00 KM |
| High Street, Bruton, Somerset, BA10 | £ 730,000 | BUY | Unknown | 0.04 KM |
| High Street, Bruton, Somerset, BA10 | £ 300,000 | BUY | 4 / 10 | 0.04 KM |
| Mill Lane, Bruton, Somerset, BA10 | £ 375,000 | BUY | 6 / 10 | 0.10 KM |
Nearby Properties
| Address | Price | Distance |
|---|---|---|
| 75a High Street | £ 112,000 | 0.00 KM |
| Silk Mill House | £ 590,000 | 0.00 KM |
| 75 High Street | £ 275,000 | 0.00 KM |
| 77a High Street | £ 380,000 | 0.00 KM |
| 63 High Street | £ 365,000 | 0.00 KM |