Tylney Avenue, Crystal Palace, London, SE19
By Pedder
£ 950,000
Reviews
3 out of 5 stars
Pedder says ..
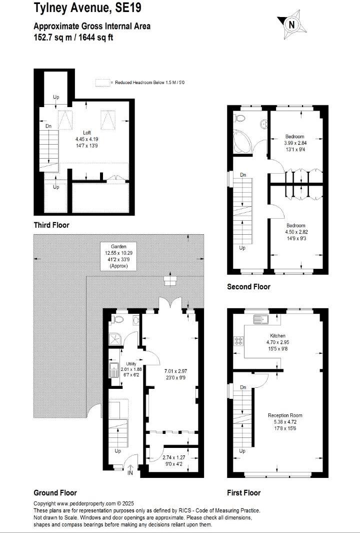
A stylish three/four-bedroom mid-century end-of-terrace townhouse, forming part of the prestigious Dulwich Estate and perfectly positioned on the borders of Crystal Palace and Dulwich. Exceptionally light and beautifully arranged, the property offers flexible multi-level living—ideal for...
Property Oracle says ..
This is a three-bedroom house on Tylney Avenue, Crystal Palace, London. The property features a modern kitchen and bathrooms, a good-sized garden with a shed, and off-street parking. The house is located in a desirable residential area with good access to local amenities, transportation, and schools. The condition of the property is generally good, although some areas may benefit from updating. The asking price seems a little high compared to similar properties in the area.
Therefore, we give this property 7 / 10. *Disclaimer: This is our option and does constitute a recommendation or financial advice. Do your own research. *
- Price
- 6
- Condition
- 7
- Location
- 8
- Land
- 8
- Bedrooms
- 3
- Bathrooms
- 2
The heatmap indicates the level of crime in the area. The color of the heatmap indicates the crime severity and recency.
Metrics Year-on-Year
- Average area value
- 806,250.00 £Increased by 8.35 %
- Average area rental value
- 2,379.00 £/moIncreased by 1.23 %
- Est rental Yield
- 3.54 %Decreased by 6.60 %
- Crime Rate
- 2.00 %Unchanged by 0.00 %
Agent Activity
Pedder created the listing.
Nearby Schools
| Name | Type | Ofsted | Distance |
|---|---|---|---|
| Paxton Primary School | Community School | Outstanding | 0.49 KM |
| Dulwich Wood Children'S Centre And Nursery School & Children'S Centre | Children's Centre | 0.55 KM | |
| Dulwich Wood Nursery School | Local Authority Nursery School | Good | 0.67 KM |
| Dulwich Wood Primary School | Community School | Good | 0.85 KM |
| Kingsdale Foundation School | Academy Converter | Outstanding | 1.04 KM |
Images
Nearby Streets
| Name | Average Price | Average Sqft | Distance |
|---|---|---|---|
| Bowley Close | £ 0 | 0 | 0.00 KM |
| Hitherwood Court | £ 0 | 0 | 0.00 KM |
| Forbes Court | £ 0 | 0 | 0.00 KM |
| Woodland Road | £ 497,857 | 0 | 0.00 KM |
| Bluebell Close | £ 650,000 | 0 | 0.00 KM |
Nearby Transport
| Name | NLC | TLC | Distance |
|---|---|---|---|
| Gipsy Hill | 5363 | GIP | 0.59 KM |
| Sydenham Hill | 5085 | SYH | 0.82 KM |
| Crystal Palace | 5356 | CYP | 1.06 KM |
| Anerley | 5397 | ANZ | 2.05 KM |
| Penge West | 5378 | PNW | 2.16 KM |
Nearby Listings
| Address | Price | Type | Score | Distance |
|---|---|---|---|---|
| Tylney Avenue, Crystal Palace, London, SE19 | £ 950,000 | BUY | 7 / 10 | 0.00 KM |
| Drake Court, Tylney Avenue, London SE19 | £ 415,000 | BUY | 7 / 10 | 0.07 KM |
| Giles Coppice, London | £ 800,000 | BUY | 7 / 10 | 0.10 KM |
| Lymer Avenue, Crystal Palace, London, SE19 | £ 460,000 | BUY | 5 / 10 | 0.10 KM |
| Lymer Avenue, Crystal Palace, London, SE19 | £ 500,000 | BUY | Unknown | 0.11 KM |
Nearby Properties
| Address | Price | Distance |
|---|---|---|
| 29 Tylney Avenue | £ 695,000 | 0.01 KM |
| 6 Tylney Avenue | £ 760,000 | 0.01 KM |
| 35 Tylney Avenue | £ 650,000 | 0.02 KM |
| 30 Tylney Avenue | £ 430,000 | 0.02 KM |
| 20 Tylney Avenue | £ 335,000 | 0.02 KM |