Chancellors says ..
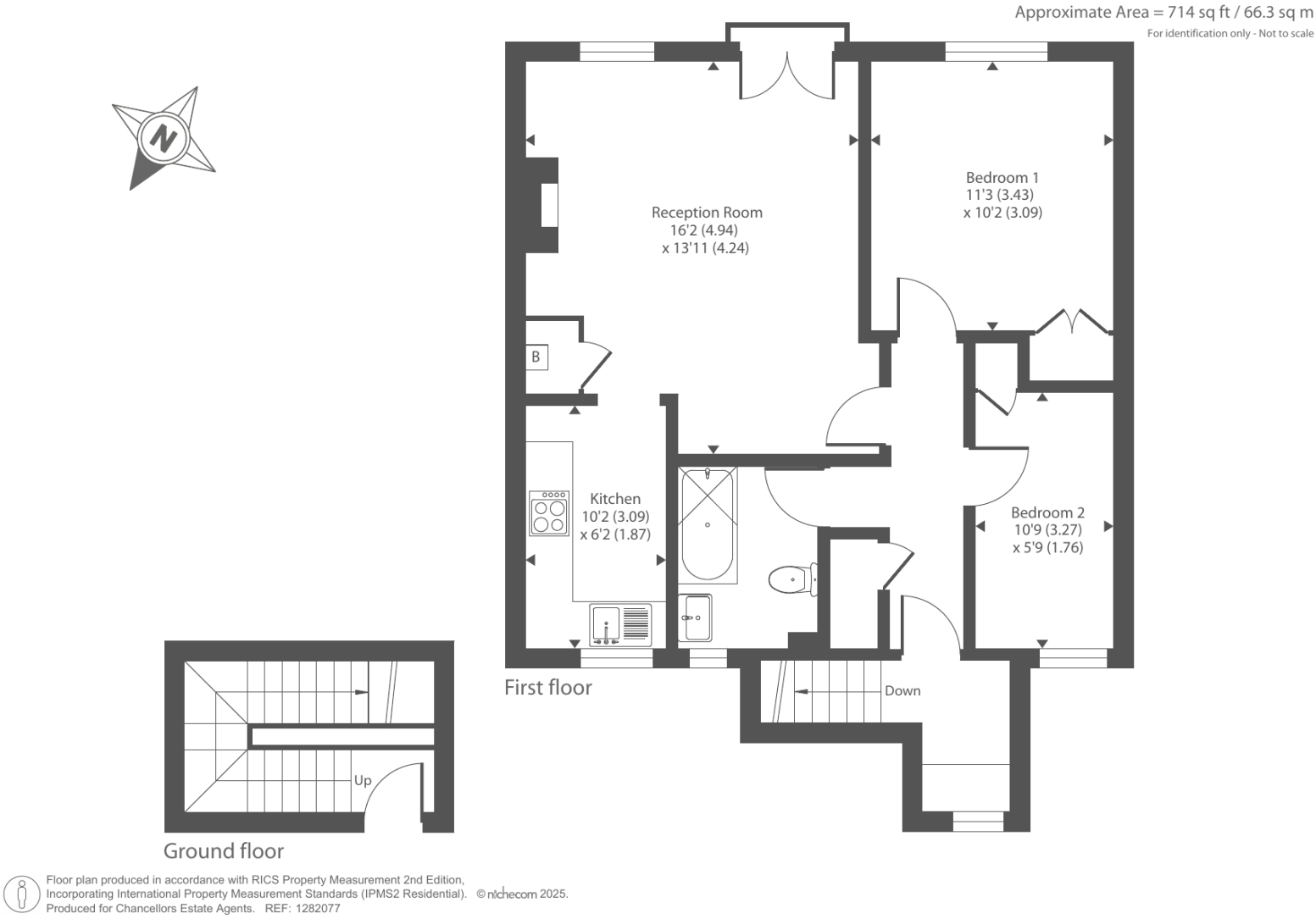
This two bedroom first floor maisonette has been refurbished and decorated to a high standard. Located in a cul de sac the property comprises Living room, Kitchen, Two bedrooms, Family bathroom and parking. of viewing is highly recommended.
Property Oracle says ..
This is a well-presented two-bedroom maisonette in a popular location. The property is in good condition and benefits from a garden. The price is reasonable for the area. The property is located close to local schools and amenities, making it an ideal purchase for a small family or first-time buyer. The nearby train station also makes it ideal for commuters.
Therefore, we give this property 7 / 10. *Disclaimer: This is our option and does constitute a recommendation or financial advice. Do your own research. *
- Price
- 7
- Condition
- 8
- Location
- 7
- Land
- 6
- Bedrooms
- 2
- Bathrooms
- 1
- Sqft (est)
- 466.00
The heatmap indicates the level of crime in the area. The color of the heatmap indicates the crime severity and recency.
Metrics Year-on-Year
- Average area value
- 525,000.00 £Increased by 70.84 %
- Est sale value
- 219,952.00 £Increased by 10.02 %
- Average area rental value
- 1,050.00 £/moDecreased by 53.02 %
- Est letting value
- 0.00 £/moDecreased by 100.00 %
- Est rental Yield
- 2.40 %Decreased by 72.51 %
- Crime Rate
- 17.00 %Unchanged by 0.00 %
Agent Activity
Chancellors created the listing.
Nearby Schools
| Name | Type | Ofsted | Distance |
|---|---|---|---|
| Spurcroft Primary School | Community School | Good | 0.25 KM |
| Kennet School | Academy Converter | Outstanding | 0.95 KM |
| Francis Baily Primary School | Academy Converter | 1.29 KM | |
| Thatcham Park Cofe Primary | Voluntary Controlled School | Good | 1.33 KM |
| Central Family Hub - Thatcham | Children's Centre | 1.61 KM |
Images
Nearby Streets
| Name | Average Price | Average Sqft | Distance |
|---|---|---|---|
| Oak Tree Road | £ 435,000 | 0 | 0.00 KM |
| Station Road | £ 193,000 | 0 | 0.00 KM |
| Coombe Square | £ 369,950 | 0 | 0.00 KM |
| Bluecoats | £ 254,000 | 0 | 0.00 KM |
| Monkey Marsh Swing Bridge | £ 0 | 0 | 0.00 KM |
Nearby Transport
| Name | NLC | TLC | Distance |
|---|---|---|---|
| Thatcham | 3152 | THA | 1.33 KM |
| Newbury Racecourse | 3071 | NRC | 5.84 KM |
| Newbury | 3074 | NBY | 7.51 KM |
| Midgham | 3159 | MDG | 8.55 KM |
Nearby Listings
| Address | Price | Type | Score | Distance |
|---|---|---|---|---|
| Thatcham, Berkshire, RG19 | £ 230,000 | BUY | 7 / 10 | 0.00 KM |
| Thatcham, Berkshire, RG19 | £ 245,000 | BUY | 7 / 10 | 0.00 KM |
| Urquhart Road, Thatcham, Berkshire, RG19 | £ 400,000 | BUY | 7 / 10 | 0.09 KM |
| Hussars Drive, Thatcham, RG19 | £ 495,000 | BUY | Unknown | 0.12 KM |
| Urquhart Road, Thatcham, Berkshire, RG19 | £ 250,000 | BUY | 5 / 10 | 0.18 KM |
Nearby Properties
| Address | Price | Distance |
|---|---|---|
| 1 Fusiliers Place | £ 295,000 | 0.09 KM |
| 3 Fusiliers Place | £ 330,000 | 0.09 KM |
| 2 Fusiliers Place | £ 270,000 | 0.09 KM |
| 6 Fusiliers Place | £ 365,000 | 0.09 KM |
| 5 Fusiliers Place | £ 295,950 | 0.09 KM |