Pearson Road, Cleethorpes
AR

Pearson Road, Cleethorpes

By Argyle Estate Agents

£ 260,000

Reviews

3 out of 5 stars

Argyle Estate Agents says ..

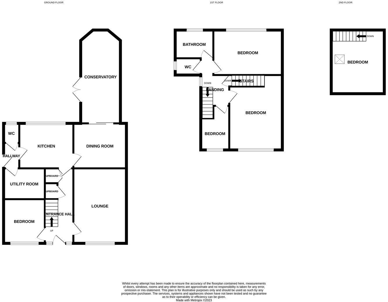
An extended semi detached home offering flexible four/five bedroom family accommodation in this highly sought after area of Cleethorpes. Conveniently located just a stone's throw from the popular Signhills Academy, amenites, and short walking distance of the seafront and local parks. The...

Property Oracle says ..

The property is a 4-bedroom house with 1 bathroom, situated in the Haverstoe locality of Cleethorpes, North East Lincolnshire. The list price is £260,000, and the property has a floor area of 1290 sqft. The average house price in the area is £295,228, with an average price per sqft of £279. Nearby properties on Pearson Road have sold for £225,000 and £237,000. The property benefits from being close to several well-regarded schools, including Signhills Infant Academy and St Peter’s Cofe Primary School, both rated ‘Good’ by Ofsted. Cleethorpes train station is also within a reasonable distance.

The property appears to be in good condition based on the provided images. The interior is presented well, and there is no obvious evidence of significant repairs or renovations required. The kitchen and bathrooms look relatively modern and well-maintained. The exterior also presents well with a paved driveway and a sizeable garden. The garden is a significant feature, offering ample space for outdoor activities.

Considering the property’s location near good schools and transport links, its apparent good condition, and the presence of a garden, the list price of £260,000 appears reasonable compared to similar properties in the area. While the average house price is higher, the lower price per sqft of this property compared to the area average might account for this difference. The comparable sales on Pearson Road also support this pricing.

Therefore, we give this property 7 / 10. *Disclaimer: This is our option and does constitute a recommendation or financial advice. Do your own research. *

Price
7
Condition
8
Location
7
Land
7
Bedrooms
4
Bathrooms
1
Sqft (est)
1,290.00

The heatmap indicates the level of crime in the area. The color of the heatmap indicates the crime severity and recency.

Metrics Year-on-Year

Average area value
314,550.00 £
Increased by 12.82 %
from 278,804.00 £
Est sale value
292,830.00 £
Decreased by 20.07 %
from 366,360.00 £
Average area rental value
768.00 £/mo
Decreased by 21.71 %
from 981.00 £/mo
Est letting value
0.00 £/mo
Decreased by 100.00 %
from 1,290.00 £/mo
Est rental Yield
2.93 %
Decreased by 30.57 %
from 4.22 %
Crime Rate
3.00 %
Unchanged by 0.00 %
from 3.00 %

Agent Activity

  • Argyle Estate Agents created the listing.

Nearby Schools

NameTypeOfstedDistance
Signhills Infant AcademyAcademy ConverterGood0.28 KM
Signhills AcademyAcademy Converter0.28 KM
Thrunscoe Primary And Nursery AcademyAcademy ConverterGood0.90 KM
Highgate Outreach (Thrunscoe)Children's Centre Linked Site1.20 KM
St Peter'S Cofe Primary SchoolAcademy ConverterGood1.28 KM

Images

resized_IMG_1785..jpg resized_IMG_1841..jpg resized_IMG_1835..jpg resized_IMG_1830.jpg resized_IMG_1845..jpg resized_IMG_1843.jpg resized_IMG_1846..jpg resized_IMG_1849.jpg resized_IMG_1856..jpg resized_IMG_1858.jpg resized_IMG_1827..jpg resized_IMG_1826.jpg resized_IMG_1862.jpg resized_IMG_1814.jpg resized_IMG_1815..jpg resized_IMG_1793..jpg resized_IMG_1792..jpg resized_IMG_1798..jpg resized_IMG_1799..jpg resized_IMG_1803.jpg resized_IMG_1819.jpg resized_IMG_1820..jpg resized_IMG_1821..jpg resized_IMG_1806..jpg resized_IMG_1812.jpg resized_IMG_1789..jpg resized_IMG_1870.jpg resized_IMG_1869.jpg resized_IMG_1865..jpg resized_IMG_1868.jpg resized_IMG_1866.jpg

Nearby Streets

NameAverage PriceAverage SqftDistance
Taylor's Avenue £ 000.00 KM
Newbold Court £ 227,33300.00 KM
Towle Court £ 180,00000.00 KM
Carlyle Close £ 000.00 KM
Blenheim Place £ 160,00000.00 KM

Nearby Transport

NameNLCTLCDistance
Cleethorpes6274CLE1.65 KM
New Clee6289NCE4.93 KM
Grimsby Docks6276GMD6.32 KM
Grimsby Town6280GMB7.05 KM

Nearby Listings

AddressPriceTypeScoreDistance
Pearson Road, Cleethorpes, DN35 £ 449,500BUY7 / 100.06 KM
Pearson Road, Cleethorpes, North East Lincs, DN35 £ 500,000BUYUnknown0.07 KM
Chichester Road, Cleethorpes £ 270,000BUY8 / 100.12 KM
Fillingham Crescent, Cleethorpes, N.E. Lincs, DN35 0JD £ 197,950BUYUnknown0.13 KM
Pearson Road, Cleethorpes £ 200,000BUY7 / 100.16 KM

Nearby Properties

AddressPriceDistance
4 Pearson Road £ 225,0000.06 KM
10 Pearson Road £ 237,0000.06 KM
21 Minshull Road £ 149,9500.12 KM
41 Minshull Road £ 113,0000.12 KM
37 Minshull Road £ 218,0000.12 KM