PA
Fishponds Road, Bristol
By Parks Estate Agents
£ 179,995
Reviews
2 out of 5 stars
Parks Estate Agents says ..
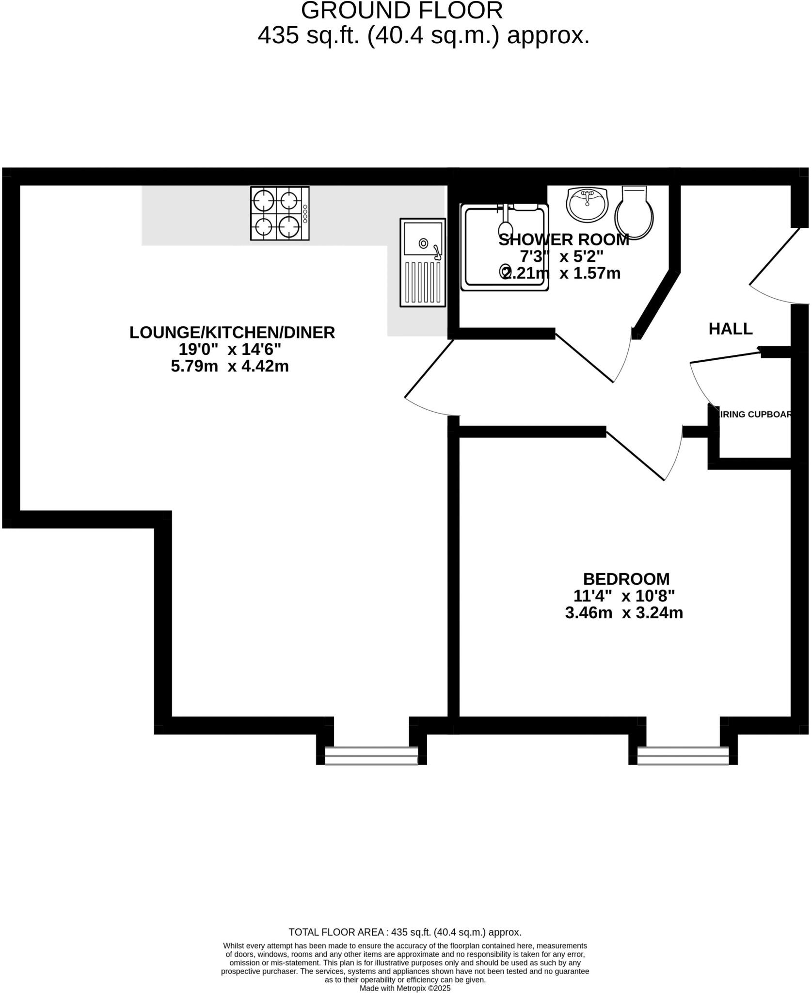
Charming One-Bedroom Flat in the Heart of FishpondsSet within a desirable location in Fishponds, this delightful one-bedroom flat with beautiful arched windows combines charm with modern living. Boasting a spacious open-plan kitchen and dining area, this home is perfect for entertaining or relaxi...
Property Oracle says ..
Therefore, we give this property 5 / 10. *Disclaimer: This is our option and does constitute a recommendation or financial advice. Do your own research. *
- Price
- 7
- Condition
- 8
- Location
- 7
- Land
- 1
- Bedrooms
- 1
- Bathrooms
- 1
- Sqft (est)
- 435.00
The heatmap indicates the level of crime in the area. The color of the heatmap indicates the crime severity and recency.
Metrics Year-on-Year
- Average area value
- 387,500.00 £Increased by 9.48 %
- Est sale value
- 179,220.00 £Increased by 24.85 %
- Average area rental value
- 1,149.00 £/moDecreased by 38.65 %
- Est letting value
- 435.00 £/moUnchanged by 0.00 %
- Est rental Yield
- 3.56 %Decreased by 43.94 %
- Crime Rate
- 31.00 %Unchanged by 0.00 %
from 353,957.00 £
from 143,550.00 £
from 1,873.00 £/mo
from 435.00 £/mo
from 6.35 %
from 31.00 %
Agent Activity
Parks Estate Agents created the listing.
Nearby Schools
| Name | Type | Ofsted | Distance |
|---|---|---|---|
| Fishponds Church Of England Academy | Academy Sponsor Led | Requires improvement | 0.17 KM |
| St Matthias Academy | Academy Alternative Provision Converter | 0.32 KM | |
| Chester Park Infant School | Community School | Good | 0.57 KM |
| Bristol Metropolitan Academy | Academy Sponsor Led | Good | 0.59 KM |
| Chester Park Junior School | Community School | Good | 0.66 KM |
Images
Nearby Streets
| Name | Average Price | Average Sqft | Distance |
|---|---|---|---|
| Station Avenue South | £ 190,000 | 0 | 0.00 KM |
| Hockeys Lane | £ 0 | 0 | 0.00 KM |
| Adelaide Terrace | £ 230,000 | 0 | 0.00 KM |
| Grove Park Gardens | £ 0 | 0 | 0.00 KM |
| Hinton Road | £ 357,500 | 0 | 0.00 KM |
Nearby Transport
| Name | NLC | TLC | Distance |
|---|---|---|---|
| Stapleton Road | 3250 | SRD | 3.80 KM |
| Bristol Parkway | 3230 | BPW | 4.00 KM |
| Lawrence Hill | 3225 | LWH | 4.11 KM |
| Filton Abbey Wood | 3235 | FIT | 4.30 KM |
| Patchway | 3213 | PWY | 6.14 KM |
Nearby Listings
| Address | Price | Type | Score | Distance |
|---|---|---|---|---|
| Fishpond Road, Fishponds | £ 130,000 | BUY | 5 / 10 | 0.00 KM |
| Fishponds Road, Bristol | £ 179,995 | BUY | 5 / 10 | 0.00 KM |
| 683 Fishponds Road, Bristol, BS16 | £ 250,000 | BUY | 6 / 10 | 0.01 KM |
| Channons Hill, Fishponds | £ 315,000 | BUY | 7 / 10 | 0.04 KM |
| Channons Place, Fishponds | £ 275,000 | BUY | 7 / 10 | 0.07 KM |
Nearby Properties
| Address | Price | Distance |
|---|---|---|
| 675a Fishponds Road | £ 225,000 | 0.02 KM |
| 679 Fishponds Road | £ 100,000 | 0.02 KM |
| 681c Fishponds Road | £ 34,000 | 0.02 KM |
| 40 Channons Hill | £ 216,000 | 0.04 KM |
| 48 Channons Hill | £ 260,000 | 0.04 KM |