Theydons says ..
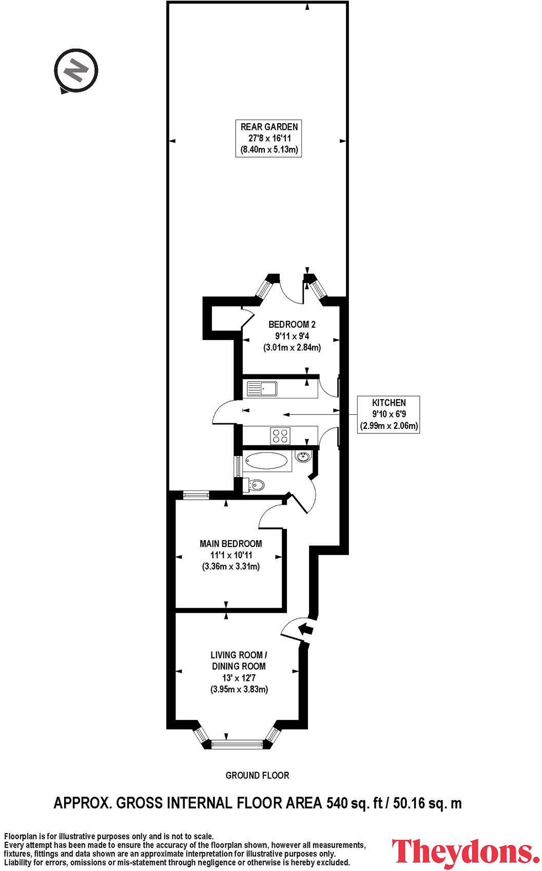
Step into a stylish ground-floor sanctuary where comfort meets convenience in this beautifully presented two-bedroom flat, complete with direct access to your very own private garden, an inviting escape perfect for lazy weekend brunches, summer reads, or evening unwinds. Nestled just moments from th
Property Oracle says ..
Therefore, we give this property 7 / 10. *Disclaimer: This is our option and does constitute a recommendation or financial advice. Do your own research. *
- Price
- 7
- Condition
- 6
- Location
- 8
- Land
- 7
- Bedrooms
- 2
- Bathrooms
- 1
- Sqft (est)
- 540.00
The heatmap indicates the level of crime in the area. The color of the heatmap indicates the crime severity and recency.
Metrics Year-on-Year
- Average area value
- 534,286.00 £Decreased by 9.44 %
- Est sale value
- 346,680.00 £Decreased by 8.55 %
- Average area rental value
- 1,869.00 £/moDecreased by 4.30 %
- Est letting value
- 1,080.00 £/moUnchanged by 0.00 %
- Est rental Yield
- 4.20 %Increased by 5.79 %
- Crime Rate
- 4.00 %Unchanged by 0.00 %
from 589,992.00 £
from 379,080.00 £
from 1,953.00 £/mo
from 1,080.00 £/mo
from 3.97 %
from 4.00 %
Agent Activity
Theydons marked this listing as sold.
Theydons created the listing.
Nearby Schools
| Name | Type | Ofsted | Distance |
|---|---|---|---|
| Newport School | Community School | Outstanding | 0.32 KM |
| Norlington School And 6Th Form | Academy Converter | Good | 0.53 KM |
| Noor Ul Islam Primary School | Other Independent School | Good | 0.56 KM |
| Connaught School For Girls | Academy Converter | Good | 0.74 KM |
| Mayville Primary School | Academy Converter | Good | 0.83 KM |
Images
Nearby Streets
| Name | Average Price | Average Sqft | Distance |
|---|---|---|---|
| Sunal Court | £ 0 | 0 | 0.00 KM |
| Albert Road | £ 475,000 | 0 | 0.00 KM |
| St Mary's Road | £ 866,667 | 0 | 0.00 KM |
| Scarborough Road | £ 725,000 | 0 | 0.00 KM |
| Hollydown Way | £ 0 | 0 | 0.00 KM |
Nearby Transport
| Name | NLC | TLC | Distance |
|---|---|---|---|
| Leytonstone High Road | 7403 | LER | 1.05 KM |
| Leyton Midland Road | 7402 | LEM | 1.11 KM |
| Maryland | 6970 | MYL | 1.99 KM |
| Stratford International | 7222 | SFA | 2.16 KM |
| Stratford | 6969 | SRA | 2.32 KM |
Nearby Listings
| Address | Price | Type | Score | Distance |
|---|---|---|---|---|
| Oakdale Road, Leytonstone, E11 | £ 450,000 | BUY | 7 / 10 | 0.00 KM |
| Oakdale Road, Leytonstone, E11 | £ 450,000 | BUY | 6 / 10 | 0.01 KM |
| Oakdale Road, Leytonstone, E11 | £ 625,000 | BUY | 5 / 10 | 0.03 KM |
| Pearcroft Road, London, E11 | £ 350,000 | BUY | 6 / 10 | 0.05 KM |
| Pearcroft Road, Leyton, London, E11 | £ 375,000 | BUY | 6 / 10 | 0.05 KM |
Nearby Properties
| Address | Price | Distance |
|---|---|---|
| 59 Oakdale Road | £ 451,000 | 0.00 KM |
| 65 Oakdale Road | £ 249,999 | 0.00 KM |
| 115 Oakdale Road | £ 210,000 | 0.00 KM |
| 103 Oakdale Road | £ 540,000 | 0.00 KM |
| 107 Oakdale Road | £ 606,667 | 0.00 KM |