The Gallery Apartments, Gloucester Road, Ross-On-Wye, Herefordshire, HR9
RI

The Gallery Apartments, Gloucester Road, Ross-On-Wye, Herefordshire, HR9

By Richard Butler & Associates

£ 550,000

Reviews

3 out of 5 stars

Richard Butler & Associates says ..

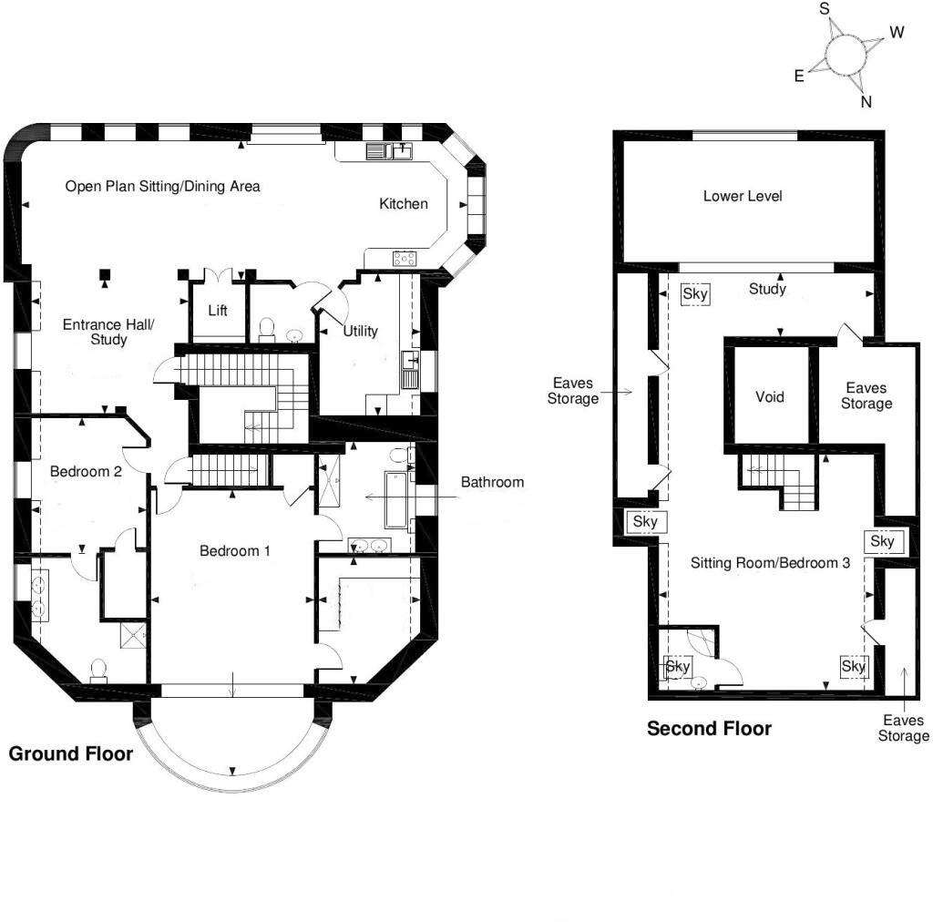
A truly unique opportunity to acquire this one of a kind penthouse apartment set over two floors. Boasting modern features of the highest standard which empathise the character yet with a contemporary feel, no stone has been left unturned in this sympathetic restoration.

Property Oracle says ..

This property is a stunning, converted penthouse apartment situated in Ross-on-Wye, Herefordshire. Occupying what appears to be a former chapel, the conversion is impressive, seamlessly blending modern luxury with the building’s original character. High ceilings, large windows, and well-preserved architectural features combine to create a spacious, light-filled living space. The use of contemporary furnishings and fittings further elevates the property’s appeal. The multiple bedrooms, bathrooms, and the presence of extra living areas or study space makes this a spacious family home. The kitchen is well-equipped and tastefully decorated. The unique design and architectural features offer an intriguing space, perfect for someone who appreciates something unconventional. While the lack of outside space is noteworthy, the central location within Ross-on-Wye makes up for this. The presence of several good schools nearby and local amenities are additional advantages. The price is high, but in line with other premium properties in the area. The lack of precise plot size and square footage for nearby properties, makes accurate comparison challenging. This penthouse represents a rare opportunity to own a unique and well-appointed home in a desirable market town.

Therefore, we give this property 6 / 10. *Disclaimer: This is our option and does constitute a recommendation or financial advice. Do your own research. *

Price
7
Condition
9
Location
7
Land
1
Bedrooms
3
Bathrooms
3
Sqft (est)
1,600.00

The heatmap indicates the level of crime in the area. The color of the heatmap indicates the crime severity and recency.

Metrics Year-on-Year

Average area value
360,250.00 £
Increased by 11.43 %
from 323,308.00 £
Est sale value
118,400.00 £
Decreased by 74.13 %
from 457,600.00 £
Average area rental value
1,009.00 £/mo
Increased by 12.86 %
from 894.00 £/mo
Est letting value
0.00 £/mo
from 0.00 £/mo
Est rental Yield
3.36 %
Increased by 1.20 %
from 3.32 %
Crime Rate
84.00 %
Unchanged by 0.00 %
from 84.00 %

Agent Activity

  • Richard Butler & Associates created the listing.

Nearby Schools

NameTypeOfstedDistance
Children'S Centre, Ross On WyeChildren's Centre0.64 KM
St Joseph'S Rc Primary SchoolVoluntary Aided SchoolGood0.64 KM
Ashfield Park Primary SchoolCommunity SchoolGood0.90 KM
Brampton Abbotts Cofe Primary SchoolVoluntary Aided SchoolGood1.03 KM
John Kyrle High School And Sixth Form Centre AcademyAcademy ConverterGood1.18 KM

Images

Picture No. 34 Picture No. 16 Picture No. 07 Picture No. 09 Picture No. 19 Picture No. 15 Picture No. 21 Picture No. 23 Picture No. 14 Picture No. 05 Picture No. 33 Picture No. 30 Picture No. 18 Picture No. 20 Picture No. 11 Picture No. 13 Picture No. 06 Picture No. 22 Picture No. 25 Picture No. 27

Nearby Streets

NameAverage PriceAverage SqftDistance
Broad Street £ 000.00 KM
Market Place £ 000.00 KM
Market Place £ 235,00000.00 KM
Smallbrook Road £ 272,50000.00 KM
Nursery Road £ 000.00 KM

Nearby Listings

AddressPriceTypeScoreDistance
The Gallery Apartments, Gloucester Road, Ross-On-Wye, Herefordshire, HR9 £ 550,000BUY6 / 100.00 KM
Gloucester Road, Ross-on-Wye, Hfds, HR9 £ 225,000BUYUnknown0.01 KM
Corpus Christi Lane, Ross-On-Wye, Herefordshire, HR9 £ 290,000BUY8 / 100.05 KM
Gloucester Road, Ross-on-Wye, HR9 £ 290,000BUY6 / 100.05 KM
Gloucester Road, Ross-On-Wye £ 290,000BUYUnknown0.05 KM

Nearby Properties

AddressPriceDistance
9 Corpus Christi Lane £ 162,5000.04 KM
20 Henry Street £ 120,0000.08 KM
18 Henry Street £ 52,0000.08 KM
17 Henry Street £ 140,0000.08 KM
8 Henry Street £ 168,0000.08 KM