Whyte Avenue, Aldershot, Hampshire, GU12
By Bridges Estate Agents
£ 350,000
Reviews
3 out of 5 stars
Bridges Estate Agents says ..
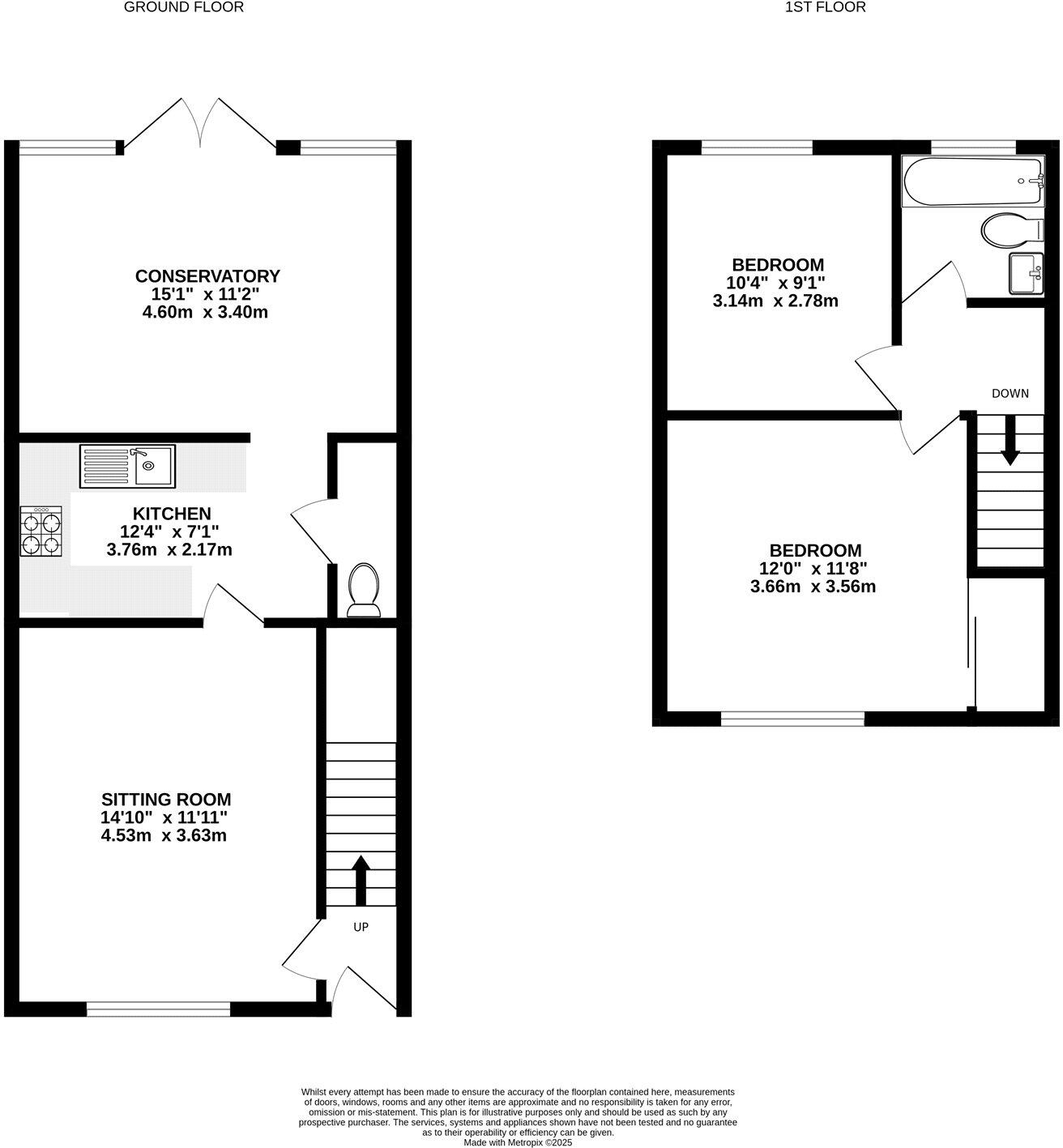
***SOLD PRIOR TO MARKETING, REGISTER INTEREST TO NOT MISS OUT ON SIMILAR PROPERTIES*** A simply stunning family home that has been the subject of many improvements by the current owners, evident in abundance throughout. The property truly has the wow factor and makes a perfect first time fam...
Property Oracle says ..
This end-of-terrace property in Aldershot Park, Rushmoor, Hampshire, presents a well-maintained living space with a modern interior. The house benefits from a good-sized garden, a garage, and a conservatory, adding to its appeal. Its location offers convenient access to local schools and transportation, making it suitable for families and commuters. While the price is above the area average, the property’s condition and features justify the valuation.
Therefore, we give this property 7 / 10. *Disclaimer: This is our option and does constitute a recommendation or financial advice. Do your own research. *
- Price
- 7
- Condition
- 8
- Location
- 7
- Land
- 7
- Bedrooms
- 2
- Bathrooms
- 2
The heatmap indicates the level of crime in the area. The color of the heatmap indicates the crime severity and recency.
Metrics Year-on-Year
- Average area value
- 250,000.00 £Increased by 29.42 %
- Average area rental value
- 833.00 £/moDecreased by 23.08 %
- Est rental Yield
- 4.00 %Decreased by 40.56 %
- Crime Rate
- 15.00 %Unchanged by 0.00 %
Agent Activity
Bridges Estate Agents created the listing.
Nearby Schools
| Name | Type | Ofsted | Distance |
|---|---|---|---|
| Park Primary School | Community School | Good | 0.85 KM |
| Sunflowers Children'S Centre | Children's Centre Linked Site | 1.01 KM | |
| St Michael'S Church Of England Controlled Junior School | Voluntary Controlled School | Requires improvement | 1.10 KM |
| Maple Vue Children'S Centre | Children's Centre | 1.12 KM | |
| Alderwood School | Community School | Good | 1.19 KM |
Images
Nearby Streets
| Name | Average Price | Average Sqft | Distance |
|---|---|---|---|
| Oak Way | £ 0 | 0 | 0.00 KM |
| Blackwater Way | £ 0 | 0 | 0.00 KM |
| Orchard Way | £ 400,000 | 0 | 0.00 KM |
| Chestnut Avenue | £ 385,000 | 0 | 0.00 KM |
| Church Road | £ 395,000 | 0 | 0.00 KM |
Nearby Transport
| Name | NLC | TLC | Distance |
|---|---|---|---|
| Aldershot | 5623 | AHT | 1.94 KM |
| Ash | 5641 | ASH | 3.74 KM |
| North Camp | 5636 | NCM | 4.46 KM |
| Ash Vale | 5547 | AHV | 4.58 KM |
| Farnham | 5545 | FNH | 6.04 KM |
Nearby Listings
| Address | Price | Type | Score | Distance |
|---|---|---|---|---|
| Whyte Avenue, Aldershot, Hampshire, GU12 | £ 350,000 | BUY | 7 / 10 | 0.00 KM |
| Whyte Avenue, Aldershot, Hampshire, GU12 | £ 400,000 | BUY | 6 / 10 | 0.14 KM |
| Allden Avenue, Aldershot, Hampshire, GU12 | £ 375,000 | BUY | 6 / 10 | 0.17 KM |
| Tichborne Place, Aldershot, Hampshire, GU12 | £ 325,000 | BUY | 6 / 10 | 0.19 KM |
| Lower Farnham Road, Aldershot, Hampshire, GU12 | £ 525,000 | BUY | 7 / 10 | 0.23 KM |
Nearby Properties
| Address | Price | Distance |
|---|---|---|
| 30 Whyte Avenue | £ 153,950 | 0.06 KM |
| 55 Whyte Avenue | £ 201,000 | 0.06 KM |
| 61 Whyte Avenue | £ 177,000 | 0.06 KM |
| 41 Whyte Avenue | £ 192,500 | 0.06 KM |
| 34 Whyte Avenue | £ 236,500 | 0.06 KM |