Schoolhayes, Cross Roads, Lewdown, Okehampton
By Bradleys
£ 371,950
Reviews
3 out of 5 stars
Bradleys says ..
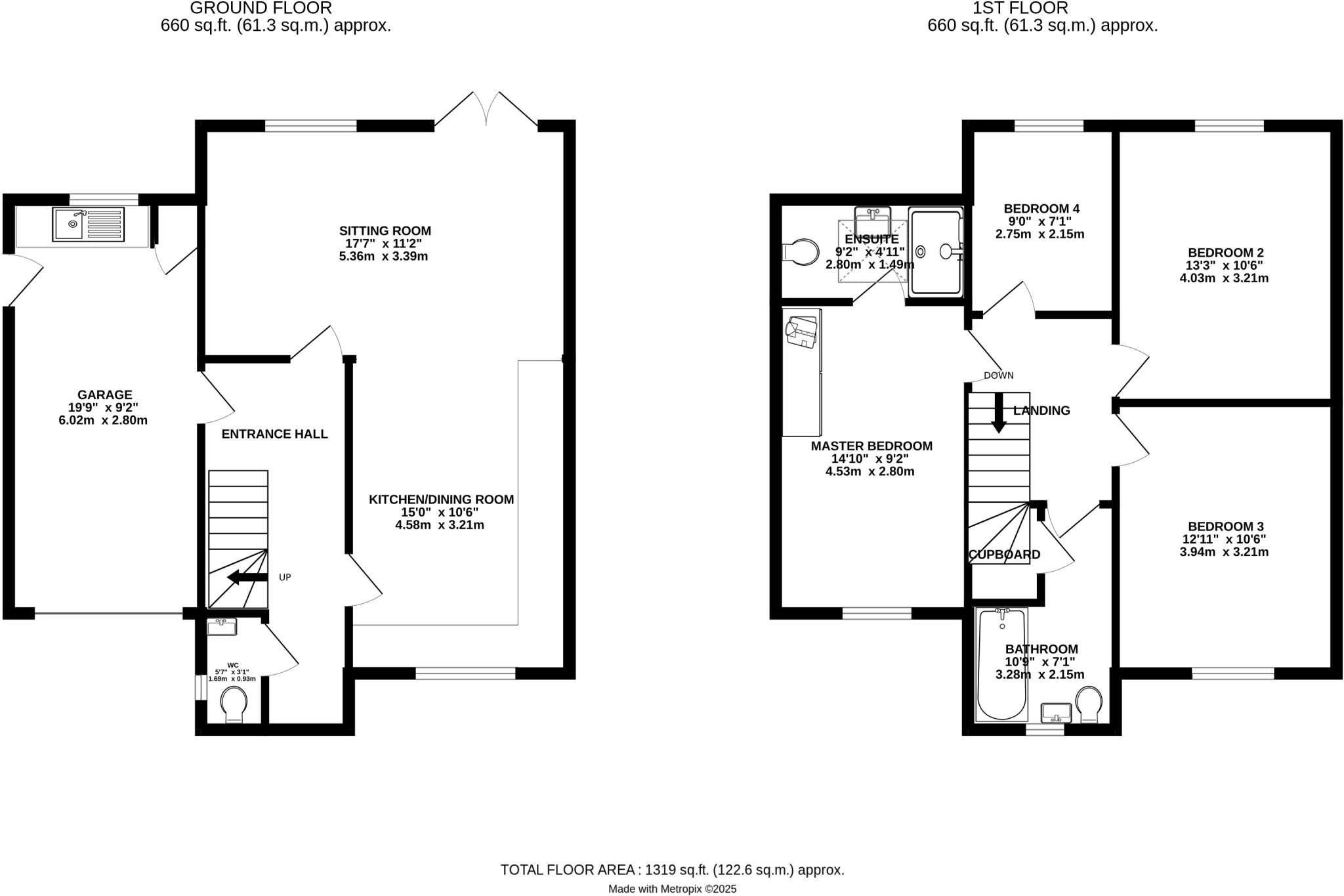
An "A" Rated 4 Bedroom Detached Family Home with AIr Source Heat Pump to both underfloor heating and radiators. Photo Voltaics. Offered With Vacant Possession. Situated in a small cul de sac of Similar properties on the edge of the popular West Devon Village, a short walk from...
Property Oracle says ..
This is a modern detached house located in a rural area near Lewdown, Devon. The property features four bedrooms and two bathrooms, making it suitable for families. The interior is well-presented with a modern kitchen and bathroom. While the garden is present, it is mostly gravelled and could benefit from landscaping. The property is close to a primary school, which is a plus for families with children. The price is slightly above the local average, but the property offers a good amount of space and is in good condition. Overall, this property would likely appeal to buyers seeking a modern home in a quiet, rural setting. Potential buyers should consider the distance to amenities and the scope for improving the garden.
Therefore, we give this property 6 / 10. *Disclaimer: This is our option and does constitute a recommendation or financial advice. Do your own research. *
- Price
- 7
- Condition
- 8
- Location
- 6
- Land
- 5
- Bedrooms
- 4
- Bathrooms
- 2
- Sqft (est)
- 1,319.00
The heatmap indicates the level of crime in the area. The color of the heatmap indicates the crime severity and recency.
Metrics Year-on-Year
- Average area value
- 293,023.00 £Increased by 0.76 %
- Est sale value
- 379,872.00 £Decreased by 20.00 %
- Average area rental value
- 1,170.00 £/moIncreased by 31.61 %
- Est letting value
- 1,319.00 £/moUnchanged by 0.00 %
- Est rental Yield
- 4.79 %Increased by 30.52 %
- Crime Rate
- 105.00 %Unchanged by 0.00 %
Agent Activity
Bradleys created the listing.
Nearby Schools
| Name | Type | Ofsted | Distance |
|---|---|---|---|
| Lew Trenchard Church Of England Primary School | Academy Converter | Good | 0.14 KM |
| Lydford Primary School | Academy Converter | 9.27 KM | |
| Bridestowe Primary School | Academy Converter | 9.35 KM | |
| Boasley Cross Community Primary School | Academy Converter | 9.61 KM | |
| Lamerton Church Of England Voluntary Controlled Primary School | Voluntary Controlled School | Good | 9.89 KM |
Images
Nearby Streets
| Name | Average Price | Average Sqft | Distance |
|---|---|---|---|
| Brentor View | £ 0 | 0 | 0.00 KM |
| Woodlands | £ 575,000 | 0 | 0.00 KM |
| Lewhaven Close | £ 0 | 0 | 0.00 KM |
| Leafy Land | £ 475,000 | 0 | 0.00 KM |
| Kings Way | £ 0 | 0 | 0.00 KM |
Nearby Listings
| Address | Price | Type | Score | Distance |
|---|---|---|---|---|
| Schoolhayes, Cross Roads, Lewdown, Okehampton | £ 371,950 | BUY | 6 / 10 | 0.00 KM |
| Cross Roads, Lewdown | £ 400,000 | BUY | 6 / 10 | 0.00 KM |
| Schoolhayes, Lewdown, Devon, EX20 | £ 389,950 | BUY | 7 / 10 | 0.01 KM |
| Schoolhayes, Lewdown, EX20. | £ 395,000 | BUY | 8 / 10 | 0.01 KM |
| 5 Schoolhayes, Cross Roads, Devon, EX20 4FF | £ 285,000 | BUY | 6 / 10 | 0.01 KM |
Nearby Properties
| Address | Price | Distance |
|---|---|---|
| Pippins | £ 345,000 | 0.10 KM |
| The Old Rectory | £ 935,000 | 0.71 KM |
| 6 Baring Court | £ 249,950 | 0.96 KM |
| 4 Baring Court | £ 249,000 | 0.98 KM |
| 9 Baring Court | £ 275,500 | 0.98 KM |