BR
Station Road, Frimley, Camberley, Surrey, GU16
By Bridges Estate Agents
£ 850,000
Reviews
3 out of 5 stars
Bridges Estate Agents says ..
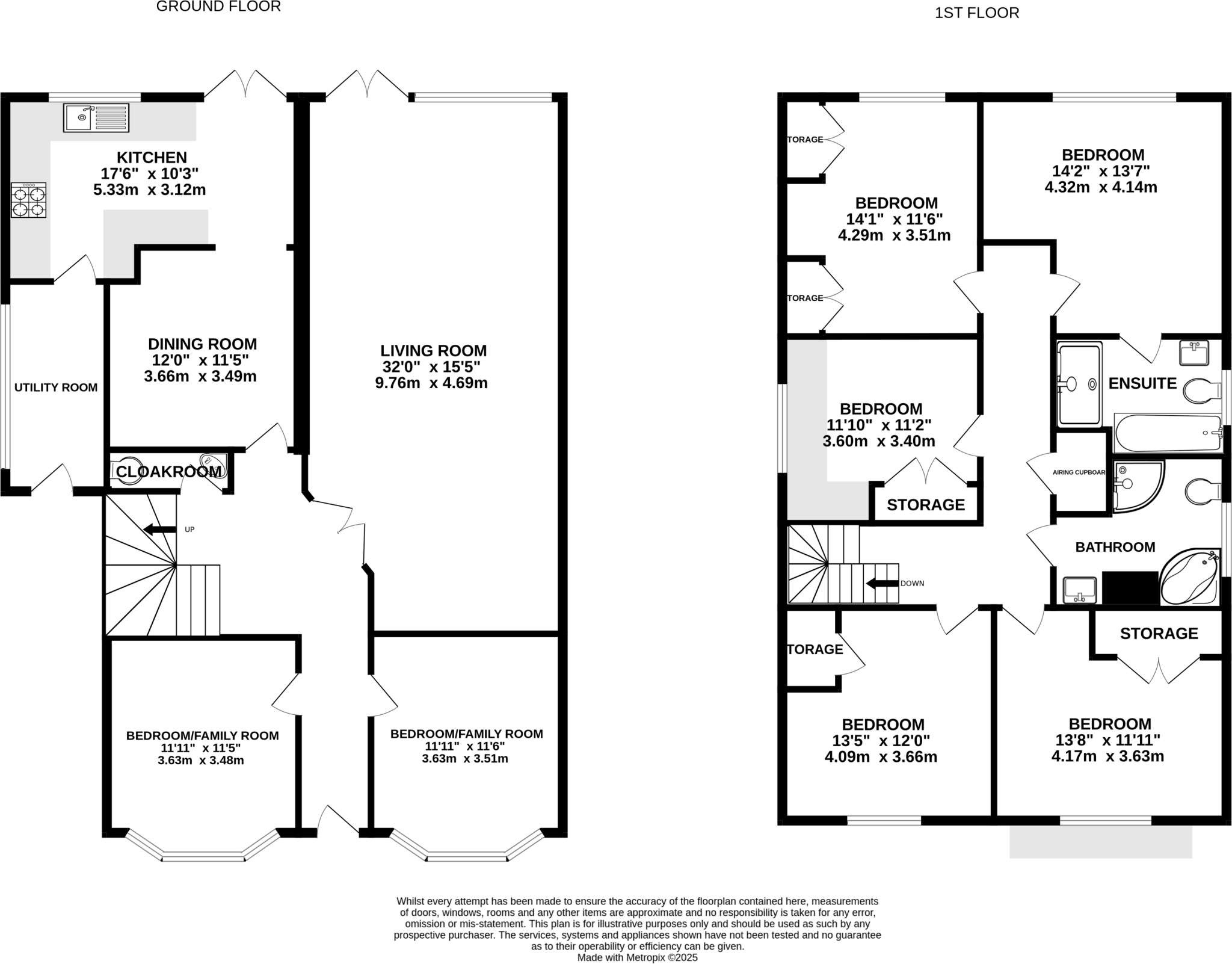
Bridges Estate Agents in Frimley are proud to offer to the market this versatile five double bedroom detached house for the first time since new. This property is conveniently located within a quiet residential road, just a short walk from Frimley High Street. The property sits on the biggest plo...
Property Oracle says ..
Therefore, we give this property 6 / 10. *Disclaimer: This is our option and does constitute a recommendation or financial advice. Do your own research. *
- Price
- 6
- Condition
- 4
- Location
- 8
- Land
- 8
- Bedrooms
- 5
- Bathrooms
- 2
- Sqft (est)
- 1,731.63
The heatmap indicates the level of crime in the area. The color of the heatmap indicates the crime severity and recency.
Metrics Year-on-Year
- Average area value
- 362,500.00 £Decreased by 23.04 %
- Est sale value
- 704,773.41 £Increased by 10.00 %
- Average area rental value
- 2,625.00 £/moIncreased by 52.17 %
- Est letting value
- 3,463.26 £/moIncreased by 100.00 %
- Est rental Yield
- 8.69 %Increased by 97.95 %
- Crime Rate
- 6.00 %Unchanged by 0.00 %
from 471,043.00 £
from 640,703.10 £
from 1,725.00 £/mo
from 1,731.63 £/mo
from 4.39 %
from 6.00 %
Agent Activity
Bridges Estate Agents created the listing.
Nearby Schools
| Name | Type | Ofsted | Distance |
|---|---|---|---|
| Kings International College | Foundation School | Good | 0.97 KM |
| The Orchard Sure Start Children'S Centre | Children's Centre | 1.06 KM | |
| South Camberley Primary And Nursery School | Academy Converter | 1.13 KM | |
| The Sixth Form College Farnborough | Academy 16-19 Converter | Outstanding | 1.34 KM |
| Henry Tyndale School | Community Special School | Outstanding | 1.39 KM |
Images
Nearby Streets
| Name | Average Price | Average Sqft | Distance |
|---|---|---|---|
| Footpath 197 | £ 0 | 0 | 0.00 KM |
| Gilbert Road Footpath | £ 0 | 0 | 0.00 KM |
| Portsmouth Road | £ 562,500 | 0 | 0.00 KM |
| Woodside | £ 0 | 0 | 0.00 KM |
| The Grove | £ 0 | 0 | 0.00 KM |
Nearby Transport
| Name | NLC | TLC | Distance |
|---|---|---|---|
| Frimley | 5683 | FML | 0.29 KM |
| Farnborough North | 5688 | FNN | 1.46 KM |
| Farnborough (Main) | 5521 | FNB | 2.12 KM |
| Camberley | 5682 | CAM | 2.51 KM |
| Blackwater | 5625 | BAW | 3.70 KM |
Nearby Listings
| Address | Price | Type | Score | Distance |
|---|---|---|---|---|
| Station Road, Frimley, Camberley, Surrey, GU16 | £ 850,000 | BUY | 6 / 10 | 0.00 KM |
| Station Road, Frimley, Camberley, Surrey, GU16 | £ 675,000 | BUY | 8 / 10 | 0.08 KM |
| Station Road, Frimley, Camberley, Surrey, GU16 | £ 200,000 | BUY | 7 / 10 | 0.10 KM |
| The Close, Frimley, GU16 | £ 525,000 | BUY | 6 / 10 | 0.17 KM |
| The Close, Frimley, Camberley, Surrey, GU16 | £ 525,000 | BUY | 7 / 10 | 0.23 KM |
Nearby Properties
| Address | Price | Distance |
|---|---|---|
| 16 Station Road | £ 455,000 | 0.03 KM |
| 50 Station Road | £ 390,000 | 0.03 KM |
| 46 Station Road | £ 332,000 | 0.03 KM |
| 42 Station Road | £ 525,000 | 0.03 KM |
| 40 Station Road | £ 245,000 | 0.03 KM |