Coultons says ..
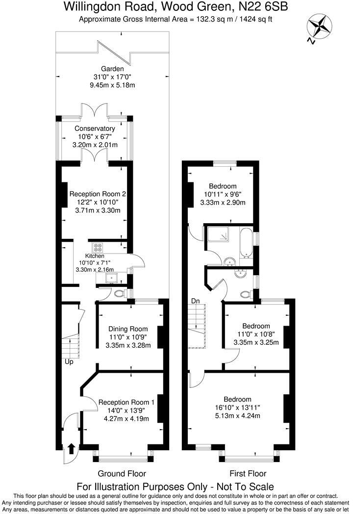
Situated on a quiet and sought after residential road is this mid terraced period house which occupies 1424sqft (132.3sqm). The property benefits from three double bedrooms, three reception rooms, a fitted kitchen, first floor bathroom with separate WC along with a ground floor WC, conservatory a...
Property Oracle says ..
Therefore, we give this property 5 / 10. *Disclaimer: This is our option and does constitute a recommendation or financial advice. Do your own research. *
- Price
- 6
- Condition
- 3
- Location
- 7
- Land
- 7
- Bedrooms
- 3
- Bathrooms
- 1
- Sqft (est)
- 1,570.66
The heatmap indicates the level of crime in the area. The color of the heatmap indicates the crime severity and recency.
Metrics Year-on-Year
- Average area value
- 514,286.00 £Decreased by 0.49 %
- Est sale value
- 1,091,608.70 £Increased by 4.83 %
- Average area rental value
- 1,644.00 £/moDecreased by 18.33 %
- Est letting value
- 3,141.32 £/moUnchanged by 0.00 %
- Est rental Yield
- 3.84 %Decreased by 17.77 %
- Crime Rate
- 2.00 %Unchanged by 0.00 %
from 516,812.00 £
from 1,041,347.58 £
from 2,013.00 £/mo
from 3,141.32 £/mo
from 4.67 %
from 2.00 %
Agent Activity
Coultons created the listing.
Nearby Schools
| Name | Type | Ofsted | Distance |
|---|---|---|---|
| Noel Park Primary School | Academy Sponsor Led | Outstanding | 0.37 KM |
| Noel Park Children'S Centre | Children's Centre | 0.57 KM | |
| The Grove | Free Schools Special | 0.64 KM | |
| Belmont Infant School | Community School | Good | 0.72 KM |
| Belmont Junior School | Community School | Outstanding | 0.72 KM |
Images
Nearby Streets
| Name | Average Price | Average Sqft | Distance |
|---|---|---|---|
| Coldham Court | £ 300,000 | 0 | 0.00 KM |
| Mosaic Circle | £ 0 | 0 | 0.00 KM |
| Acacia Road | £ 0 | 0 | 0.00 KM |
| Erin Mews | £ 650,000 | 0 | 0.00 KM |
| Elm Road | £ 525,000 | 0 | 0.00 KM |
Nearby Transport
| Name | NLC | TLC | Distance |
|---|---|---|---|
| Hornsey | 6015 | HRN | 1.48 KM |
| Harringay Green Lanes | 7401 | HRY | 1.83 KM |
| Harringay | 6012 | HGY | 1.86 KM |
| Alexandra Palace | 6025 | AAP | 2.23 KM |
| Bowes Park | 6027 | BOP | 2.68 KM |
Nearby Listings
| Address | Price | Type | Score | Distance |
|---|---|---|---|---|
| Willingdon Road, Wood Green, N22 | £ 725,000 | BUY | 5 / 10 | 0.00 KM |
| Willingdon Road, London | £ 450,000 | BUY | 7 / 10 | 0.00 KM |
| Willingdon Road, London, N22 | £ 565,000 | BUY | 7 / 10 | 0.03 KM |
| Cobham Road, Wood Green, London, N22 | £ 475,000 | BUY | 7 / 10 | 0.09 KM |
| Cobham Road, London, N22 | £ 395,000 | BUY | 5 / 10 | 0.09 KM |
Nearby Properties
| Address | Price | Distance |
|---|---|---|
| 10b Willingdon Road | £ 428,000 | 0.00 KM |
| 30 Willingdon Road | £ 280,000 | 0.00 KM |
| 6b Willingdon Road | £ 390,000 | 0.00 KM |
| 24 Willingdon Road | £ 270,000 | 0.00 KM |
| 40 Willingdon Road | £ 730,000 | 0.00 KM |