BL
Orchard Street, Newport, NP19
By Bluestone Sales and Lettings
£ 248,000
Reviews
3 out of 5 stars
Bluestone Sales and Lettings says ..
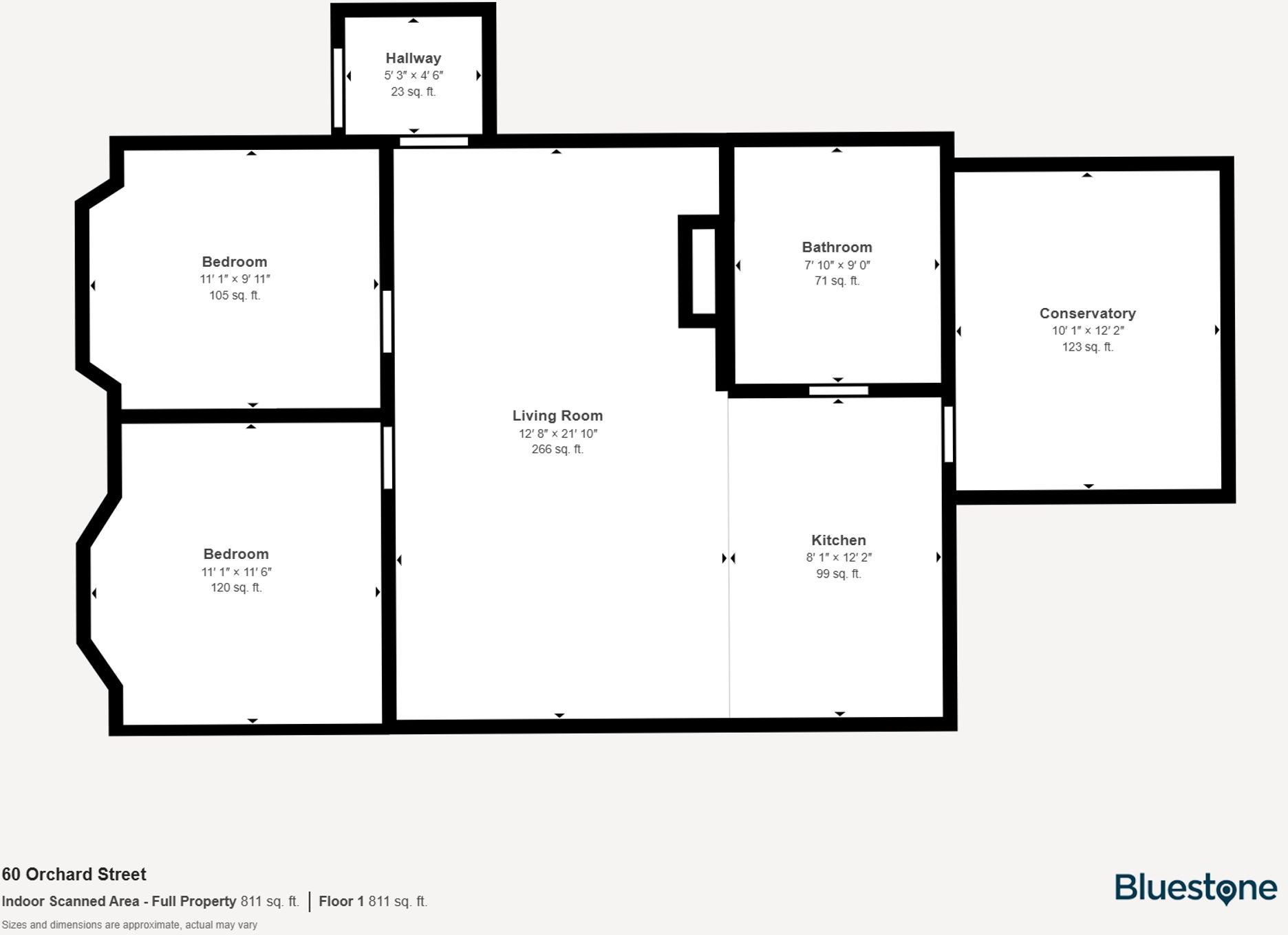
*BEAUTIFULLY RENOVATED BUNGALOW* Welcome to this wonderful home offering attractive open plan living and within walking distance to many local amenities, schools and parks.
Property Oracle says ..
Therefore, we give this property 7 / 10. *Disclaimer: This is our option and does constitute a recommendation or financial advice. Do your own research. *
- Price
- 8
- Condition
- 8
- Location
- 7
- Land
- 7
- Bedrooms
- 2
- Bathrooms
- 1
- Sqft (est)
- 811.00
The heatmap indicates the level of crime in the area. The color of the heatmap indicates the crime severity and recency.
Metrics Year-on-Year
- Average area value
- 360,833.00 £Decreased by 13.57 %
- Est sale value
- 284,661.00 £Decreased by 9.07 %
- Average area rental value
- 1,178.00 £/moIncreased by 8.17 %
- Est letting value
- 811.00 £/moUnchanged by 0.00 %
- Est rental Yield
- 3.92 %Increased by 25.24 %
- Crime Rate
- 8.00 %Unchanged by 0.00 %
from 417,504.00 £
from 313,046.00 £
from 1,089.00 £/mo
from 811.00 £/mo
from 3.13 %
from 8.00 %
Agent Activity
Bluestone Sales and Lettings created the listing.
Nearby Schools
| Name | Type | Ofsted | Distance |
|---|---|---|---|
| Newport Nursery School | Welsh Establishment | 0.66 KM | |
| St Julian'S School | Welsh Establishment | 0.84 KM | |
| St Joseph'S R.C. Primary School | Welsh Establishment | 0.92 KM | |
| Maindee C.P. School | Welsh Establishment | 1.32 KM | |
| Crindau Junior & Infant School | Welsh Establishment | 1.32 KM |
Images
Nearby Streets
| Name | Average Price | Average Sqft | Distance |
|---|---|---|---|
| Stafford Road | £ 195,000 | 0 | 0.00 KM |
| Margaret Avenue | £ 190,833 | 0 | 0.00 KM |
| Charnwood Road | £ 190,000 | 0 | 0.00 KM |
| Orchard Street | £ 189,625 | 0 | 0.00 KM |
| Oak Street | £ 200,000 | 0 | 0.00 KM |
Nearby Transport
| Name | NLC | TLC | Distance |
|---|---|---|---|
| Newport (South Wales) | 3674 | NWP | 2.12 KM |
| Pye Corner | 1663 | PYE | 6.27 KM |
| Cwmbran | 3738 | CWM | 7.32 KM |
| Rogerstone | 9921 | ROR | 9.12 KM |
Nearby Listings
| Address | Price | Type | Score | Distance |
|---|---|---|---|---|
| Orchard Street, Newport, NP19 | £ 248,000 | BUY | 7 / 10 | 0.00 KM |
| Orchard Court, Caerleon Road | £ 129,950 | BUY | 7 / 10 | 0.04 KM |
| Stafford Road, Newport | £ 195,000 | BUY | 6 / 10 | 0.05 KM |
| Orchard Mews, Newport | £ 160,000 | BUY | 7 / 10 | 0.09 KM |
| Margaret Avenue, Newport, NP19 | £ 195,000 | BUY | 6 / 10 | 0.12 KM |
Nearby Properties
| Address | Price | Distance |
|---|---|---|
| 25 Orchard Street | £ 115,000 | 0.01 KM |
| 24 Orchard Street | £ 168,000 | 0.01 KM |
| 58 Orchard Street | £ 83,000 | 0.01 KM |
| 50 Orchard Street | £ 187,500 | 0.01 KM |
| 42 Orchard Street | £ 166,000 | 0.01 KM |