Stanford Road, Brighton
By Kendrick Property Services
£ 3,000
Kendrick Property Services says ..
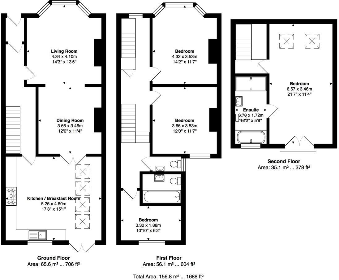
Nestled on Stanford Road in the vibrant city of Brighton, this charming four-bedroom terraced family home offers a perfect blend of comfort and convenience. With its prime location, residents will find themselves just a short stroll away from Brighton Station, making commuting a breeze. ...
- Bedrooms
- 4
- Bathrooms
- 2
The heatmap indicates the level of crime in the area. The color of the heatmap indicates the crime severity and recency.
Metrics Year-on-Year
- Average area value
- 480,963.00 £Decreased by 15.91 %
- Average area rental value
- 1,853.00 £/moIncreased by 4.10 %
- Est rental Yield
- 4.62 %Increased by 23.86 %
- Crime Rate
- 1.00 %Unchanged by 0.00 %
from 571,968.00 £
from 1,780.00 £/mo
from 3.73 %
from 1.00 %
Agent Activity
Kendrick Property Services created the listing.
Nearby Schools
| Name | Type | Ofsted | Distance |
|---|---|---|---|
| Stanford Junior School | Community School | Good | 0.04 KM |
| Brighton Hove And Sussex Sixth Form College | Further Education | Outstanding | 0.42 KM |
| Stanford Infant School | Community School | Outstanding | 0.47 KM |
| Windlesham School | Other Independent School | 0.49 KM | |
| Brighton Girls Gdst | Other Independent School | 1.06 KM |
Images
Nearby Streets
| Name | Average Price | Average Sqft | Distance |
|---|---|---|---|
| Belmont | £ 220,000 | 0 | 0.00 KM |
| Dyke Road | £ 900,000 | 0 | 0.00 KM |
| Front Road | £ 0 | 0 | 0.00 KM |
| New England Road | £ 0 | 0 | 0.00 KM |
| Windlesham Avenue | £ 0 | 0 | 0.00 KM |
Nearby Transport
| Name | NLC | TLC | Distance |
|---|---|---|---|
| Brighton | 5268 | BTN | 1.08 KM |
| London Road (Brighton) | 5281 | LRB | 1.28 KM |
| Preston Park | 5285 | PRP | 1.36 KM |
| Hove | 5273 | HOV | 2.51 KM |
| Moulsecoomb | 5312 | MCB | 3.44 KM |
Nearby Listings
| Address | Price | Type | Score | Distance |
|---|---|---|---|---|
| Stanford Road, Brighton | £ 3,000 | RENT | Unknown | 0.00 KM |
| Coventry Street, Brighton | £ 2,860 | RENT | Unknown | 0.06 KM |
| Coventry Street , Brighton | £ 2,275 | RENT | Unknown | 0.06 KM |
| Coventry Street, Brighton, BN1 | £ 2,850 | RENT | Unknown | 0.06 KM |
| Upper Hamilton Road, Brighton | £ 1,250 | RENT | Unknown | 0.11 KM |
Nearby Properties
| Address | Price | Distance |
|---|---|---|
| 83 Stanford Road | £ 95,000 | 0.03 KM |
| 63 Stanford Road | £ 136,034 | 0.03 KM |
| 95 Stanford Road | £ 499,950 | 0.03 KM |
| 54 Stanford Road | £ 285,000 | 0.03 KM |
| 69 Stanford Road | £ 667,000 | 0.03 KM |