Mansfield Road, Doncaster, South Yorkshire, DN4
By Your Move
£ 80,000
Reviews
3 out of 5 stars
Your Move says ..
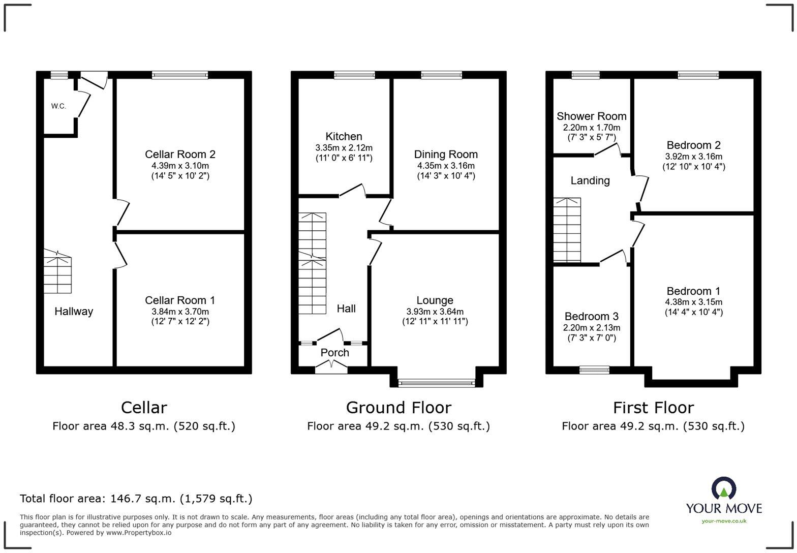
RENOVATION PROJECT FOR SALE VIA THE MODERN METHOD OF AUCTION. ATTENTION DEVELOPERS!!!!! Here's your next refurb project. This three storey mid terrace home, having majority new plaster work throughout. Bursting with potential and is situated close to the City Centre within Balby. Offered with NO...
Property Oracle says ..
This is a terraced property on Mansfield Road, Doncaster, presenting a significant renovation opportunity. While the property requires extensive work, it benefits from a large garden and a relatively convenient location near local amenities and transportation links. The property is located close to local schools such as St Francis Xavier Catholic Primary School. The listing price of £80,000 reflects the condition of the property and offers potential for value appreciation upon completion of renovations. The average price on Mansfield Road is £80,000, but the average price in Doncaster is £464,990.
Therefore, we give this property 6 / 10. *Disclaimer: This is our option and does constitute a recommendation or financial advice. Do your own research. *
- Price
- 9
- Condition
- 2
- Location
- 6
- Land
- 7
- Bedrooms
- 3
- Bathrooms
- 1
- Sqft (est)
- 1,579.07
The heatmap indicates the level of crime in the area. The color of the heatmap indicates the crime severity and recency.
Metrics Year-on-Year
- Average area value
- 464,990.00 £Increased by 12.84 %
- Est sale value
- 787,955.93 £Increased by 45.06 %
- Average area rental value
- 1,081.00 £/moDecreased by 23.22 %
- Est letting value
- 1,579.07 £/moUnchanged by 0.00 %
- Est rental Yield
- 2.79 %Decreased by 31.95 %
- Crime Rate
- 7.00 %Unchanged by 0.00 %
Agent Activity
Your Move created the listing.
Nearby Schools
| Name | Type | Ofsted | Distance |
|---|---|---|---|
| St Francis Xavier Catholic Primary School | Voluntary Aided School | Good | 0.21 KM |
| Balby Central Primary Academy | Academy Converter | Requires improvement | 0.52 KM |
| Atlas Academy | Academy Sponsor Led | 0.86 KM | |
| Central Children'S Centre | Children's Centre | 0.88 KM | |
| Harrison College | Special Post 16 Institution | 1.17 KM |
Images
Nearby Streets
| Name | Average Price | Average Sqft | Distance |
|---|---|---|---|
| Stewart Street | £ 80,000 | 0 | 0.00 KM |
| Galopin Drive | £ 0 | 0 | 0.00 KM |
| West Street | £ 80,000 | 0 | 0.00 KM |
| Crozier Drive | £ 0 | 0 | 0.00 KM |
| Portland Place | £ 0 | 0 | 0.00 KM |
Nearby Transport
| Name | NLC | TLC | Distance |
|---|---|---|---|
| Doncaster | 6417 | DON | 1.07 KM |
| Bentley (South Yorkshire) | 8352 | BYK | 3.59 KM |
| Adwick | 8353 | AWK | 7.84 KM |
| Kirk Sandall | 6527 | KKS | 9.44 KM |
Nearby Listings
| Address | Price | Type | Score | Distance |
|---|---|---|---|---|
| Mansfield Road, Doncaster, South Yorkshire, DN4 | £ 80,000 | BUY | 6 / 10 | 0.00 KM |
| Mansfield Road, Doncaster, South Yorkshire, DN4 | £ 109,950 | BUY | Unknown | 0.11 KM |
| Bainbridge Road, Balby, Doncaster | £ 120,000 | BUY | 5 / 10 | 0.14 KM |
| Bainbridge Road, Balby, Doncaster | £ 140,000 | BUY | Unknown | 0.14 KM |
| Mansfield Road, Doncaster, DN4 | £ 189,995 | BUY | 6 / 10 | 0.14 KM |
Nearby Properties
| Address | Price | Distance |
|---|---|---|
| 44 Mansfield Road | £ 85,000 | 0.06 KM |
| 47 Mansfield Road | £ 97,500 | 0.06 KM |
| 29 Mansfield Road | £ 64,950 | 0.06 KM |
| 41 Mansfield Road | £ 77,500 | 0.06 KM |
| 35 Mansfield Road | £ 100,000 | 0.06 KM |