Ben Rose says ..
Ben Rose Estate Agents are delighted to present this charming, traditionally styled mid-terraced property, situated in the highly desirable residential area of Coppull, Chorley. Perfectly suited to first-time buyers seeking a peaceful, semi-rural setting, the property offers an ideal balance betw...
Property Oracle says ..
This two-bedroom terraced house in Coppull, Chorley is listed at £154,995. The property benefits from a modern kitchen and bathroom, and what appears to be a well-maintained garden. The location is relatively quiet, with nearby schools and train stations. However, the average house price in the area is significantly higher, suggesting this property may be undervalued or require further consideration. More information on the plot size would be beneficial to provide a more comprehensive analysis.
Therefore, we give this property 6 / 10. *Disclaimer: This is our option and does constitute a recommendation or financial advice. Do your own research. *
- Price
- 6
- Condition
- 7
- Location
- 7
- Land
- 6
- Bedrooms
- 2
- Bathrooms
- 1
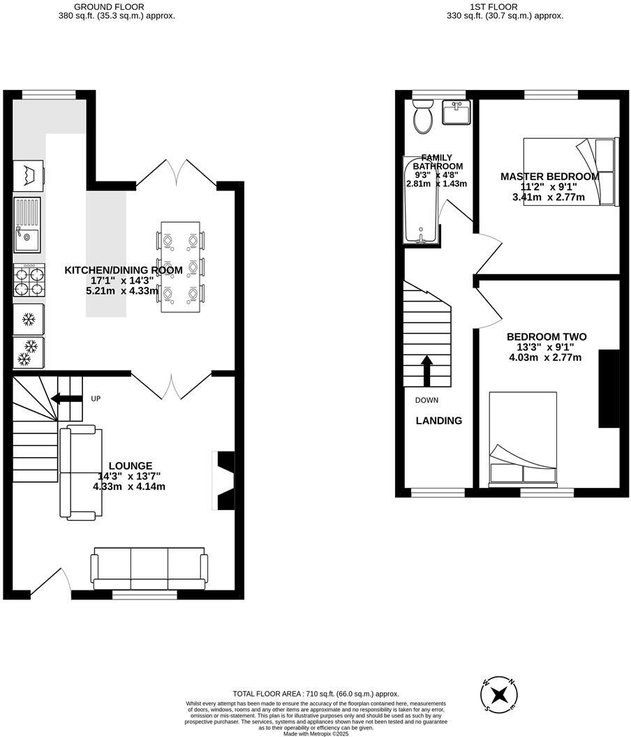
- Sqft (est)
- 710.42
The heatmap indicates the level of crime in the area. The color of the heatmap indicates the crime severity and recency.
Metrics Year-on-Year
- Average area value
- 445,205.00 £Decreased by 3.69 %
- Est sale value
- 458,220.90 £Increased by 20.34 %
- Average area rental value
- 1,836.00 £/moIncreased by 4.79 %
- Est letting value
- 1,420.84 £/moUnchanged by 0.00 %
- Est rental Yield
- 4.95 %Increased by 8.79 %
- Crime Rate
- 0.00 %
Agent Activity
Ben Rose created the listing.
Nearby Schools
| Name | Type | Ofsted | Distance |
|---|---|---|---|
| Adlington Primary School | Community School | Good | 2.55 KM |
| Holy Cross Catholic High School | Voluntary Aided School | Good | 3.05 KM |
| Coppull Parish Church Of England Primary School | Voluntary Aided School | Good | 3.12 KM |
| Library Children'S Centre | Children's Centre | 3.26 KM | |
| St Gregory'S Catholic Primary School, Chorley | Voluntary Aided School | Good | 3.39 KM |
Images
Nearby Streets
| Name | Average Price | Average Sqft | Distance |
|---|---|---|---|
| Grundy's Lane | £ 450,000 | 0 | 0.00 KM |
| Sandy Lane | £ 699,995 | 0 | 0.00 KM |
Nearby Transport
| Name | NLC | TLC | Distance |
|---|---|---|---|
| Adlington (Lancashire) | 2641 | ADL | 3.15 KM |
| Chorley | 2745 | CRL | 4.73 KM |
| Blackrod | 2732 | BLK | 7.15 KM |
| Euxton Balshaw Lane | 2080 | EBA | 7.17 KM |
| Wigan Wallgate | 2406 | WGW | 7.28 KM |
Nearby Listings
| Address | Price | Type | Score | Distance |
|---|---|---|---|---|
| Wigan Lane, Coppull, Chorley | £ 154,995 | BUY | 6 / 10 | 0.00 KM |
| Wigan Lane, Coppull, Chorley | £ 129,995 | BUY | 7 / 10 | 0.07 KM |
| Wigan Lane, Coppull, Chorley | £ 159,950 | BUY | 6 / 10 | 0.12 KM |
| Bores Meadow, Standish, Wigan | £ 1,100,000 | BUY | 8 / 10 | 1.09 KM |
| Castle Drive, Adlington, Chorley, Lancashire, PR7 | £ 275,000 | BUY | 6 / 10 | 1.40 KM |
Nearby Properties
| Address | Price | Distance |
|---|---|---|
| 6 Wigan Lane | £ 97,000 | 0.07 KM |
| 12 Wigan Lane | £ 125,000 | 0.07 KM |
| 25 Wigan Lane | £ 119,000 | 0.07 KM |
| 43 Wigan Lane | £ 210,000 | 0.07 KM |
| 33 Wigan Lane | £ 146,000 | 0.07 KM |