Quantrills says ..
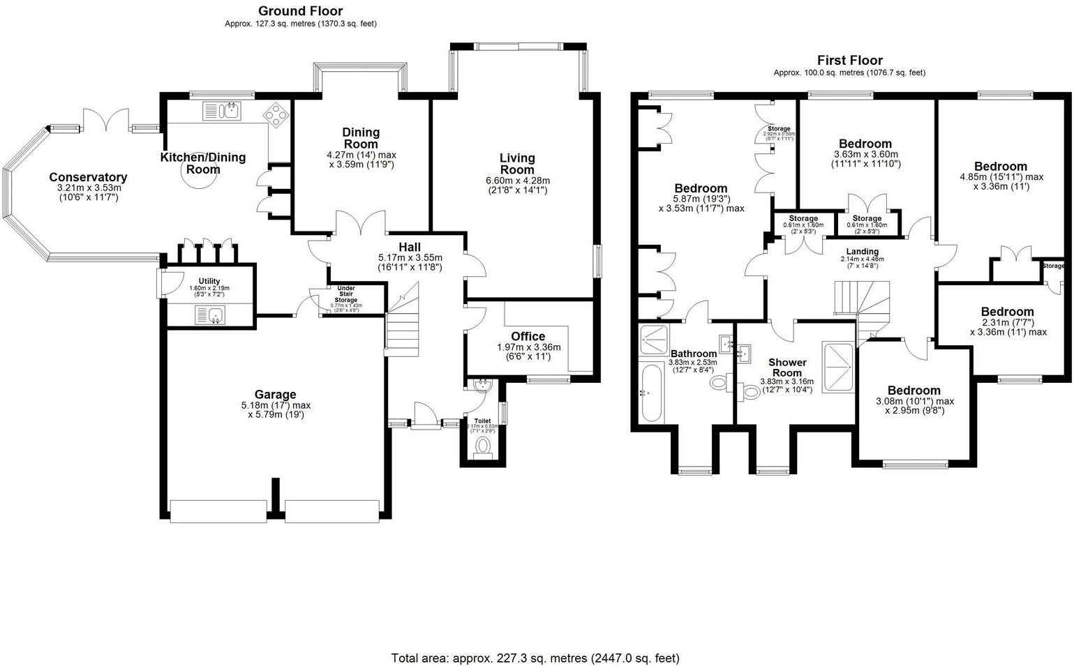
A delightfully situated well presented modern detached family residence occupying a sought after location close to the Town Centre and backing onto Sutton Park. The well presented spaciously arranged family accommodation with double glazing throughout, gas central heating and many attractive m...
Property Oracle says ..
Therefore, we give this property 8 / 10. *Disclaimer: This is our option and does constitute a recommendation or financial advice. Do your own research. *
- Price
- 7
- Condition
- 8
- Location
- 9
- Land
- 8
- Bedrooms
- 5
- Bathrooms
- 2
- Sqft (est)
- 2,366.77
The heatmap indicates the level of crime in the area. The color of the heatmap indicates the crime severity and recency.
Metrics Year-on-Year
- Average area value
- 464,990.00 £Increased by 12.84 %
- Est sale value
- 1,181,018.23 £Increased by 45.06 %
- Average area rental value
- 1,081.00 £/moDecreased by 23.22 %
- Est letting value
- 2,366.77 £/moUnchanged by 0.00 %
- Est rental Yield
- 2.79 %Decreased by 31.95 %
- Crime Rate
- 1.00 %Unchanged by 0.00 %
from 412,073.00 £
from 814,168.88 £
from 1,408.00 £/mo
from 2,366.77 £/mo
from 4.10 %
from 1.00 %
Agent Activity
Quantrills created the listing.
Nearby Schools
| Name | Type | Ofsted | Distance |
|---|---|---|---|
| Bishop Vesey'S Grammar School | Academy Converter | Outstanding | 1.37 KM |
| St Joseph'S Catholic Primary School | Academy Converter | 1.47 KM | |
| Coppice Primary School | Foundation School | Good | 1.55 KM |
| Langley School | Foundation Special School | Good | 1.58 KM |
| Holland House Infant School And Nursery | Children's Centre | 1.85 KM |
Images
Nearby Streets
| Name | Average Price | Average Sqft | Distance |
|---|---|---|---|
| Midland Road | £ 700,000 | 0 | 0.00 KM |
| Richmond Road | £ 945,000 | 0 | 0.00 KM |
| Wentworth Road | £ 2,150,000 | 0 | 0.00 KM |
| Ravenswood Close | £ 1,250,000 | 0 | 0.00 KM |
| Station Approach | £ 785,000 | 0 | 0.00 KM |
Nearby Transport
| Name | NLC | TLC | Distance |
|---|---|---|---|
| Sutton Coldfield | 1044 | SUT | 1.21 KM |
| Four Oaks | 1042 | FOK | 1.26 KM |
| Butlers Lane | 1179 | BUL | 2.50 KM |
| Wylde Green | 1138 | WYL | 2.76 KM |
| Chester Road | 1130 | CRD | 3.87 KM |
Nearby Listings
| Address | Price | Type | Score | Distance |
|---|---|---|---|---|
| Tudor Hill, Sutton Coldfield | £ 950,000 | BUY | 8 / 10 | 0.00 KM |
| Anderton Close, Four Oaks | £ 1,250,000 | BUY | 7 / 10 | 0.15 KM |
| Park View, Sutton Coldfield | £ 425,000 | BUY | 7 / 10 | 0.20 KM |
| Park View, Sutton Coldfield, West Midlands, B73 | £ 425,000 | BUY | 6 / 10 | 0.20 KM |
| Thomas De Beauchamp Lane Sutton Coldfield, West Midlands, B73 6DF | £ 950,000 | BUY | 8 / 10 | 0.22 KM |
Nearby Properties
| Address | Price | Distance |
|---|---|---|
| 62 Tudor Hill | £ 450,000 | 0.01 KM |
| 41 Tudor Hill | £ 700,000 | 0.01 KM |
| 49 Tudor Hill | £ 665,000 | 0.01 KM |
| 43 Tudor Hill | £ 555,000 | 0.01 KM |
| 51 Tudor Hill | £ 470,000 | 0.01 KM |