Send Road, Send, Woking, Surrey, GU23
By Bourne
£ 290,000
Reviews
4 out of 5 stars
Bourne says ..
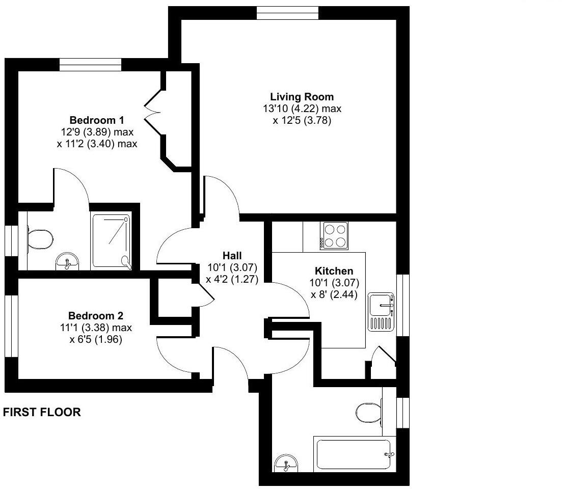
A beautifully refurbished two-bedroom apartment with en-suite, landscaped communal gardens, and allocated parking, situated in the heart of Send village.
Property Oracle says ..
Therefore, we give this property 8 / 10. *Disclaimer: This is our option and does constitute a recommendation or financial advice. Do your own research. *
- Price
- 10
- Condition
- 9
- Location
- 7
- Land
- 7
- Bedrooms
- 2
- Bathrooms
- 2
- Sqft (est)
- 1,582.29
The heatmap indicates the level of crime in the area. The color of the heatmap indicates the crime severity and recency.
Metrics Year-on-Year
- Average area value
- 757,475.00 £Decreased by 11.96 %
- Est sale value
- 1,544,315.04 £Increased by 66.84 %
- Average area rental value
- 2,675.00 £/moIncreased by 11.74 %
- Est letting value
- 4,746.87 £/moIncreased by 200.00 %
- Est rental Yield
- 4.24 %Increased by 26.95 %
- Crime Rate
- 30.00 %Unchanged by 0.00 %
from 860,390.00 £
from 925,639.65 £
from 2,394.00 £/mo
from 1,582.29 £/mo
from 3.34 %
from 30.00 %
Agent Activity
Bourne marked this listing as sold.
Bourne created the listing.
Nearby Schools
| Name | Type | Ofsted | Distance |
|---|---|---|---|
| Send Cofe Primary School | Voluntary Aided School | Good | 0.62 KM |
| Hoe Bridge School | Other Independent School | 2.27 KM | |
| Woking College | Academy 16-19 Converter | Good | 2.94 KM |
| Kingfield Primary School | Academy Converter | 2.95 KM | |
| Sythwood At Old Woking Sure Start Children'S Centre | Children's Centre Linked Site | 3.06 KM |
Images
Nearby Streets
| Name | Average Price | Average Sqft | Distance |
|---|---|---|---|
| Broadwood Rise | £ 750,000 | 0 | 0.00 KM |
| Porth Close | £ 1,375,000 | 0 | 0.00 KM |
| Brook Lane | £ 700,000 | 0 | 0.00 KM |
| Briar Road | £ 975,000 | 0 | 0.00 KM |
| Church Street | £ 0 | 0 | 0.00 KM |
Nearby Transport
| Name | NLC | TLC | Distance |
|---|---|---|---|
| Clandon | 5555 | CLA | 4.00 KM |
| Woking | 5685 | WOK | 4.52 KM |
| Worplesdon | 5686 | WPL | 6.02 KM |
| West Byfleet | 5684 | WBY | 6.06 KM |
| London Road (Guildford) | 5632 | LRD | 6.82 KM |
Nearby Listings
| Address | Price | Type | Score | Distance |
|---|---|---|---|---|
| Send Road, Send, Woking, Surrey, GU23 | £ 290,000 | BUY | 8 / 10 | 0.00 KM |
| Send Road, Send, Surrey, GU23 | £ 550,000 | BUY | Unknown | 0.04 KM |
| Lower Sandfields, Send, Woking, Surrey, GU23 | £ 950,000 | BUY | 7 / 10 | 0.07 KM |
| Walnut Tree Place, Send, Woking, Surrey, GU23 | £ 800,000 | BUY | Unknown | 0.09 KM |
| Walnut Tree Place, Send, Woking, Surrey, GU23 | £ 550,000 | BUY | 6 / 10 | 0.10 KM |
Nearby Properties
| Address | Price | Distance |
|---|---|---|
| 2 Lower Sandfields | £ 345,000 | 0.06 KM |
| 12 Lower Sandfields | £ 159,950 | 0.06 KM |
| 137 Send Road | £ 312,000 | 0.06 KM |
| 104 Send Road | £ 170,000 | 0.06 KM |
| 94 Send Road | £ 415,000 | 0.06 KM |