Arnett Avenue, Finchampstead, Wokingham, Berkshire, RG40
By Prospect Estate Agency
£ 230,000
Reviews
3 out of 5 stars
Prospect Estate Agency says ..
Located in a quiet corner of Arnett Avenue, this top floor is perfect for first time buyers and investors alike. This apartment offers a large master bedroom with light greenery views and plenty of space for extra furniture, although the current owner has intelligently reconfigured th...
Property Oracle says ..
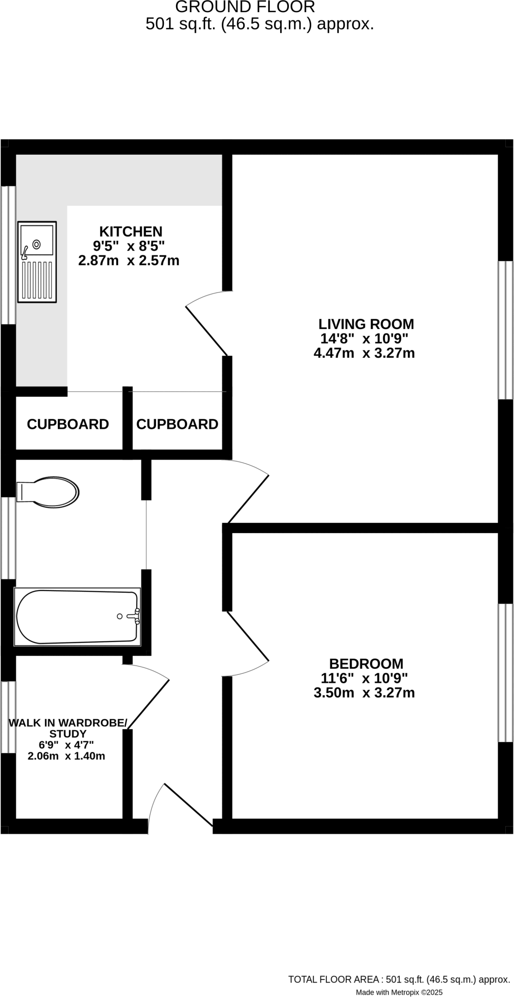
This property is a one bedroom apartment located in Finchampstead, Wokingham. The apartment appears to be in good condition and has been recently updated with a modern kitchen and bathroom. While the square footage is not provided, the plot size is 501 sqft. The location is convenient to local schools and transportation links. However, the list price of £230,000 is significantly lower than the average price for the area (£648,122) and the average price per sqft (£484). This suggests that the property may be undervalued, particularly given its apparent good condition and convenient location. Nearby properties show a range of prices, with some significantly higher than the list price, and others comparable, suggesting a degree of variability in the market. Additional information on the property’s square footage would allow for a more precise assessment of its value.
Therefore, we give this property 6 / 10. *Disclaimer: This is our option and does constitute a recommendation or financial advice. Do your own research. *
- Price
- 6
- Condition
- 8
- Location
- 7
- Land
- 3
- Bedrooms
- 1
- Bathrooms
- 1
- Lot (est)
- 501.00
The heatmap indicates the level of crime in the area. The color of the heatmap indicates the crime severity and recency.
Metrics Year-on-Year
- Average area value
- 1,516,667.00 £Increased by 102.87 %
- Average area rental value
- 2,250.00 £/moDecreased by 16.20 %
- Est rental Yield
- 1.78 %Decreased by 58.70 %
- Crime Rate
- 57.00 %Unchanged by 0.00 %
Agent Activity
Prospect Estate Agency created the listing.
Nearby Schools
| Name | Type | Ofsted | Distance |
|---|---|---|---|
| Gorse Ride Infants' School | Community School | Good | 0.39 KM |
| Nine Mile Ride Primary School | Academy Converter | 0.41 KM | |
| Finchampstead Children'S Centre | Children's Centre | 0.45 KM | |
| Gorse Ride Junior School | Community School | Requires improvement | 0.60 KM |
| Waverley Preparatory School And Nursery | Other Independent School | 1.27 KM |
Images
Nearby Streets
| Name | Average Price | Average Sqft | Distance |
|---|---|---|---|
| The Lea | £ 0 | 0 | 0.00 KM |
| Woodside Close | £ 0 | 0 | 0.00 KM |
| Sandhurst Road | £ 1,550,000 | 0 | 0.00 KM |
| Range Road | £ 0 | 0 | 0.00 KM |
Nearby Transport
| Name | NLC | TLC | Distance |
|---|---|---|---|
| Wokingham | 5696 | WKM | 3.88 KM |
| Crowthorne | 5628 | CRN | 4.37 KM |
| Winnersh | 5697 | WNS | 6.10 KM |
| Sandhurst (Berks) | 5646 | SND | 6.79 KM |
| Winnersh Triangle | 5698 | WTI | 7.45 KM |
Nearby Listings
| Address | Price | Type | Score | Distance |
|---|---|---|---|---|
| Arnett Avenue, Finchampstead, Wokingham, Berkshire, RG40 | £ 230,000 | BUY | 6 / 10 | 0.00 KM |
| Arnett Avenue, Wokingham | £ 280,000 | BUY | 7 / 10 | 0.03 KM |
| Arnett Avenue, Finchampstead, Wokingham, RG40 | £ 355,000 | BUY | 6 / 10 | 0.03 KM |
| Arnett Avenue, Finchampstead, Wokingham | £ 410,000 | BUY | 6 / 10 | 0.05 KM |
| Arnett Avenue, Finchampstead, Wokingham, Berkshire, RG40 | £ 385,000 | BUY | Unknown | 0.16 KM |
Nearby Properties
| Address | Price | Distance |
|---|---|---|
| 47 Arnett Avenue | £ 365,000 | 0.03 KM |
| 69 Arnett Avenue | £ 240,000 | 0.03 KM |
| 60 Arnett Avenue | £ 170,000 | 0.03 KM |
| 58 Arnett Avenue | £ 205,000 | 0.03 KM |
| 56 Arnett Avenue | £ 420,000 | 0.03 KM |