Garfield Street, Sunderland, SR4
By McGowan Housing
£ 59,000
Reviews
2 out of 5 stars
McGowan Housing says ..
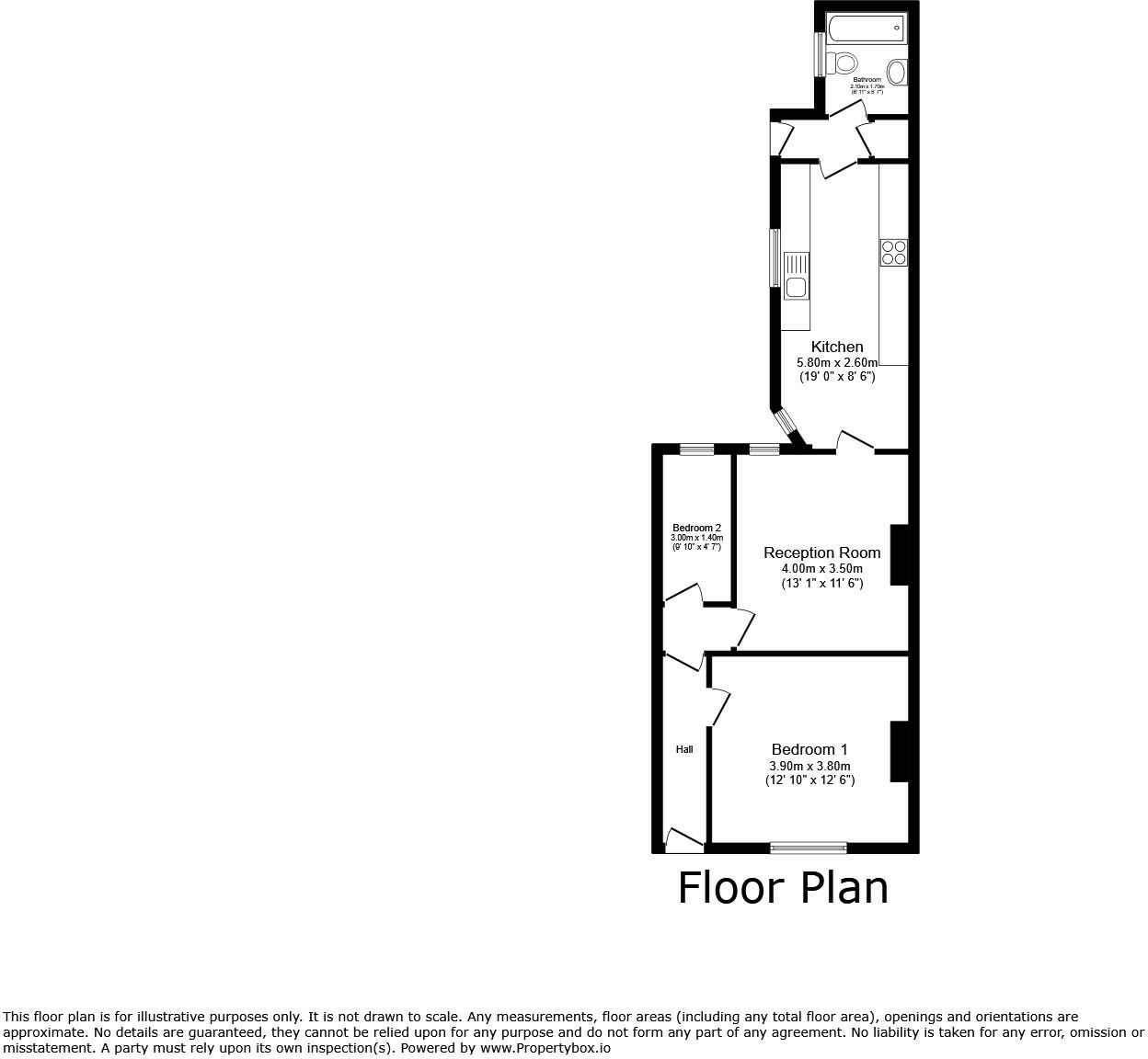
Buy-to-Let Opportunity | Long Term Tenant Currently Situated | 2 bedroom Mid Terrace House | Spacious Lounge | Modern Kitchen | Prime Rental Location Within Sunderland
Property Oracle says ..
This two-bedroom mid-terrace house in Pallion, Sunderland, is presented as a buy-to-let opportunity. The property’s location offers access to schools and Sunderland city centre, although the desirability of the immediate area might be considered moderate. The interior photographs reveal a property that is habitable but could benefit from some updating and repairs. While there’s a small paved rear yard, outdoor space is quite limited. The listed price of £59,000 seems fair considering comparable properties in the area and the potential rental income, but a definitive price per square foot analysis is impossible due to missing data in nearby listings. Overall, this property appears suitable for investors or those seeking an affordable entry point to the Sunderland housing market, provided they’re prepared to undertake some improvement work. However, buyers should conduct a thorough survey before committing.
Therefore, we give this property 4 / 10. *Disclaimer: This is our option and does constitute a recommendation or financial advice. Do your own research. *
- Price
- 7
- Condition
- 5
- Location
- 4
- Land
- 2
- Bedrooms
- 2
- Bathrooms
- 1
- Sqft (est)
- 842.49
The heatmap indicates the level of crime in the area. The color of the heatmap indicates the crime severity and recency.
Metrics Year-on-Year
- Average area value
- 197,600.00 £Increased by 0.12 %
- Est sale value
- 211,464.99 £Increased by 18.40 %
- Average area rental value
- 1,200.00 £/moIncreased by 42.69 %
- Est letting value
- 842.49 £/mo
- Est rental Yield
- 7.29 %Increased by 42.66 %
- Crime Rate
- 13.00 %Unchanged by 0.00 %
Agent Activity
McGowan Housing created the listing.
Nearby Schools
| Name | Type | Ofsted | Distance |
|---|---|---|---|
| Diamond Hall Infant Academy | Academy Converter | Good | 0.42 KM |
| Sunderland Children'S Centre Millfield | Children's Centre Linked Site | 0.52 KM | |
| Diamond Hall Junior Academy | Academy Converter | 0.56 KM | |
| Barnes Junior School | Community School | Good | 1.22 KM |
| Barnes Infant Academy | Academy Converter | Good | 1.25 KM |
Images
Nearby Streets
| Name | Average Price | Average Sqft | Distance |
|---|---|---|---|
| St Luke's Terrace | £ 0 | 0 | 0.00 KM |
| Cheviot Street | £ 95,000 | 0 | 0.00 KM |
| Prudhoe Street | £ 45,000 | 0 | 0.00 KM |
| Pine Street | £ 99,950 | 0 | 0.00 KM |
| Kayll Road | £ 0 | 0 | 0.00 KM |
Nearby Transport
| Name | NLC | TLC | Distance |
|---|---|---|---|
| Sunderland | 7640 | SUN | 3.60 KM |
Nearby Listings
| Address | Price | Type | Score | Distance |
|---|---|---|---|---|
| Garfield Street, Sunderland, SR4 | £ 59,000 | BUY | 4 / 10 | 0.00 KM |
| Lincoln Street, Pallion, Sunderland, SR4 | £ 69,950 | BUY | 6 / 10 | 0.04 KM |
| Mafeking Street, Sunderland, Tyne and Wear, SR4 | £ 80,000 | BUY | Unknown | 0.05 KM |
| Midmoor Road, Sunderland, Tyne and Wear, SR4 | £ 106,950 | BUY | Unknown | 0.09 KM |
| Kimberley Street, Pallion, Sunderland | £ 75,000 | BUY | 4 / 10 | 0.12 KM |
Nearby Properties
| Address | Price | Distance |
|---|---|---|
| 10 Garfield Street | £ 52,500 | 0.00 KM |
| 6 Garfield Street | £ 60,000 | 0.00 KM |
| 14 Garfield Street | £ 32,000 | 0.00 KM |
| 8 Garfield Street | £ 20,000 | 0.01 KM |
| 2 Lincoln Street | £ 65,000 | 0.03 KM |