2a Meadowpark, Ayr, KA7 2LN
DO

2a Meadowpark, Ayr, KA7 2LN

By Donald Ross Residential

£ 250,000

Reviews

3 out of 5 stars

Donald Ross Residential says ..

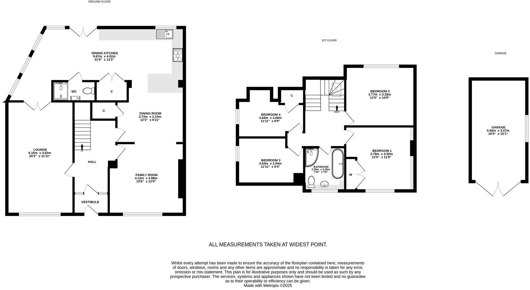
Spacious four-bedroom semi-detached villa with garage, driveway, and enclosed garden, featuring a modern family bathroom and downstairs shower room in Ayr’s sought-after Belmont district.

Property Oracle says ..

This is a semi-detached property in Ayr East, South Ayrshire. The interior of the house looks to be in good, modern condition. It features a modern kitchen and bathroom. The property benefits from a garden. Transportation links are good with a train station close by. The asking price of £250,000 seems reasonable when compared to similar properties in the area. Overall, this property presents well and is likely to attract interest from potential buyers.

Therefore, we give this property 7 / 10. *Disclaimer: This is our option and does constitute a recommendation or financial advice. Do your own research. *

Price
7
Condition
8
Location
7
Land
6
Bedrooms
4
Bathrooms
2

The heatmap indicates the level of crime in the area. The color of the heatmap indicates the crime severity and recency.

Metrics Year-on-Year

Average area value
591,667.00 £
Increased by 9.11 %
from 542,283.00 £
Average area rental value
2,375.00 £/mo
Increased by 124.69 %
from 1,057.00 £/mo
Est rental Yield
4.82 %
Increased by 105.98 %
from 2.34 %
Crime Rate
0.00 %
from 0.00 %

Agent Activity

  • Donald Ross Residential created the listing.

Images

Lounge Lounge Hall Dining kitchen Dining kitchen Dining kitchen Dining kitchen Dining kitchen Dining Room Family Room Dining kitchen Lounge Lounge Dining kitchen Dining Room Hall Bedroom 1 Bedroom 2 Bedroom 3 Family Room Landing Bedroom 1 Bedroom 2 Bedroom 4 Bathroom Bathroom Shower room

Nearby Streets

NameAverage PriceAverage SqftDistance
Morton Road £ 000.00 KM
Belmont Place East £ 000.00 KM
Mossgiel Place £ 000.00 KM
Belmont Place West £ 195,00000.00 KM
St. Phillans Avenue £ 000.00 KM

Nearby Transport

NameNLCTLCDistance
Ayr9463AYR1.07 KM
Newton-On-Ayr9571NOA2.73 KM
Prestwick Town9543PTW5.76 KM
Prestwick International Airport9544PRA6.58 KM

Nearby Listings

AddressPriceTypeScoreDistance
2a Meadowpark, Ayr, KA7 2LN £ 250,000BUY7 / 100.00 KM
Morton Road, Ayr, South Ayrshire, KA7 2NN £ 179,900BUYUnknown0.10 KM
Dalfruin, Castlehill Road, Ayr £ 325,000BUY7 / 100.15 KM
74 Castlehill Road, Ayr, KA7 2JD £ 235,000BUYUnknown0.17 KM
Belmont Place East, Ayr, South Ayrshire, KA7 £ 200,000BUY6 / 100.20 KM