Shipton Close, Prenton
By Brennan Ayre O'Neill
£ 159,950
Reviews
3 out of 5 stars
Brennan Ayre O'Neill says ..
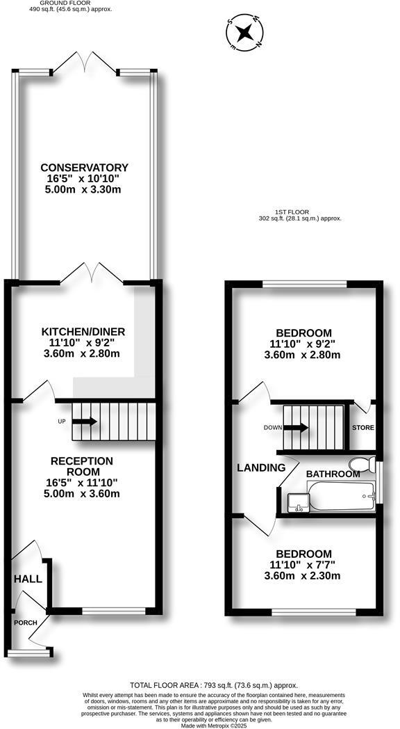
The second reception room to this two bedroomed semi detached house comprises an XXL and heated conservatory. A conservatory which has a high wall to one side and offers a considerable amount of privacy. Space basically you could use for all sorts - With off road parking for two cars, a...
Property Oracle says ..
This two-bedroom semi-detached house in Prenton offers a good opportunity for first-time buyers or small families. While the property could benefit from some modernisation, it features a conservatory, garden, and driveway. The location provides access to local schools and transportation links. The price appears reasonable compared to other properties in the area, making it an attractive option.
Therefore, we give this property 7 / 10. *Disclaimer: This is our option and does constitute a recommendation or financial advice. Do your own research. *
- Price
- 8
- Condition
- 6
- Location
- 7
- Land
- 7
- Bedrooms
- 2
- Bathrooms
- 1
- Sqft (est)
- 718.35
The heatmap indicates the level of crime in the area. The color of the heatmap indicates the crime severity and recency.
Metrics Year-on-Year
- Average area value
- 287,500.00 £Increased by 19.71 %
- Est sale value
- 153,008.55 £Increased by 16.39 %
- Average area rental value
- 850.00 £/moIncreased by 25.00 %
- Est letting value
- 0.00 £/mo
- Est rental Yield
- 3.55 %Increased by 4.41 %
- Crime Rate
- 4.00 %Unchanged by 0.00 %
Agent Activity
Brennan Ayre O'Neill created the listing.
Nearby Schools
| Name | Type | Ofsted | Distance |
|---|---|---|---|
| Prenton Children'S Centre | Children's Centre Linked Site | 0.92 KM | |
| Townfield Primary School | Academy Converter | Good | 1.03 KM |
| Prenton Primary School | Community School | Good | 1.13 KM |
| St Michael And All Angels Catholic Primary School | Voluntary Aided School | Good | 1.31 KM |
| Foxfield School | Community Special School | Good | 1.52 KM |
Images
Nearby Streets
| Name | Average Price | Average Sqft | Distance |
|---|---|---|---|
| Redwood Close | £ 0 | 0 | 0.00 KM |
| Stretton Close | £ 250,000 | 0 | 0.00 KM |
| Hartford Close | £ 0 | 0 | 0.00 KM |
| Hargrave Avenue | £ 155,000 | 0 | 0.00 KM |
| OvertonClose | £ 250,000 | 0 | 0.00 KM |
Nearby Transport
| Name | NLC | TLC | Distance |
|---|---|---|---|
| Upton (Merseyside) | 2141 | UPT | 3.16 KM |
| Birkenhead North | 2145 | BKN | 4.08 KM |
| Birkenhead Park | 2220 | BKP | 4.16 KM |
| Heswall | 2138 | HSW | 4.44 KM |
| Bidston | 2136 | BID | 4.91 KM |
Nearby Listings
| Address | Price | Type | Score | Distance |
|---|---|---|---|---|
| Shipton Close, Prenton | £ 159,950 | BUY | 7 / 10 | 0.00 KM |
| Millington Close, Prenton, Wirral, CH43 | £ 220,000 | BUY | 7 / 10 | 0.09 KM |
| Melford Drive, Prenton | £ 75,000 | BUY | 6 / 10 | 0.09 KM |
| Millington Close, Prenton | £ 270,000 | BUY | 7 / 10 | 0.09 KM |
| Mapleton Close, Prenton, Wirral | £ 200,000 | BUY | 7 / 10 | 0.18 KM |
Nearby Properties
| Address | Price | Distance |
|---|---|---|
| 1 Shipton Close | £ 67,000 | 0.04 KM |
| 11 Shipton Close | £ 180,000 | 0.04 KM |
| 3 Shipton Close | £ 125,000 | 0.04 KM |
| 16 Shipton Close | £ 83,000 | 0.04 KM |
| 2 Shipton Close | £ 124,995 | 0.04 KM |