Chancellors says ..
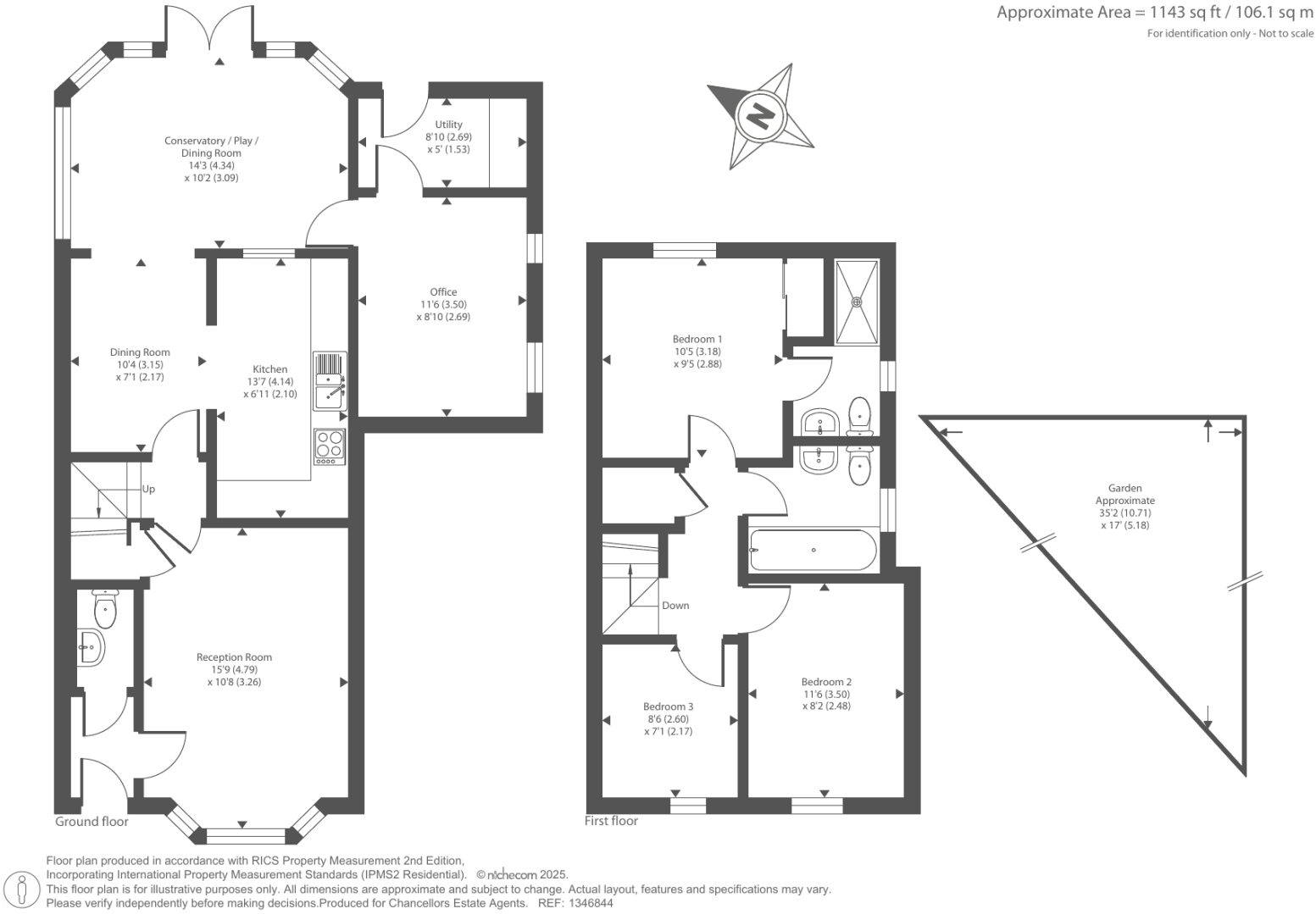
Welcome to this contemporary three-bedroom semi-detached home located in the sought-after Dunstan Park development. This property boasts a spacious driveway and a garage conversion that provides an additional reception room, perfect for entertaining or family gatherings.
Property Oracle says ..
This is a three-bedroom semi-detached house in Thatcham, Berkshire. The property benefits from a modern interior, two bathrooms, and a garden. It’s located in a residential area with good access to local schools and transportation links. The property appears to be in good condition and has been recently renovated. The property includes off street parking and a utility room. The asking price seems reasonable for the area and the condition of the property.
Therefore, we give this property 7 / 10. *Disclaimer: This is our option and does constitute a recommendation or financial advice. Do your own research. *
- Price
- 7
- Condition
- 8
- Location
- 7
- Land
- 6
- Bedrooms
- 3
- Bathrooms
- 2
- Sqft (est)
- 886.95
- Lot (est)
- 1,956.56
The heatmap indicates the level of crime in the area. The color of the heatmap indicates the crime severity and recency.
Metrics Year-on-Year
- Average area value
- 456,667.00 £Increased by 7.33 %
- Est sale value
- 426,622.95 £Increased by 0.42 %
- Average area rental value
- 1,375.00 £/moIncreased by 25.00 %
- Est letting value
- 886.95 £/moUnchanged by 0.00 %
- Est rental Yield
- 3.61 %Increased by 16.45 %
- Crime Rate
- 17.00 %Unchanged by 0.00 %
Agent Activity
Chancellors created the listing.
Nearby Schools
| Name | Type | Ofsted | Distance |
|---|---|---|---|
| Thatcham Park Cofe Primary | Voluntary Controlled School | Good | 0.41 KM |
| Central Family Hub - Thatcham | Children's Centre | 0.53 KM | |
| Kennet School | Academy Converter | Outstanding | 0.96 KM |
| Spurcroft Primary School | Community School | Good | 1.05 KM |
| Whitelands Park Primary School | Academy Sponsor Led | Good | 1.09 KM |
Images
Nearby Streets
| Name | Average Price | Average Sqft | Distance |
|---|---|---|---|
| Marsh Road | £ 300,000 | 0 | 0.00 KM |
| Bluecoats | £ 254,000 | 0 | 0.00 KM |
| Vincent Road | £ 0 | 0 | 0.00 KM |
| Whitelands Road | £ 347,500 | 0 | 0.00 KM |
| Coombe Square | £ 369,950 | 0 | 0.00 KM |
Nearby Transport
| Name | NLC | TLC | Distance |
|---|---|---|---|
| Thatcham | 3152 | THA | 2.02 KM |
| Newbury Racecourse | 3071 | NRC | 5.92 KM |
| Newbury | 3074 | NBY | 7.58 KM |
| Midgham | 3159 | MDG | 8.65 KM |
Nearby Listings
| Address | Price | Type | Score | Distance |
|---|---|---|---|---|
| Thatcham, Berkshire, RG18 | £ 439,950 | BUY | 7 / 10 | 0.00 KM |
| Buttercup Place, Thatcham, Berkshire, RG18 | £ 440,000 | BUY | 7 / 10 | 0.00 KM |
| Buttercup Place, Thatcham, Berkshire, RG18 | £ 390,000 | BUY | 7 / 10 | 0.06 KM |
| Park Avenue, Thatcham, West Berkshire, RG18 | £ 350,000 | BUY | Unknown | 0.11 KM |
| Cowslip Crescent, Thatcham, Berkshire, RG18 | £ 575,000 | BUY | 8 / 10 | 0.13 KM |
Nearby Properties
| Address | Price | Distance |
|---|---|---|
| 24 Buttercup Place | £ 249,950 | 0.02 KM |
| 22 Buttercup Place | £ 194,500 | 0.02 KM |
| 11 Buttercup Place | £ 197,500 | 0.02 KM |
| 5 Buttercup Place | £ 337,500 | 0.02 KM |
| 21 Buttercup Place | £ 310,000 | 0.02 KM |