Warrington Road, Abram, Wigan, WN2 5XX
By Miller Metcalfe
£ 425,000
Reviews
2 out of 5 stars
Miller Metcalfe says ..
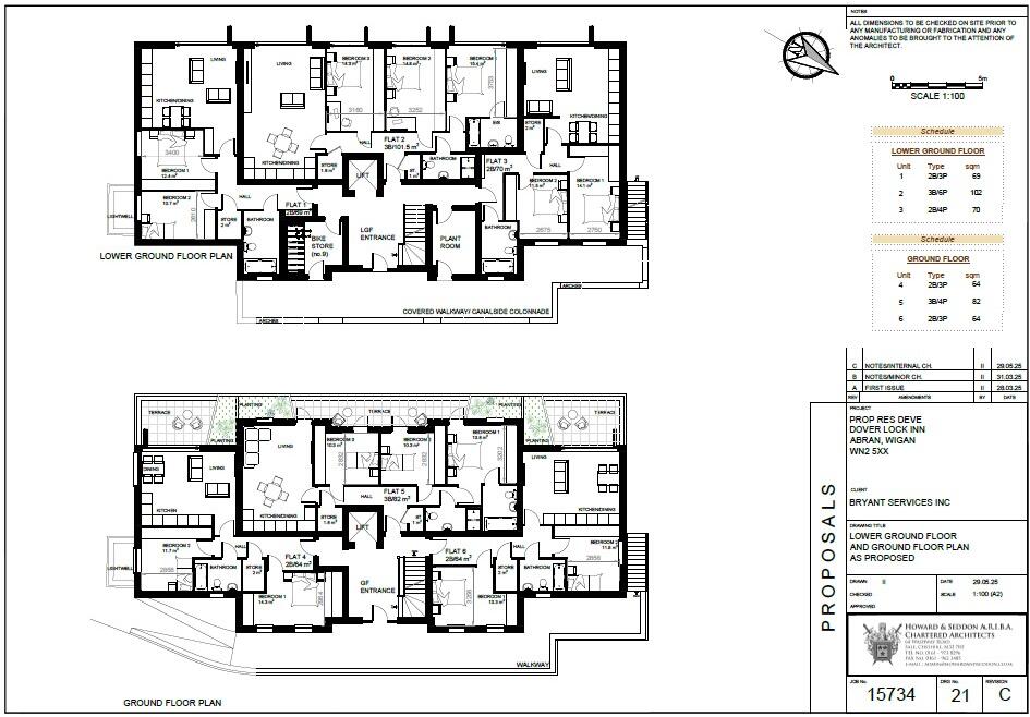
Development Opportunity – Full Planning Permission for 9 Apartments An exciting opportunity to acquire a prime development site with full planning permission (Ref: A/24/97754/FULL, granted 29th August 2025) for the demolition of the former Dover Lock Inn public house and the cons...
Property Oracle says ..
The property on Warrington Road, Abram, Wigan, presents a unique opportunity for redevelopment. Currently in a derelict condition, the site requires significant investment to bring it back to life. The location offers a mix of accessibility and local amenities, with the added benefit of bordering the Leeds and Liverpool Canal. The asking price seems optimistic given the current state of the property, but it may be justified by the potential for development, subject to planning consents. The property is located close to a number of schools.
Therefore, we give this property 4 / 10. *Disclaimer: This is our option and does constitute a recommendation or financial advice. Do your own research. *
- Price
- 3
- Condition
- 1
- Location
- 6
- Land
- 7
- Bedrooms
- 0
- Bathrooms
- 0
The heatmap indicates the level of crime in the area. The color of the heatmap indicates the crime severity and recency.
Metrics Year-on-Year
- Average area value
- 169,995.00 £Increased by 0.86 %
- Average area rental value
- 909.00 £/moIncreased by 14.34 %
- Est rental Yield
- 6.42 %Increased by 13.43 %
- Crime Rate
- 213.00 %Unchanged by 0.00 %
Agent Activity
Miller Metcalfe created the listing.
Nearby Schools
| Name | Type | Ofsted | Distance |
|---|---|---|---|
| St John'S Church Of England Primary School, Abram | Academy Converter | Good | 1.39 KM |
| Holy Family Catholic Primary School Platt Bridge | Voluntary Aided School | Good | 1.81 KM |
| Abram Bryn Gates Primary School | Community School | Requires improvement | 1.97 KM |
| Platt Bridge Community School | Academy Converter | Outstanding | 2.21 KM |
| Platt Bridge Sure Start Children'S Centre | Children's Centre | 2.21 KM |
Images
Nearby Streets
| Name | Average Price | Average Sqft | Distance |
|---|---|---|---|
| Pinewood Close | £ 0 | 0 | 0.00 KM |
| Oak Avenue | £ 140,000 | 0 | 0.00 KM |
| Grasmere Terrace | £ 0 | 0 | 0.00 KM |
| Tallies Road | £ 0 | 0 | 0.00 KM |
| Coniston Drive | £ 0 | 0 | 0.00 KM |
Nearby Transport
| Name | NLC | TLC | Distance |
|---|---|---|---|
| Ince (Manchester) | 2236 | INC | 4.56 KM |
| Hindley | 2398 | HIN | 4.76 KM |
| Newton-Le-Willows | 2257 | NLW | 6.01 KM |
| Bryn | 2222 | BYN | 6.10 KM |
| Wigan North Western | 2363 | WGN | 6.43 KM |
Nearby Listings
| Address | Price | Type | Score | Distance |
|---|---|---|---|---|
| Warrington Road, Abram, Wigan, WN2 5XX | £ 425,000 | BUY | 4 / 10 | 0.00 KM |
| Warrington Road, Abram, Wigan, WN2 | £ 100,000 | BUY | 5 / 10 | 0.08 KM |
| Warrington Road, Abram, WN2 | £ 140,000 | BUY | 6 / 10 | 0.11 KM |
| Warrington Road, Wigan, WN2 5XY | £ 30,000 | BUY | 5 / 10 | 0.16 KM |
| Greenbank, Abram, Wigan, WN2 | £ 180,000 | BUY | 6 / 10 | 0.18 KM |
Nearby Properties
| Address | Price | Distance |
|---|---|---|
| 470 Warrington Road | £ 64,675 | 0.15 KM |
| 420 Warrington Road | £ 68,000 | 0.15 KM |
| 466 Warrington Road | £ 68,000 | 0.15 KM |
| 438 Warrington Road | £ 78,000 | 0.15 KM |
| 472 Warrington Road | £ 70,000 | 0.15 KM |