Racecourse Road, Wilmslow
By Gascoigne Halman
£ 995,000
Reviews
4 out of 5 stars
Gascoigne Halman says ..
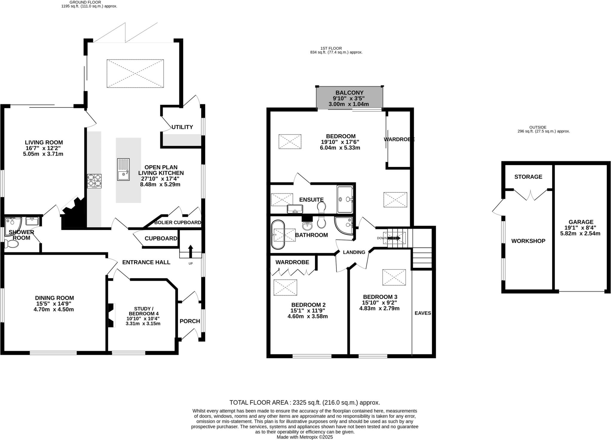
Positioned in arguably one of Wilmslow's most desirable locations enjoying tree lined views overlooking Lindow common, this striking detached residence offers stylish and versatile accommodation complemented by a generous plot with attractive walled gardens to the rear and a useful detached g...
Property Oracle says ..
The property is a detached house with four bedrooms and three bathrooms, offering 2,254.62 sqft of living space on a 2,325 sqft plot. The asking price is £995,000. The images show a modern property that has been recently renovated to a high standard. The kitchen is modern and well-equipped, and the property benefits from bi-fold doors leading to a patio area and garden. There is also a detached garage/workshop. The location in Wilmslow is desirable, with good access to local schools, including several rated ‘Good’ or ‘Outstanding’ by Ofsted, and is within reasonable distance of several train stations providing links to Manchester and beyond. The proximity to Manchester Airport is also a significant advantage for those who travel frequently. The property appears to be in excellent condition, having undergone recent modernisation. The images show a high standard of finish throughout. The garden is of a good size, providing ample outdoor space. Considering the average house price in the area is £555,509 and the average price per sqft is £455, the asking price of £995,000 for this property seems reasonable, given its size, condition, location, and the additional features such as the garage and garden. However, there is a lack of comparable properties of similar size and specification in the nearby listings to make a definitive assessment. The higher-priced nearby listings are significantly larger or of a different property type.
Therefore, we give this property 8 / 10. *Disclaimer: This is our option and does constitute a recommendation or financial advice. Do your own research. *
- Price
- 7
- Condition
- 9
- Location
- 9
- Land
- 7
- Bedrooms
- 4
- Bathrooms
- 3
- Sqft (est)
- 2,254.62
- Lot (est)
- 2,325.00
The heatmap indicates the level of crime in the area. The color of the heatmap indicates the crime severity and recency.
Metrics Year-on-Year
- Average area value
- 646,257.00 £Increased by 0.56 %
- Est sale value
- 1,472,266.86 £Increased by 46.09 %
- Average area rental value
- 2,875.00 £/moIncreased by 74.77 %
- Est letting value
- 4,509.24 £/moIncreased by 100.00 %
- Est rental Yield
- 5.34 %Increased by 73.94 %
- Crime Rate
- 3.00 %Unchanged by 0.00 %
Agent Activity
Gascoigne Halman created the listing.
Nearby Schools
| Name | Type | Ofsted | Distance |
|---|---|---|---|
| Gorsey Bank Primary School | Academy Converter | Good | 0.70 KM |
| Ashdene Primary School | Community School | Outstanding | 1.14 KM |
| Pownall Hall School | Other Independent School | 1.15 KM | |
| St Anne'S Fulshaw C Of E Primary School | Voluntary Controlled School | Good | 1.23 KM |
| Lindow Community Primary School | Community School | Good | 1.60 KM |
Images
Nearby Streets
| Name | Average Price | Average Sqft | Distance |
|---|---|---|---|
| Sandy Lane | £ 0 | 0 | 0.00 KM |
| Friar's Close | £ 0 | 0 | 0.00 KM |
| Hartford Avenue | £ 0 | 0 | 0.00 KM |
| Sylvan Avenue | £ 0 | 0 | 0.00 KM |
| Mobberley Road | £ 0 | 0 | 0.00 KM |
Nearby Transport
| Name | NLC | TLC | Distance |
|---|---|---|---|
| Styal | 2868 | SYA | 2.89 KM |
| Wilmslow | 2774 | WML | 3.03 KM |
| Alderley Edge | 2760 | ALD | 3.09 KM |
| Manchester Airport | 2961 | MIA | 4.85 KM |
| Handforth | 2767 | HTH | 4.99 KM |
Nearby Listings
| Address | Price | Type | Score | Distance |
|---|---|---|---|---|
| Racecourse Road, Wilmslow | £ 995,000 | BUY | 8 / 10 | 0.00 KM |
| Racecourse Road, Wilmslow | £ 600,000 | BUY | 6 / 10 | 0.33 KM |
| Lindow Lane, Wilmslow, Cheshire, SK9 | £ 1,250,000 | BUY | 7 / 10 | 0.37 KM |
| Racecourse Road, Wilmslow | £ 750,000 | BUY | 7 / 10 | 0.41 KM |
| Strawberry Lane, Wilmslow | £ 1,250,000 | BUY | 7 / 10 | 0.51 KM |
Nearby Properties
| Address | Price | Distance |
|---|---|---|
| 51 Racecourse Road | £ 450,000 | 0.10 KM |
| 63 Racecourse Road | £ 935,000 | 0.10 KM |
| 53 Racecourse Road | £ 490,000 | 0.10 KM |
| 101 Racecourse Road | £ 595,000 | 0.30 KM |
| 109 Racecourse Road | £ 750,000 | 0.30 KM |