Brennand Street, Burnley
By Keenans Estate Agents
£ 89,950
Reviews
3 out of 5 stars
Keenans Estate Agents says ..
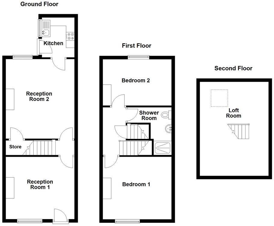
SPACIOUS TWO BEDROOM TERRACE PROPERTY WITH ADDED LOFT ROOM Situated on Brennand street this property offers a perfect blend of comfort and modern living. With two spacious bedrooms and an added loft room, this property provides ample space for families or those seeking a home office. Th...
Property Oracle says ..
The property is a 2 bedroom terraced house located in Burnley, Lancashire. It benefits from being close to several primary schools and Burnley Central train station. While the interior appears to be in good condition, some minor cosmetic work may be needed. The property has a small external area that requires maintenance. The listed price seems relatively low compared to the average house price in the area, although this may be due to the small plot size and the need for external work.
Therefore, we give this property 6 / 10. *Disclaimer: This is our option and does constitute a recommendation or financial advice. Do your own research. *
- Price
- 8
- Condition
- 7
- Location
- 7
- Land
- 3
- Bedrooms
- 2
- Bathrooms
- 1
- Sqft (est)
- 940.00
The heatmap indicates the level of crime in the area. The color of the heatmap indicates the crime severity and recency.
Metrics Year-on-Year
- Average area value
- 203,317.00 £Increased by 48.40 %
- Est sale value
- 185,180.00 £Increased by 39.72 %
- Average area rental value
- 590.00 £/moIncreased by 89.71 %
- Est letting value
- 0.00 £/mo
- Est rental Yield
- 3.48 %Increased by 27.94 %
- Crime Rate
- 15.00 %Unchanged by 0.00 %
Agent Activity
Keenans Estate Agents marked this listing as sold.
Keenans Estate Agents created the listing.
Nearby Schools
| Name | Type | Ofsted | Distance |
|---|---|---|---|
| Heasandford Primary School | Community School | Good | 0.54 KM |
| Reedley Hallows Nursery School | Local Authority Nursery School | Outstanding | 0.68 KM |
| Holly Grove School | Community Special School | Outstanding | 0.68 KM |
| Reedley Hallows Children'S Centre | Children's Centre | 0.68 KM | |
| Barden Primary School | Community School | Good | 0.68 KM |
Images
Nearby Streets
| Name | Average Price | Average Sqft | Distance |
|---|---|---|---|
| Waterbarn Street | £ 0 | 0 | 0.00 KM |
| Boundary Street | £ 84,995 | 0 | 0.00 KM |
| Ruskin Street | £ 0 | 0 | 0.00 KM |
| Saint Georges Square | £ 0 | 0 | 0.00 KM |
| Saint Cuthbert Street | £ 0 | 0 | 0.00 KM |
Nearby Transport
| Name | NLC | TLC | Distance |
|---|---|---|---|
| Burnley Central | 2550 | BNC | 1.95 KM |
| Brierfield | 2554 | BRF | 2.13 KM |
| Burnley Manchester Road | 2549 | BYM | 2.94 KM |
| Burnley Barracks | 2743 | BUB | 3.31 KM |
| Nelson | 2565 | NEL | 3.86 KM |
Nearby Listings
| Address | Price | Type | Score | Distance |
|---|---|---|---|---|
| Brennand Street, Burnley | £ 89,950 | BUY | 6 / 10 | 0.00 KM |
| Brennand Street, Burnley, BB10 | £ 50,000 | BUY | 5 / 10 | 0.01 KM |
| Bracewell Street, Burnley, Lancashire, BB10 | £ 98,000 | BUY | 5 / 10 | 0.05 KM |
| 28 Brennand Street, Burnley, Lancashire BB10 1SQ | £ 15,000 | BUY | Unknown | 0.07 KM |
| Bracewell Street, Burnley | £ 40,000 | BUY | 5 / 10 | 0.08 KM |
Nearby Properties
| Address | Price | Distance |
|---|---|---|
| 24 Walpole Street | £ 54,000 | 0.04 KM |
| 13 Walpole Street | £ 74,000 | 0.04 KM |
| 14 Walpole Street | £ 40,000 | 0.04 KM |
| 9 Walpole Street | £ 18,000 | 0.04 KM |
| 18 Walpole Street | £ 58,075 | 0.04 KM |