Bro Allt y Graig, Aberaeron, SA46
By Morgan & Davies
£ 335,000
Reviews
2 out of 5 stars
Morgan & Davies says ..
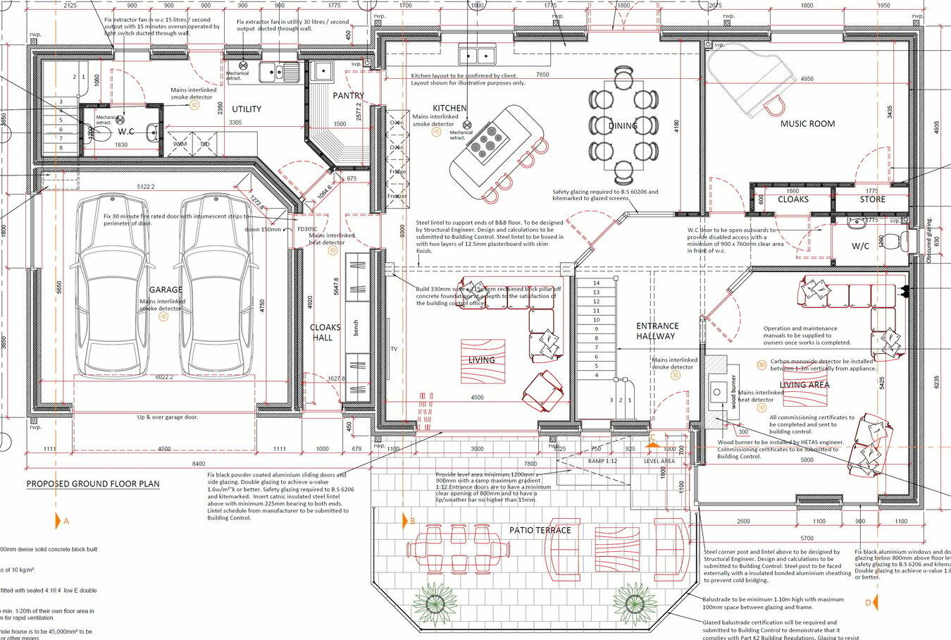
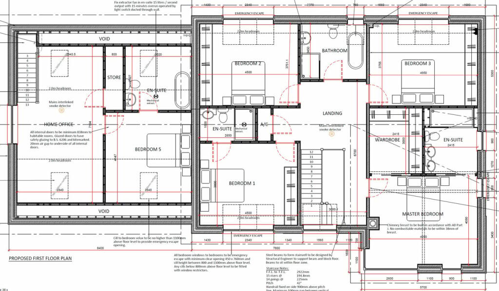
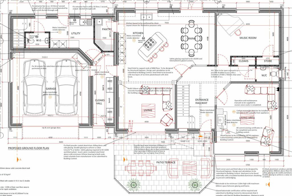
Unique smallholding development opportunity set within 2.7 acres. Planning Permission for 5 bedroom house. Aberaeron Town Centre. Cardigan Bay. West Wales.
Property Oracle says ..
This listing presents a unique opportunity to develop a substantial property in the picturesque coastal town of Aberaeron. The significant plot of land, spanning a sizeable area, offers considerable potential for creating a custom-built home. The location within Aberaeron is undoubtedly attractive, offering access to amenities, schools, and the scenic Cardigan Bay coastline. While the list price is substantial, it’s essential to conduct thorough due diligence regarding planning permissions, construction costs, and the potential resale value of the completed property to fully assess the investment’s feasibility and profitability. Proximity to local schools, Ysgol Gyfun Aberaeron and Ysgol Gynradd Aberaeron, are attractive to families. The absence of detailed property specifications (beyond the proposed plans) and the lack of a finished structure prevents a definitive conclusion on the value for money. The absence of square footage information on the property and comparable listings limits a definitive cost per sqft analysis. Buyers interested in this plot should factor in potential construction expenses and compare the overall final property cost with other properties in the local area once completed. The extensive plot size makes it ideal for a luxury home or a development project, potentially increasing the overall property worth after completion.
Therefore, we give this property 5 / 10. *Disclaimer: This is our option and does constitute a recommendation or financial advice. Do your own research. *
- Price
- 6
- Condition
- 1
- Location
- 7
- Land
- 9
- Bedrooms
- 5
- Bathrooms
- 4
- Sqft (est)
- 305.05
The heatmap indicates the level of crime in the area. The color of the heatmap indicates the crime severity and recency.
Metrics Year-on-Year
- Average area value
- 398,765.00 £Decreased by 0.35 %
- Est sale value
- 120,799.80 £Increased by 20.73 %
- Average area rental value
- 1,263.00 £/moIncreased by 3.52 %
- Est letting value
- 305.05 £/moUnchanged by 0.00 %
- Est rental Yield
- 3.80 %Increased by 3.83 %
- Crime Rate
- 24.00 %Unchanged by 0.00 %
Agent Activity
Morgan & Davies created the listing.
Nearby Schools
| Name | Type | Ofsted | Distance |
|---|---|---|---|
| Ysgol Gyfun Aberaeron | Welsh Establishment | 0.27 KM | |
| Ysgol Gynradd Aberaeron | Welsh Establishment | 0.92 KM | |
| Ysgol Ciliau Parc | Welsh Establishment | 7.50 KM | |
| Ysgol Dihewyd | Welsh Establishment | 7.83 KM | |
| Ysgol Gynradd Llanarth | Welsh Establishment | 7.92 KM |
Images
Nearby Streets
| Name | Average Price | Average Sqft | Distance |
|---|---|---|---|
| Ffordd y Goitre | £ 465,000 | 0 | 0.00 KM |
| Bro Allt y Graig | £ 545,000 | 0 | 0.00 KM |
| Lon y Felin | £ 385,000 | 0 | 0.00 KM |
| Darkgate Street | £ 167,500 | 0 | 0.00 KM |
| Bridge Street | £ 294,000 | 0 | 0.00 KM |
Nearby Listings
| Address | Price | Type | Score | Distance |
|---|---|---|---|---|
| Bro Allt y Graig, Aberaeron, SA46 | £ 335,000 | BUY | 5 / 10 | 0.00 KM |
| Bro Allt y Graig, Goitre Road, Aberaeron, SA46 | £ 230,000 | BUY | Unknown | 0.01 KM |
| Ffordd Y Goitre , Aberaeron, SA46 | £ 550,000 | BUY | 7 / 10 | 0.03 KM |
| Afallon, Goitre Road, Aberaeron, SA46 | £ 595,000 | BUY | 7 / 10 | 0.04 KM |
| South Road, Aberaeron, SA46 | £ 320,000 | BUY | 5 / 10 | 0.20 KM |
Nearby Properties
| Address | Price | Distance |
|---|---|---|
| 2 South Road | £ 490,000 | 0.19 KM |
| 11 South Road | £ 305,000 | 0.19 KM |
| Galen | £ 240,001 | 0.19 KM |
| 8 South Road | £ 180,000 | 0.19 KM |
| 5 South Road | £ 146,000 | 0.19 KM |